4,200万円
表面利回り:約4.57%
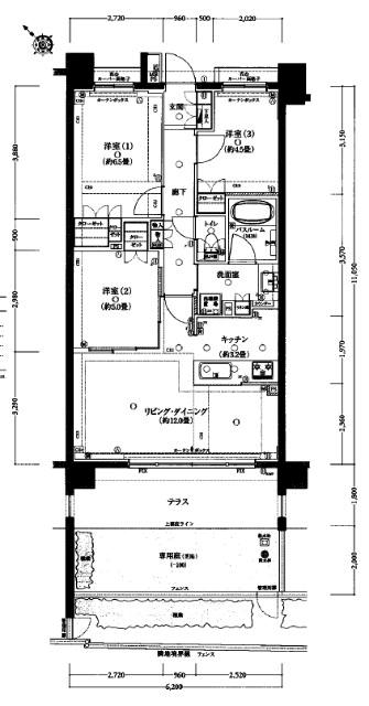
3LDK
種別 投資マンション
専有面積 68.51㎡(壁芯)
おすすめ
ポイント
子育てに嬉しい徒歩圏内に充実施設。暮らしやすい環境
利回り4.5%以上のオーナーチェンジ物件/普通賃貸借契約
| 築年月 | 2014年1月 |
|---|---|
| 構造 | 鉄筋コンクリート造 |
| 所在階 | 7階建ての1階 |
| 総戸数 | 41戸 |
| 向き | 南西 |
| バルコニー面積 | 11.16㎡ |
| 駐車場 | - |
| 施工会社 | (株)㈱福田組 |
| 管理会社 | 明和管理㈱ |
| 管理形態 | 全部委託(日勤) |
| 権利 | 所有権 |
| 借地権 | - |
| 現況 | 賃貸中 |
| 引渡時期 | 相談 |
| 引渡条件 | オーナーチェンジ |
| 管理費 | 12,410円/月 |
| 修繕積立金 | 12,130円/月 |
| 取引態様 | 媒介 |
| 管理コード | ST65704 |
設備・特記
《設備》:CATV/都市ガス/床暖房/インターネット対応/室内洗濯機置場/LDK15畳以上/専用庭/光回線/カウンターキッチン/クローゼット/浄水器/システムキッチン/追い焚き風呂/3口コンロ/浴室乾燥機/ウォークインクローゼット/エレベータ/宅配BOX/TVモニター付きインターホン/オートロック/給湯
《物件の特徴》:子育てに嬉しい徒歩圏内に充実施設。暮らしやすい環境
備考
《満室時想定賃料》:約192万円(年間)
《その他》:施工会社((株)㈱福田組) / 管理会社(明和管理㈱) / 管理組合:あり / 用途地域:第二種住居地域 / 国土法届出:不要
※詳細については、Webサイトにてご確認ください。現状と異なる場合は、現状を優先させていただきます。
※取引態様の欄に「媒介」と表示された物件は「仲介物件」です。ご成約の際には仲介手数料を申し受けます。
情報更新日|2026年5月10日
次回更新予定|2026年5月24日