15,500万円
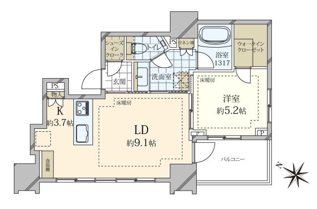
1LDK
種別 マンション
専有面積 44.11㎡(内法)
おすすめ
ポイント
| 築年月 | 2024年4月 |
|---|---|
| 構造 | 鉄筋コンクリート造 |
| 所在階 | 12階建ての6階 |
| 総戸数 | 31戸 |
| 向き | 南西 |
| バルコニー面積 | 5.52㎡ |
| 駐車場 | 空き無し |
| 施工会社 | - |
| 管理会社 | - |
| 管理形態 | 全部委託(日勤) |
| 権利 | 所有権 |
| 借地権 | - |
| 現況 | 空室 |
| 引渡時期 | 相談 |
| 引渡条件 | |
| 管理費 | 29,300円/月 |
| 修繕積立金 | 7,600円/月 |
| 取引態様 | 媒介 |
| 管理コード | STNF57C2009 |
設備・特記
《設備》:-
《物件の特徴》:-
備考
《その他費用》:インターネット使用料 : 770円/月
《その他》:用途地域:近隣商業地域 / 国土法届出:不要
※詳細については、Webサイトにてご確認ください。現状と異なる場合は、現状を優先させていただきます。
※取引態様の欄に「媒介」と表示された物件は「仲介物件」です。ご成約の際には仲介手数料を申し受けます。
情報更新日|2026年4月2日
次回更新予定|2026年4月13日