12,980万円
3SLDK
種別 戸建て
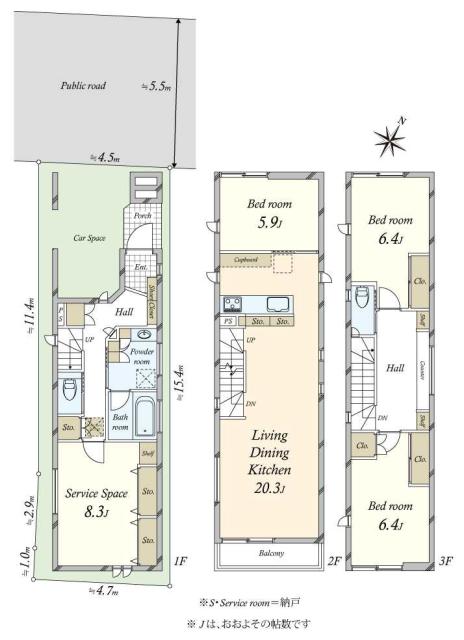
建物面積 118.70㎡(内法)
おすすめ
ポイント
| 築年月 | 2017年3月 |
|---|---|
| 構造 | 木造 |
| 階数 | 3階建て |
| 土地面積 | 71.13㎡ (21.51坪) |
| 駐車スペース | 駐車場有り |
| 都市計画 | 市街化区域 |
| 用途地域 | 近隣商業地域 |
| 建蔽率/容積率 | 80% / 200% |
| 地目 | 宅地 |
| 区画整理 | - |
| 接道 | 北西側5.5m公道に4.5m接道 |
| 私道 | なし |
| 権利 | 所有権 |
| 借地権 | - |
| 現況 | 居住中 |
| 引渡時期 | 相談 |
| 引渡条件 | |
| 取引態様 | 媒介 |
| 管理コード | STNF66BZ019 |
設備・特記
《設備》:-
《物件の特徴》:・S=納戸/設備:都市ガス、公営水道、本下水
備考
《その他》:備考:都市計画法他制限:準防火地域、第2種高度地区、日影規制、景観計画 / 地勢:平坦 / 国土法届出:不要
※詳細については、Webサイトにてご確認ください。現状と異なる場合は、現状を優先させていただきます。
※取引態様の欄に「媒介」と表示された物件は「仲介物件」です。ご成約の際には仲介手数料を申し受けます。
情報更新日|2025年12月30日
次回更新予定|2026年1月4日