7,580万円
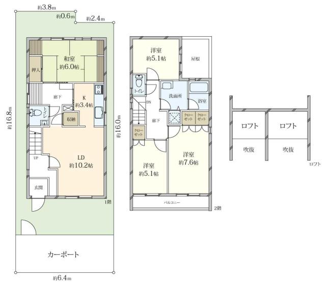
4LDK
種別 戸建て
建物面積 95.23㎡(内法)
おすすめ
ポイント
 
		
	 
			 
			 
			| 築年月 | 2007年9月 | 
|---|---|
| 構造 | 木造 | 
| 階数 | 2階建て | 
| 土地面積 | 105.28㎡ (31.84坪) | 
| 駐車スペース | 駐車場有り | 
| 都市計画 | 市街化区域 | 
| 用途地域 | 第一種低層住居専用地域 | 
| 建蔽率/容積率 | 50% / 100% | 
| 地目 | 宅地 | 
| 区画整理 | - | 
| 接道 | 南側4.9m公道に6.4m接道 | 
| 私道 | なし | 
| 権利 | 賃借権 | 
| 借地権 | - | 
| 現況 | 居住中 | 
| 引渡時期 | 相談 | 
| 引渡条件 | |
| 取引態様 | 媒介 | 
| 管理コード | STNF75BX008 | 
設備・特記
						《設備》:-
						《物件の特徴》:設備:都市ガス、公営水道、本下水
					
備考
						
							
						
						
						
						
						
						
							《その他》:備考:都市計画法他制限:準防火地域、第1種高度地区 / 地勢:平坦 / 国土法届出:不要
						
						
						
						
					
			※詳細については、Webサイトにてご確認ください。現状と異なる場合は、現状を優先させていただきます。
			※取引態様の欄に「媒介」と表示された物件は「仲介物件」です。ご成約の際には仲介手数料を申し受けます。
			情報更新日|2025年10月31日
			次回更新予定|2025年11月8日