6,980万円
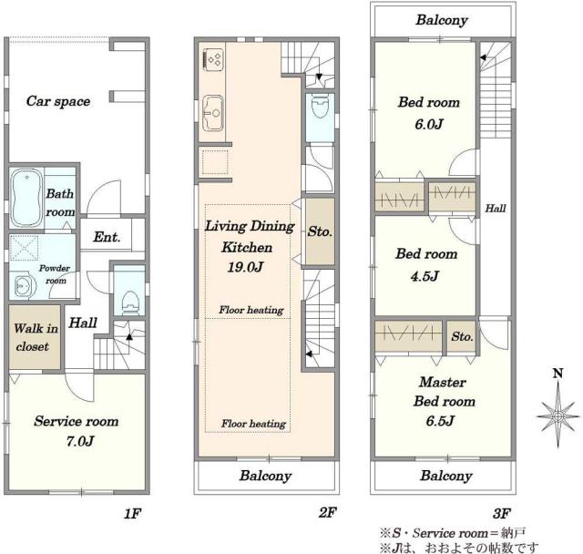
3SLDK
種別 戸建て
建物面積 119.88㎡(内法)
おすすめ
ポイント
| 築年月 | 2020年1月 |
|---|---|
| 構造 | 木造 |
| 階数 | 3階建て |
| 土地面積 | 72.88㎡ (22.04坪) |
| 駐車スペース | 駐車場有り |
| 都市計画 | 市街化区域 |
| 用途地域 | 第一種中高層住居専用地域 |
| 建蔽率/容積率 | 60% / 160% |
| 地目 | 宅地 |
| 区画整理 | - |
| 接道 | 北側4.0m私道に接道 |
| 私道 | 私道負担面積:3.25㎡ |
| 権利 | 所有権 |
| 借地権 | - |
| 現況 | 居住中 |
| 引渡時期 | 相談 |
| 引渡条件 | |
| 取引態様 | 媒介 |
| 管理コード | STNFE1BZ003 |
設備・特記
《設備》:-
《物件の特徴》:・建物面積には車庫面積11.42m2を含みます。/設備:都市ガス、公営水道、本下水
備考
《その他》:備考:建物面積に車庫面積11.42m2含/都市計画法他制限:準防火地域、第2種高度地区 / 地勢:平坦 / 国土法届出:不要
※詳細については、Webサイトにてご確認ください。現状と異なる場合は、現状を優先させていただきます。
※取引態様の欄に「媒介」と表示された物件は「仲介物件」です。ご成約の際には仲介手数料を申し受けます。
情報更新日|2025年12月21日
次回更新予定|2026年1月3日