480万円
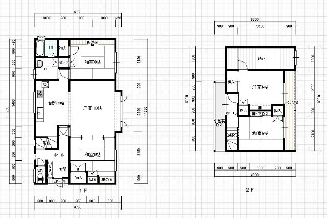
4LDK
種別 戸建て
建物面積 95.57㎡(壁芯)
おすすめ
ポイント
末広エリア( ´ ▽ ` )
スーパーお近くにあります♪
現況渡しとなります。
築年月 | 1975年9月 |
---|---|
構造 | 木造 |
階数 | 2階建て |
土地面積 | 249.99㎡ (75.62坪) |
駐車スペース | 駐車場あり( 2台) |
都市計画 | 市街化区域 |
用途地域 | 第一種低層住居専用地域 |
建蔽率/容積率 | 50% / 80% |
地目 | 宅地 |
区画整理 | - |
接道 | 北西側8.0m公道に11.0m接道 |
私道 | なし |
権利 | 所有権 |
借地権 | - |
現況 | 空室(入居歴有) |
引渡時期 | 即時 |
引渡条件 | 現況渡し |
取引態様 | 媒介 |
管理コード | TX400641 |
設備・特記
《設備》:陽当り良好/都市ガス/エアコン/上水道/整形地/前道6m以上/LDK15畳以上/閑静な住宅街/下水道/照明器具/納戸/駐車場2台分
《物件の特徴》:-
備考
《その他制限》:景観法
※詳細については、Webサイトにてご確認ください。現状と異なる場合は、現状を優先させていただきます。
※取引態様の欄に「媒介」と表示された物件は「仲介物件」です。ご成約の際には仲介手数料を申し受けます。
情報更新日|2025年10月8日
次回更新予定|2025年10月26日