2,300万円
3LDK
種別 戸建て
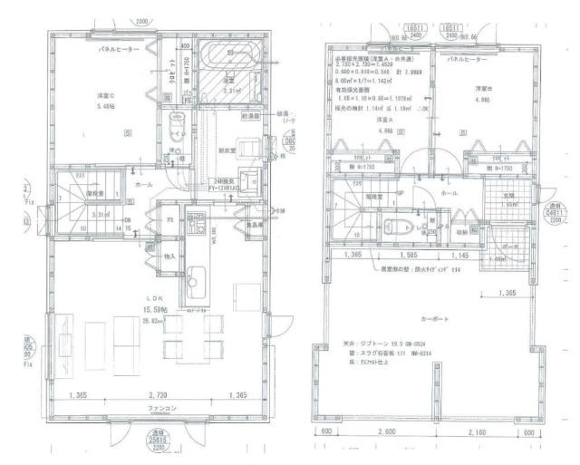
建物面積 106.83㎡(壁芯)
おすすめ
ポイント
人気の大町エリアです( ´ ▽ ` )
ビルトインのカーポート付き♪
お近くにはコンビニや飲食店、イオンがあります!
中心部にもアクセスしやすい場所です♪
| 築年月 | 2025年3月 |
|---|---|
| 構造 | 木造 |
| 階数 | 2階建て |
| 土地面積 | 92.57㎡ (28.00坪) |
| 駐車スペース | 駐車場あり( 2台) |
| 都市計画 | 市街化区域 |
| 用途地域 | 第一種住居地域 |
| 建蔽率/容積率 | 60% / 200% |
| 地目 | 宅地 |
| 区画整理 | - |
| 接道 | 南東側10.0m公道に7.2m接道 |
| 私道 | なし |
| 権利 | 所有権 |
| 借地権 | - |
| 現況 | 空室(入居歴有) |
| 引渡時期 | 即時 |
| 引渡条件 | |
| 取引態様 | 媒介 |
| 管理コード | TX400658 |
設備・特記
《設備》:都市ガス/上水道/整形地/前道6m以上/LDK15畳以上/閑静な住宅街/下水道/クローゼット/温水洗浄便座/洗髪洗面化粧台/システムキッチン/追い焚き風呂/3口コンロ/バス1坪以上/照明器具/全居室フローリング/駐車場2台分/TVモニター付きインターホン/ビルトインガレージ
《物件の特徴》:-
備考
《その他制限》:景観法
※詳細については、Webサイトにてご確認ください。現状と異なる場合は、現状を優先させていただきます。
※取引態様の欄に「媒介」と表示された物件は「仲介物件」です。ご成約の際には仲介手数料を申し受けます。
情報更新日|2025年10月18日
次回更新予定|2025年11月9日