2,130万円
2LDK
種別 戸建て
建物面積 70.80㎡(壁芯)
おすすめ
ポイント
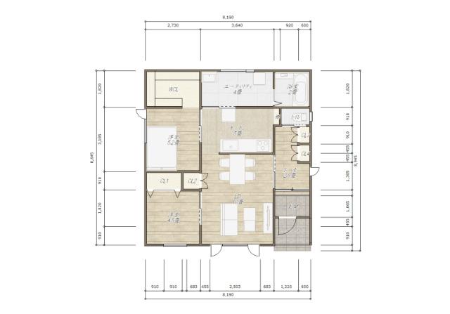
神居エリアに新築平屋の登場です♪
ウィークインクローゼットもあり収納たっぷりです♪
コンビニやスーパーがお近くにあります!
2026年3月末頃完成予定です♪
| 築年月 | 2026年3月 |
|---|---|
| 構造 | 木造 |
| 階数 | 1階建て |
| 土地面積 | 196.14㎡ (59.33坪) |
| 駐車スペース | 駐車場あり( 2台) |
| 都市計画 | 市街化区域 |
| 用途地域 | 第一種低層住居専用地域 |
| 建蔽率/容積率 | 50% / 80% |
| 地目 | 宅地 |
| 区画整理 | - |
| 接道 | 南東側8.0m公道に14.7m接道 |
| 私道 | なし |
| 権利 | 所有権 |
| 借地権 | - |
| 現況 | 未完成 |
| 引渡時期 | 2026年4月上旬予定 |
| 引渡条件 | |
| 取引態様 | 媒介 |
| 管理コード | TX400729 |
設備・特記
《設備》:都市ガス/上水道/整形地/前道6m以上/LDK15畳以上/閑静な住宅街/下水道/温水洗浄便座/洗髪洗面化粧台/システムキッチン/追い焚き風呂/3口コンロ/バス1坪以上/ウォークインクローゼット/照明器具/全居室フローリング/駐車場2台分/TVモニター付きインターホン/角地
《物件の特徴》:-
備考
《その他制限》:景観法
《その他》:施工会社((株)SKCサワダ) / 地勢:平坦 / 国土法届出:不要
《建築確認番号》:R7旭川市000184
※詳細については、Webサイトにてご確認ください。現状と異なる場合は、現状を優先させていただきます。
※取引態様の欄に「媒介」と表示された物件は「仲介物件」です。ご成約の際には仲介手数料を申し受けます。
情報更新日|2025年12月9日
次回更新予定|2025年12月29日