1,200万円
3SLDK
種別 戸建て
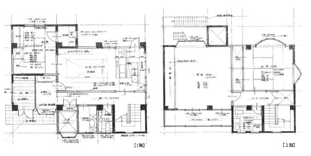
建物面積 198.23㎡(壁芯)
おすすめ
ポイント
現況のまま事務所・倉庫等で利用可能。
市街化区域・商業地域・容積率 400%で自由度の高い土地。
| 築年月 | 1964年3月 |
|---|---|
| 構造 | RC |
| 階数 | 3階建て |
| 土地面積 | 408.79㎡ (123.65坪) |
| 駐車スペース | 駐車場あり( 4台) |
| 都市計画 | 市街化区域 |
| 用途地域 | 商業地域 |
| 建蔽率/容積率 | 80% / 400% |
| 地目 | 宅地 |
| 区画整理 | - |
| 接道 | 南西側11.0m公道に5.0m接道/北側6.7m公道に12.4m接道 |
| 私道 | なし |
| 権利 | 所有権 |
| 借地権 | - |
| 現況 | 空室(入居歴有) |
| 引渡時期 | 相談 |
| 引渡条件 | 現況渡し |
| 取引態様 | 売主 |
| 管理コード | XQ400030 |
設備・特記
《設備》:プロパンガス/上水道/前道6m以上/南向き/下水道/クローゼット/納戸/トイレ2ヶ所/庭/温水洗浄便座/洗髪洗面化粧台/システムキッチン/IHコンロ/バルコニー/LDK18畳以上/駐車場3台分/庭10坪以上
《物件の特徴》:-
備考
《その他制限》:防火地域/宅地造成工事規制区域/屋外広告物第3種許可地域
※詳細については、Webサイトにてご確認ください。現状と異なる場合は、現状を優先させていただきます。
※取引態様の欄に「媒介」と表示された物件は「仲介物件」です。ご成約の際には仲介手数料を申し受けます。
情報更新日|2026年2月12日
次回更新予定|2026年2月25日