1,880万円
99.63坪
種別 土地
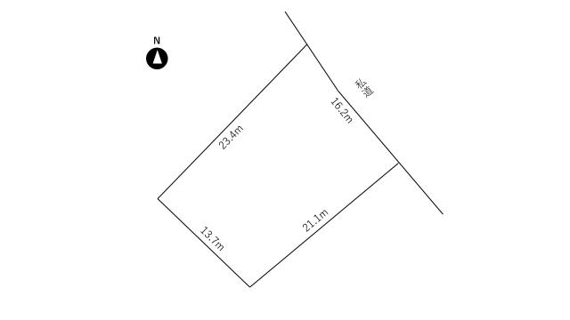
土地面積 329.37㎡
おすすめ
ポイント
アルビス徒歩圏内です!
建築条件はありません。分割販売可能です!
| 都市計画 | 市街化区域 |
|---|---|
| 用途地域 | 第二種中高層住居専用地域 |
| 建蔽率/容積率 | 60% / 200% |
| 地目 | 宅地 |
| 最適用途 | 指定なし |
| 区画整理 | - |
| 接道 | 北側4.0m私道に16.0m接道 |
| 私道 | なし |
| 権利 | 所有権 |
| 借地権 | - |
| 現況 | 古屋あり |
| 引渡時期 | 即時 |
| 引渡条件 | 更地渡し |
| 取引態様 | 媒介 |
| 管理コード | ZA400006 |
設備・特記
《設備》:陽当り良好/閑静な住宅街/小学校徒歩10分以内/IT重説対応物件/分割可
《物件の特徴》:-
備考
※詳細については、Webサイトにてご確認ください。現状と異なる場合は、現状を優先させていただきます。
※取引態様の欄に「媒介」と表示された物件は「仲介物件」です。ご成約の際には仲介手数料を申し受けます。
情報更新日|2025年10月24日
次回更新予定|2025年11月10日