駐車場
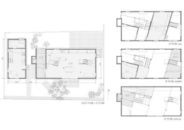
House in Hakuraku
NEW-
神奈川県横浜市港北区篠原台町 MAP
-
- 東急東横線 「白楽駅」 徒歩10分
- 築年月
- 2017年3月
- 構造
- 木造
- 階数/戸数
- 地上2階建て / -
- 管理形態
- -
- 建物設備
- -
- 管理会社
- -
- 施工会社
- -
更新日:2026年2月9日
House in Hakurakuの他の空室物件
1
件
お問い合わせお待ちしております!
周辺環境
- コンビニ
-
ファミリーマート白幡店509m
- 買物
-
まいばすけっと篠原西町店649m
- ショッピング施設
-
そごう横浜店3819m
- ドラッグストア
-
トモズ白楽店743m
- ホームセンター
-
ベスト電器サービスショップLE・920m
- 病院
-
済生会東神奈川リハビリテーション1848m
- 役所
-
横浜市神奈川区役所2291m
- 郵便局
-
横浜篠原台郵便局524m
- 図書館
-
神奈川大学図書館1805m
- 交番
-
神奈川警察署2753m
- 公園
-
篠原園地433m
- 銀行
-
横浜信用金庫六角橋支店1054m
- 幼稚園
-
大谷学園幼稚園305m
- 小学校
-
横浜市立白幡小学校778m
- 中学校
-
私立武相中学校820m
- 高校
-
私立清心女子高校224m
House in Hakurakuの近隣物件
生活情報
横浜市の暮らしデータ
横浜市は、神奈川県の東端に位置し、東は東京湾、北は川崎市、西は町田市・大和市・藤沢市、南は鎌倉市・逗子市・横須賀市に接しています。横浜市の中心部から東京都心部までは、約30kmです。国を代表する国際貿易港である横浜港を基盤として、首都圏の中核都市としての役割を担っています。総面積は、約435km2で、これは東京23区の約7割にあたります。
基本データ
| 市区役所所在地 | 横浜市中区本町6-50-10 |
|---|---|
| 公式ホームページURL | https://www.city.yokohama.lg.jp// |
| 総人口 | 3,777,491人 |
| 人口増減率(2015年/2020年) | 101.4% |
地域のおすすめ情報ブログ
一覧を見る
-
横浜市戸塚区汲沢町 売地3500万円ピタットハウス大和店で取り扱い中のおすすめ用地をちょっとだけご紹介します。・南東・南西角地で陽当たり良好・閑静な住宅街で暮らしや...続きを読む -
かわいい缶だったから!大切なお客様よりご来社の際、いただきましたケーキみたいでかわいい缶だったから買っちゃった!と感謝感激です -
元町ハロウィン皆さんこんにちは!ピタットハウス横浜元町店です!本日は10月の元町の恒例イベント「元町ハロウィン」をご紹介いたします!元町ショッ...続きを読む -
美味しくてリーズナブルな焼肉屋さん皆さんこんにちは!ピタットハウス横浜元町店です!本日は、黄金町駅より徒歩3分のところにある「焼肉・友」さんをご紹介いたします!中...続きを読む
取扱店舗
株式会社エム・コーポレーション
- 交通
- JR横浜線・市営地下鉄ブルーライン・東急新横浜線「新横浜」駅8番出口より徒歩6分・アイススケート場の隣です
- 営業時間
- 10:00 〜 18:00
- 定休日
- 毎週火曜日・水曜日