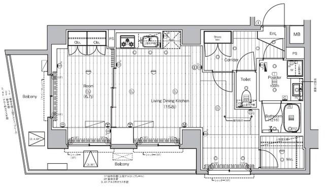
賃貸マンション
PREMIUM CUBE 王子神谷
NEW-
東京都北区豊島6丁目
-
- 東京メトロ南北線 「王子神谷駅」 徒歩12分 / 都電荒川線 「王子駅前駅」 徒歩23分
- 築年月
- 2025年10月
- 構造
- 鉄筋コンクリート造
- 階数/戸数
- 地上6階建て / 47戸
- 管理形態
- -
- 建物設備
- オートロック/宅配BOX
- 管理会社
- -
- 施工会社
- -
更新日:2025年10月5日
PREMIUM CUBE 王子神谷の他の空室物件
1
件

お問い合わせお待ちしております!
生活情報
北区の暮らしデータ
北区は、武蔵野台地の縁辺部から東京低地へと連続した地勢を有し、荒川、隅田川、石神井川といった水辺空間に囲まれた、緑豊かな自然が魅力のまちです。これら河川周辺は憩いの空間として整備されており、週末にはスポーツやレジャーを楽しむ多くの人々で賑わっています。一方、JRの駅が都内最多の11駅あり、加えて、地下鉄・都電が区内各所を走り、交通の利便性が抜群です。また、子どもが安心して遊べる公園が数多く設置され、商店街も活気があり、暮らしやすい環境がそろっています。
基本データ
市区役所所在地 | 北区王子本町1-15-22 |
---|---|
公式ホームページURL | https://www.city.kita.tokyo.jp// |
総人口 | 355,213人 |
人口増減率(2015年/2020年) | 104.1% |
地域のおすすめ情報ブログ
取扱店舗

株式会社エスケイ・コミュニティー
- 交通
- JR山手線「新宿」駅徒歩6分都営大江戸線「新宿西口」駅徒歩2分
- 営業時間
- 09:30 〜 18:30
- 定休日
- 毎週水曜日・2月・3月は無休、夏季休暇無し・年末年始