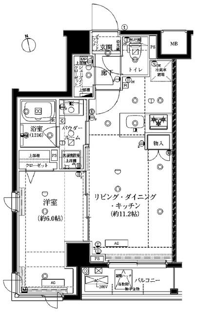
賃貸マンション
アルテシモ モーレ
NEW-
東京都文京区水道2丁目 MAP
-
- 東京メトロ有楽町線 「江戸川橋駅」 徒歩4分 / 東京メトロ東西線 「神楽坂駅」 徒歩10分
- 築年月
- 2018年5月
- 構造
- 鉄筋コンクリート造
- 階数/戸数
- 地上8階建て / 31戸
- 管理形態
- -
- 建物設備
- オートロック/宅配BOX/分譲マンションタイプ
- 管理会社
- ㈱G&G Community
- 施工会社
- -
更新日:2025年11月19日
アルテシモ モーレの他の空室物件
1
件
お問い合わせお待ちしております!
アルテシモ モーレの近隣物件
生活情報
文京区の暮らしデータ
文京区は、東京23区の中心部に位置し、由緒ある寺社、歴史を語る建造物等が数多く残るほか、江戸の大名屋敷庭園の面影を残す庭園もあります。また、明治時代には東京大学をはじめ多くの学校がつくられ、さらに、森鴎外、夏目漱石、樋口一葉、石川啄木など多くの文人ゆかりの地であり、緑豊かな文化の薫り高いまちとして発展してきました。
基本データ
| 市区役所所在地 | 文京区春日1-16-21 |
|---|---|
| 公式ホームページURL | https://www.city.bunkyo.lg.jp// |
| 総人口 | 240,069人 |
| 人口増減率(2015年/2020年) | 109.3% |
地域のおすすめ情報ブログ
一覧を見る
-
神社巡りこんにちは!ピタットハウス御茶ノ水店です(^^♪今回は妻戀神社をご紹介します。恋愛成就・夫婦円満の神社として知られています。妻戀...続きを読む -
ロケ地巡り3こんにちは♪ピタットハウス御茶ノ水店です!今回はロケ地巡り第3弾!2011年に放送されたドラマ「JIN−仁−」のロケ地です。ちょ...続きを読む -
一足早く紅葉の名所へこんにちは!ピタットハウス御茶ノ水店です。今回は紅葉の時期におすすめのスポット!小石川後楽園をご紹介いたします!ここは、後楽園駅...続きを読む -
すずめの戸締り 聖地巡礼♪③皆さんこんにちは♪ピタットハウス御茶ノ水店です!本日は「スズメの戸締り」聖地巡礼第3弾をお届けします♪御茶ノ水付近に映画の舞台と...続きを読む
取扱店舗
株式会社エスケイ・コミュニティー
- 交通
- JR山手線「新宿」駅徒歩6分都営大江戸線「新宿西口」駅徒歩2分
- 営業時間
- 09:30 〜 18:30
- 定休日
- 毎週水曜日・2月・3月は無休、夏季休暇無し・年末年始