賃貸マンション
練馬区豊玉中マンション
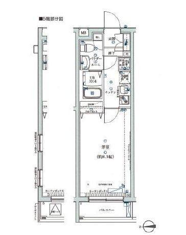
NEW-
東京都練馬区豊玉中3丁目 MAP
-
- 都営大江戸線 「練馬駅」 徒歩10分 / 西武池袋・豊島線 「桜台駅」 徒歩14分 / 西武池袋・豊島線 「豊島園駅」 徒歩20分
- 築年月
- 2018年7月
- 構造
- 鉄筋コンクリート造
- 階数/戸数
- 地上5階建て / -
- 管理形態
- -
- 建物設備
- オートロック/宅配BOX/分譲マンションタイプ
- 管理会社
- -
- 施工会社
- -
更新日:2026年1月27日
練馬区豊玉中マンションの他の空室物件
1
件
お問い合わせお待ちしております!
周辺環境
-
まいばすけっと 練馬駅南店:511m -
西友 練馬店:725m -
ファミリーマート 豊玉中三丁目店:116m -
セブンイレブン 練馬豊玉中3丁目店:217m -
スギ薬局 練馬豊玉店:191m -
うさちゃんクリーニング 豊玉中店:265m -
三井住友銀行 練馬支店:496m
- コンビニ
-
ファミリーマート 豊玉中三丁目店116m
- 買物
-
まいばすけっと 練馬駅南店511m
- ショッピング施設
-
-
- ドラッグストア
-
スギ薬局 練馬豊玉店191m
- ホームセンター
-
ホームセンターコーナンPRO W199m
- 病院
-
中野江古田病院1299m
- 役所
-
-
- 郵便局
-
-
- 図書館
-
-
- 交番
-
-
- 公園
-
平成つつじ公園846m
- 銀行
-
三井住友銀行 練馬支店496m
- 幼稚園
-
-
- 小学校
-
-
- 中学校
-
-
- 高校
-
-
練馬区豊玉中マンションの近隣物件
生活情報
練馬区の暮らしデータ
練馬区は、1947年8月1日に東京都の23番目の特別区として板橋区から分離独立し、農村から都市へと変貌を遂げてきました。みどり豊かな環境と都心に近い利便性が両立する、良好な住宅都市となっています。
基本データ
| 市区役所所在地 | 練馬区豊玉北6-12-1 |
|---|---|
| 公式ホームページURL | https://www.city.nerima.tokyo.jp// |
| 総人口 | 752,608人 |
| 人口増減率(2015年/2020年) | 104.3% |
地域のおすすめ情報ブログ
一覧を見る
-
子供も大人も一緒に通える歯医者さん——加藤歯科クリニック——練馬区の中でも人気のある中村小学校や中村中学校のすぐ近くにある歯医者さん。通りからはぬいぐるみがたくさ...続きを読む -
商標登録のアジフライこんにちは練馬西口店の佐久間です。今回ご紹介するのは、お昼の時間帯は常に行列?2種類のアジフライの食べ比べができるお店『アジ好き...続きを読む -
新設で利用のしやすい公園こんにちは練馬西口店の佐久間です。今回ご紹介するのは、新設で多くの設備が充実している公園『練馬総合運動公園いちょうひろば』です。...続きを読む -
子育て世代にうれしい公園こんにちは練馬西口店の佐久間です。今回ご紹介するのは、子供たちに人気の広場『練馬けやき公園』です。練馬白山神社のすぐ横に広がって...続きを読む
取扱店舗
株式会社リライフ
- 交通
- 四ツ谷駅 徒歩3分JR中央総武線・東京メトロ丸ノ内線・東京メトロ南北線四谷三丁目駅 徒歩9分東京メトロ丸ノ内線
- 営業時間
- 10:00 〜 18:30
- 定休日
- 毎週水曜日(1月〜3月を除く)