西荻窪駅徒歩3分の地上11階建てマンションです
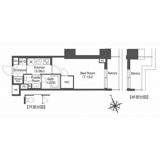
コンフォリア西荻窪は2021年築のきれいなマンションです! 1Kタイプ(25.5㎡)の単身者様向けの間取りです!

お気軽にお問い合わせください!
物件情報・周辺環境・契約手続きについてなどお気軽にお問い合わせください。
設備・条件
|
|
---|---|
|
|
|
|
|
|
|
|
|
|
|
|
物件概要
物件種別
部屋種別 | マンション | ||
---|---|---|---|
建物名称 | コンフォリア西荻窪(0510) | ||
所在地 | 東京都杉並区西荻南3丁目 | ||
築年月 | 2021年1月 | 階数 | 地下1階・地上11階建ての5階 |
建物構造 | 鉄筋コンクリート造 | 総戸数 | 81戸 |
間取り | 1K(洋6.9帖) | 専有面積 | 25.50㎡ |
向き | 西 | バルコニー面積 | - |
その他 | - |
費用
賃料 |
13.9万円
初期費用の確認をする
|
共益費 | 8,000円 |
---|---|---|---|
礼金 | - | 敷金 | 13.9万円 |
保証金 | - | 償却金 | - |
その他一時金 | 鍵交換代:33000円 / 清掃費:38500円 / エアコン清掃費:11000円 | ||
その他月額費用 | - | ||
住宅保険 | 要加入(2年16550円) | ||
保証会社 | 必須 | ||
保証会社補足 | エポスカード(RP) 保証料:賃料等の50%(最低2万)、月額保証料:賃料等の1%(更新料無) | ||
更新料 | 更新後賃料:1ヶ月 | 更新事務手数料 | - |
契約条件
貸家契約区分 | 普通賃貸借 | 契約期間 | 2年 |
---|---|---|---|
入居可能日 |
相談
空室状況を確認をする
|
引渡時期相談内容 | - |
フリーレント | - | ||
クレジットカード決済 | - |
駐車場
駐車場 |
なし
駐車場について質問する
|
||
---|---|---|---|
駐車場契約形態 | - | ||
駐車場備考 | - | ||
バイク置き場 | - | ||
駐輪場 | - |
備考
その他 | ペット飼育又は大手法人契約等保証会社利用不可の場合:敷金2ヶ月、解約時室内及びエアコンクリーニング費用借主負担、楽器演奏不可、ペット相談、付随設備に関する費用・空き状況等は要確認 | ||
---|---|---|---|
関連リンク |
杉並区の賃貸情報一覧 新築マンション・建築予定の賃貸物件一覧はこちら フィットネスジム付きマンションの物件一覧はこちら ピタットハウス新宿西口店のホームページはこちら |
||
取引態様 | 媒介 | 管理コード | 3614582 |
情報登録(更新)日 | 2025年10月11日 | 次回更新予定日 | 2025年10月17日 |
スタッフコメント

- コンフォリア西荻窪のことならピタットハウス新宿西口店までお問合せください。都心部の物件はどのエリアでも取り扱い可能です。ご内覧は物件現地でお待ち合わせもOK。ほかの物件もご検討いただく場合はまとめてご案内も可能です。ご希望の条件を教えていただければ、市場に出ている情報を事前にメールでご紹介いたします。
周辺環境
- コンビニ
-
デイリーヤマザキ西荻南店78m
- 買物
-
サミットストア西荻窪駅南店97m
- ショッピング施設
-
ルミネ荻窪店1901m
- ドラッグストア
-
ココカラファイン西荻窪店74m
- ホームセンター
-
コジマ×ビックカメラ善福寺店1810m
- 病院
-
医療法人社団瑞心会杉並リハビリテ456m
- 役所
-
杉並区役所西荻区民事務所236m
- 郵便局
-
杉並西荻南郵便局252m
- 図書館
-
杉並区立西荻図書館983m
- 交番
-
荻窪警察署1417m
- 公園
-
まつぼっくり緑地1394m
- 銀行
-
西武信用金庫西荻窪支店143m
- 幼稚園
-
西荻まこと幼稚園338m
- 小学校
-
杉並区立桃井第三小学校598m
- 中学校
-
私立吉祥女子中学校974m
- 高校
-
私立吉祥女子高校1009m
取扱店舗

ピタットハウス新宿西口店
株式会社エスケイ・コミュニティー
- 交通
- JR山手線「新宿」駅徒歩6分都営大江戸線「新宿西口」駅徒歩2分
- 営業時間
- 09:30 〜 18:30
- 定休日
- 毎週水曜日・2月・3月は無休、夏季休暇無し・年末年始
ピタットハウスでは信頼されるサイトを目指して、物件情報の精度向上に努めています。
掲載物件に誤りがある場合は
こちら からご連絡ください。現状と異なる場合は、現状を優先させていただきます。
取引態様の欄に「媒介」と表示された物件は「仲介物件」です。ご成約の際には仲介手数料を申し受けます。
その他の取扱店舗
不動産会社毎に募集条件等が異なる場合があります。詳細は各店の物件詳細ページにてご確認ください。- 交通
- JR中央線 『武蔵境駅』 南口より 徒歩30秒 駐車場有
- 営業時間
- 10:00 〜 19:00
- 定休日
- 毎週水曜日・夏季休業・8/12から8/20まで
生活情報
杉並区の暮らしデータ
杉並区は、東京23区の最西部に位置し、地名は江戸時代の初めに領地の境である青梅街道に沿って植えられた杉並木が由来となっています。杉並木はなくなりましたが、村名、町名として採用され、1932年の区制施行を経て現在に至っています。関東大震災以降、農村的たたずまいから住宅地へと変貌を遂げ、文化人や学者が多数移住するなど、今日に至るまで良好な住宅都市として発展を続けています。
基本データ
市区役所所在地 | 杉並区阿佐谷南1-15-1 |
---|---|
公式ホームページURL | https://www.city.suginami.tokyo.jp/ |
総人口 | 591,108人 |
人口増減率(2015年/2020年) | 104.8% |
地域のおすすめ情報ブログ
一覧を見る
-
杉並区和泉のマーケット特性と単身者需要グループ650店舗のネットワークでお客様のお部屋探しをサポートする方南町唯一の大手不動産会社ピタットハウス方南町店です。【杉並区...続きを読む
-
相続対策最適な収益物件(一棟マンション)グループ650店舗のネットワークでお客様のお部屋探しをサポートする方南町唯一の大手不動産会社ピタットハウス方南町店です。RC造の...続きを読む
-
「永福町」RC造の新築一棟売マンションRC造の新築一棟売マンション。【年間予想利回り4%】バラエティー豊かで素敵な内装を中心にご紹介します!!人気のエリア「永福町」、...続きを読む
-
RC新築一棟売マンション【利回り4%】グループ650店舗のネットワークでお客様のお部屋探しをサポートする方南町唯一の大手不動産会社ピタットハウス方南町店です。内覧して...続きを読む
西荻窪駅近隣の駅から探す
杉並区の近隣エリアから探す
FAQ
-
A. コンフォリア西荻窪(ADJ3614582_235)の内見は、見学予約でお問い合わせいただくか、直接新宿西口店(0037-6001-05237)までご連絡ください。
-
A. 可能です。コンフォリア西荻窪(ADJ3614582_235)周辺の情報は、ピタットハウスの地域情報ブログ「街ピタ」や住みたい街の暮らしデータをご活用ください。
-
A. コンフォリア西荻窪(ADJ3614582_235)の費用は、こちらよりお問い合わせいただくか、直接新宿西口店(0037-6001-05237)までご連絡ください。
-
A. はい、可能です。賃貸希望物件リクエストをご利用ください。コンフォリア西荻窪(ADJ3614582_235)に似た物件も合わせてご紹介させていただきます。