辰巳駅徒歩9分の地上14階建てマンションです
東雲キャナルコートCODAN11号棟は2003年築の新耐震基準のマンションです! 3LDKタイプ(105.08㎡)ファミリー様向けの間取りです。

お気軽にお問い合わせください!
物件情報・周辺環境・契約手続きについてなどお気軽にお問い合わせください。
設備・条件
|
|
---|---|
|
|
|
|
|
|
|
|
|
|
|
|
物件概要
物件種別
部屋種別 | マンション | ||
---|---|---|---|
建物名称 | 東雲キャナルコートCODAN11号棟(0604) | ||
所在地 | 東京都江東区東雲1丁目 | ||
築年月 | 2003年7月 | 階数 | 地下1階・地上14階建ての6階 |
建物構造 | 鉄筋コンクリート造 | 総戸数 | 252戸 |
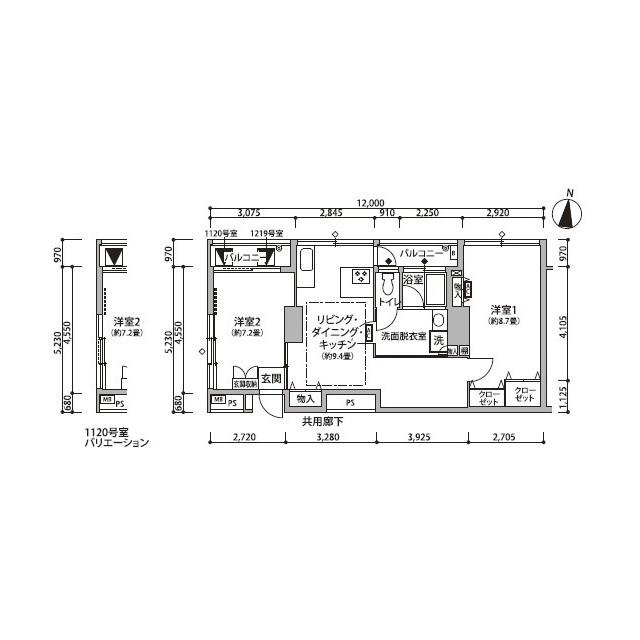
間取り | 3LDK(LDK12.1帖 洋5.1帖 洋6帖 洋13.4帖) | 専有面積 | 105.08㎡ |
向き | 南 | バルコニー面積 | - |
その他 | - |
費用
賃料 |
32万円
初期費用の確認をする
|
共益費 | 15,000円 |
---|---|---|---|
礼金 | 32万円 | 敷金 | 32万円 |
保証金 | - | 償却金 | - |
その他一時金 | 鍵交換代:33000円 / 清掃費:147950円 / エアコン清掃費:28600円 | ||
その他月額費用 | - | ||
住宅保険 | 要加入(2年16550円) | ||
保証会社 | 必須 | ||
保証会社補足 | レジデンシャルパートナーズ 保証料:賃料等の50%(最低2万)、月額保証・事務手数料:賃料等の1%(更新料無) | ||
更新料 | 更新後賃料:1ヶ月 | 更新事務手数料 | - |
契約条件
貸家契約区分 | 普通賃貸借 | 契約期間 | 2年 |
---|---|---|---|
入居可能日 |
2025年11月30日予定
空室状況を確認をする
|
引渡時期相談内容 | - |
フリーレント | - | ||
クレジットカード決済 | - |
駐車場
駐車場 |
有り 月額38,500円
駐車場について質問する
|
||
---|---|---|---|
駐車場契約形態 | - | ||
駐車場備考 | - | ||
バイク置き場 | - | ||
駐輪場 | - |
備考
その他 | 指定保証会社利用必須※一部法人契約除く・敷金積増(法人契約等保証会社利用不可の場合:敷金2か月)解約時室内及びエアコンクリーニング費用借主負担、ペット飼育・楽器演奏不可、事務所・SOHO利用不可、付随設備に関する費用・空き状況等は要確認。建物の構造上、ご希望のネット回線が使用できない可能性があります。 | ||
---|---|---|---|
関連リンク |
江東区の賃貸情報一覧 新築マンション・建築予定の賃貸物件一覧はこちら フィットネスジム付きマンションの物件一覧はこちら ピタットハウス新宿西口店のホームページはこちら |
||
取引態様 | 媒介 | 管理コード | 3667096 |
情報登録(更新)日 | 2025年10月8日 | 次回更新予定日 | 2025年10月14日 |
スタッフコメント

- 東雲キャナルコートCODAN11号棟のことならピタットハウス新宿西口店までお問合せください。都心部の物件はどのエリアでも取り扱い可能です。ご内覧は物件現地でお待ち合わせもOK。ほかの物件もご検討いただく場合はまとめてご案内も可能です。ご希望の条件を教えていただければ、市場に出ている情報を事前にメールでご紹介いたします。
周辺環境
- コンビニ
-
ファミリーマート江東東雲一丁目店49m
- 買物
-
東武ストア東雲店434m
- ショッピング施設
-
銀座三越5209m
- ドラッグストア
-
くすりの福太郎東雲店212m
- ホームセンター
-
ヤマダデンキテックランドスーパー1611m
- 病院
-
昭和大学江東豊洲病院1486m
- 役所
-
中央区晴海特別出張所3382m
- 郵便局
-
イオン東雲内郵便局553m
- 図書館
-
江東区立東雲図書館615m
- 交番
-
月島警察署3559m
- 公園
-
東雲緑道公園446m
- 銀行
-
ゆうちょ銀行本店イオン東雲店内出470m
- 幼稚園
-
YMCAキャナルコート保育園279m
- 小学校
-
江東区立第二辰巳小学校1192m
- 中学校
-
江東区立辰巳中学校992m
- 高校
-
私立かえつ有明高校1025m
取扱店舗

ピタットハウス新宿西口店
株式会社エスケイ・コミュニティー
- 交通
- JR山手線「新宿」駅徒歩6分都営大江戸線「新宿西口」駅徒歩2分
- 営業時間
- 09:30 〜 18:30
- 定休日
- 毎週水曜日・2月・3月は無休、夏季休暇無し・年末年始
ピタットハウスでは信頼されるサイトを目指して、物件情報の精度向上に努めています。
掲載物件に誤りがある場合は
こちら からご連絡ください。現状と異なる場合は、現状を優先させていただきます。
取引態様の欄に「媒介」と表示された物件は「仲介物件」です。ご成約の際には仲介手数料を申し受けます。
その他の取扱店舗
不動産会社毎に募集条件等が異なる場合があります。詳細は各店の物件詳細ページにてご確認ください。- 交通
- JR総武線 亀戸駅
- 営業時間
- 10:00 〜 18:00
- 定休日
- 毎週水曜日、木曜日・GW休業・夏季休業・年末年始休業・冬季休業:12/28(日)〜1/3(土)
- 交通
- JR中央線 『武蔵境駅』 南口より 徒歩30秒 駐車場有
- 営業時間
- 10:00 〜 19:00
- 定休日
- 毎週水曜日・夏季休業・8/12から8/20まで
生活情報
江東区の暮らしデータ
江東区は、1947年に深川・城東の2区が合併し生まれました。現在の江東区は、水辺と緑に恵まれた自然的特性をいかしながら、「みんなでつくる伝統、未来 水彩都市・江東」を目指して、発展しています。中でも、臨海部の発展は著しく、2024年4月には人口54万人を突破しました。また、2021年開催の東京オリンピック・パラリンピック競技大会では、江東区に多くの競技場が配置され、更なる大きな発展の可能性を秘めています。
基本データ
市区役所所在地 | 江東区東陽4-11-28 |
---|---|
公式ホームページURL | https://www.city.koto.lg.jp/ |
総人口 | 524,310人 |
人口増減率(2015年/2020年) | 105.3% |
地域のおすすめ情報ブログ
一覧を見る
-
リフォーム産業フェア&賃貸住宅フェア9月17日・18日の2日間、東京ビッグサイトで開催された「リフォーム産業フェア」&「賃貸住宅フェア2025東京」に参加してきまし...続きを読む
-
ボリューム満点!!本場韓国料理こんにちは!亀戸店新人の木村です!今回ご紹介させていただくところは、JR総武線亀戸駅徒歩4分にあります『韓ビビンバ石焼家』さんで...続きを読む
-
自然がいっぱい!亀戸中央公園こんにちは!亀戸店新人の木村です!今回ご紹介させていただくところは、JR総武線亀戸駅徒歩12分にあります『亀戸中央公園』です!施...続きを読む
-
【深川芭蕉通り】平成20年3月23日に新たに命名された「深川芭蕉通り」は、江東区深川の歴史と文化を感じられる風情ある通りです。俳聖・松尾芭蕉にゆ...続きを読む
辰巳駅近隣の駅から探す
江東区の近隣エリアから探す
FAQ
-
A. 東雲キャナルコートCODAN11号棟(ADJ3667096_634)の内見は、見学予約でお問い合わせいただくか、直接新宿西口店(0037-6001-05237)までご連絡ください。
-
A. 可能です。東雲キャナルコートCODAN11号棟(ADJ3667096_634)周辺の情報は、ピタットハウスの地域情報ブログ「街ピタ」や住みたい街の暮らしデータをご活用ください。
-
A. 東雲キャナルコートCODAN11号棟(ADJ3667096_634)の費用は、こちらよりお問い合わせいただくか、直接新宿西口店(0037-6001-05237)までご連絡ください。
-
A. はい、可能です。賃貸希望物件リクエストをご利用ください。東雲キャナルコートCODAN11号棟(ADJ3667096_634)に似た物件も合わせてご紹介させていただきます。