前へ
次へ
前へ
次へ
マンション

AGRATIO TERRACE 恵比寿(アグレシオ テラス 恵比寿)(108)

28.7 万円
共益費 15,000
28.7万円
-
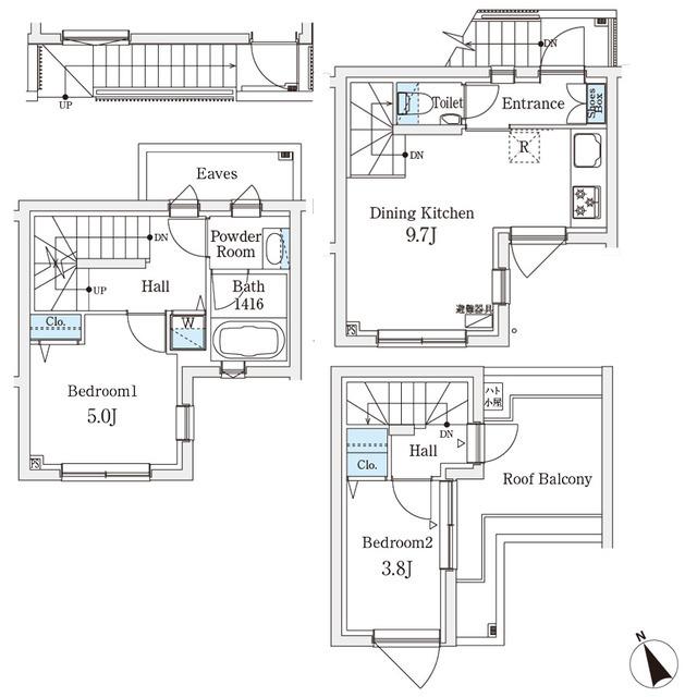
間取り
2LDK
専有面積
52.48㎡
所在階
4階建ての1階
向き
  • アイコン: 住所 東京都目黒区三田2丁目
  • アイコン: 交通 JR山手線 「恵比寿駅」 徒歩12分 / JR山手線 「目黒駅」 徒歩11分
簡単無料
アイコン: お電話 0037-6001-05237
IP電話ご利用のお客様 : 03-5909-5601
ピタットハウス
新宿西口店
point!
恵比寿駅徒歩12分の地上4階建てテラスハウスです
AGRATIO TERRACE 恵比寿は2023年築のきれいなテラスハウスです! 2LDK(52.48㎡)ご夫婦やファミリー向けの間取りです。
お気軽にお問い合わせください!
簡単無料
お気軽にお問い合わせください!
物件情報・周辺環境・契約手続きについてなどお気軽にお問い合わせください。

設備・条件

建物・立地
  • 宅配ボックス
  • 専用庭
  • 敷地内ごみ置き場
通信
  • BSアンテナ
  • CSアンテナ
セキュリティ
  • オートロック
部屋設備
  • フローリング
  • 室内洗濯機置場
冷暖房
  • エアコン
キッチン
  • システムキッチン
  • 食器乾燥機
  • 食器洗浄乾燥機
  • グリル
バス・トイレ
  • バス・トイレ別
  • 浴室乾燥機
  • 追い焚き風呂
  • 独立洗面台
特徴
  • ペット相談可
  • 事務所利用不可

物件概要

物件種別

部屋種別 マンション
建物名称 AGRATIO TERRACE 恵比寿(アグレシオ テラス 恵比寿)(108)
所在地 東京都目黒区三田2丁目 MAP
築年月 2023年10月 階数 4階建ての1階
建物構造 鉄筋コンクリート造 総戸数 -
間取り 2LDK 専有面積 52.48㎡
向き バルコニー面積 -
その他 管理形態:巡回管理 

費用

賃料 28.7万円 初期費用の確認をする 初期費用の確認をする 共益費 15,000円
礼金 - 敷金 28.7万円
保証金 - 償却金 -
その他一時金 室内清掃費:80819円 / 鍵交換費:22000円
その他月額費用 口座振替事務手数料:110円/月
住宅保険 要加入
保証会社 必須
保証会社補足 初回保証委託料(最低15,000円):月額賃料等の50%、 2年目以降:10,000円/年
更新料 更新後賃料:1ヶ月 更新事務手数料 -

契約条件

貸家契約区分 普通賃貸借 契約期間 2年
入居可能日 2026年4月20日予定 空室状況を確認をする 空室状況を確認をする 引渡時期相談内容 -
フリーレント -
クレジットカード決済 -

駐車場

駐車場 なし 駐車場について質問する 駐車場について質問する
駐車場契約形態 -
駐車場備考 -
バイク置き場 -
駐輪場 -

備考

その他
関連リンク 目黒区の賃貸情報一覧
新築マンション・建築予定の賃貸物件一覧はこちら
フィットネスジム付きマンションの物件一覧はこちら
ピタットハウス新宿西口店のホームページはこちら
取引態様 媒介 管理コード 4359984
情報登録(更新)日 2026年1月28日 次回更新予定日 2026年2月4日
備考 めやす賃料:

めやす賃料とは賃料、共益費・管理費、敷引金、更新料を含み、賃料等条件の改定がないものと仮定して4年間賃借した場合(定期借家の場合は契約期間)の1ヶ月当たりの金額です。

※敷引金は、敷金の償却、保証金の償却など、預かった金額から必ず引くものをいいます。
※めやす賃料は、消費者に適切な情報を提供するための表示であり事業者に一時金を推奨するものではありません。
※めやす賃料は、実際の総支払額と異なる場合があります。詳しくは不動産会社にご確認ください。  

スタッフコメント

スタッフコメント
  • AGRATIO TERRACE 恵比寿のことならピタットハウス新宿西口店までお問合せください。都心部の物件はどのエリアでも取り扱い可能です。ご内覧は物件現地でお待ち合わせもOK。ほかの物件もご検討いただく場合はまとめてご案内も可能です。ご希望の条件を教えていただければ、市場に出ている情報を事前にメールでご紹介いたします。

周辺環境

コンビニ
ファミリーマート目黒三田通り店
380m
買物
まいばすけっと上大崎2丁目店
508m
ショッピング施設
東急百貨店渋谷ヒカリエShinQ
2707m
ドラッグストア
ファミリーマート+クスリのヒグチ
490m
ホームセンター
ノジマPRIME SELECTI
651m
病院
総合病院厚生中央病院
500m
役所
目黒区役所
1949m
郵便局
目黒三田郵便局
301m
図書館
目黒区立目黒区民センター図書館
891m
交番
目黒警察署
786m
公園
目黒清掃工場緩衝緑地
471m
銀行
三井住友信託銀行目黒支店
797m
幼稚園
目黒三田保育園キミトミライト
402m
小学校
目黒区立田道小学校
561m
中学校
私立目黒日本大学中学校
921m
高校
私立目黒日本大学高校
921m

取扱店舗

ピタットハウス新宿西口店
ピタットハウス新宿西口店
株式会社エスケイ・コミュニティー
交通
JR山手線「新宿」駅徒歩6分都営大江戸線「新宿西口」駅徒歩2分
営業時間
09:30 〜 18:30
定休日
毎週水曜日・2月・3月は無休、夏季休暇無し
お電話 0037-6001-05237 無料
メール お問い合わせ
  • お問い合わせ区分

  • 内見希望日時

    第一希望

    第二希望

  • お名前

    全角
  • ご希望の連絡方法

    メールアドレス

    電話番号

    半角
    半角
  • その他ご希望等

ピタットハウスの個人情報の取り扱いについて

ピタットハウスでは信頼されるサイトを目指して、物件情報の精度向上に努めています。
掲載物件に誤りがある場合は こちら からご連絡ください。現状と異なる場合は、現状を優先させていただきます。
取引態様の欄に「媒介」と表示された物件は「仲介物件」です。ご成約の際には仲介手数料を申し受けます。

その他の取扱店舗

不動産会社毎に募集条件等が異なる場合があります。詳細は各店の物件詳細ページにてご確認ください。
交通
JR中央線 『武蔵境駅』 南口より 徒歩30秒 駐車場有 
営業時間
10:00 〜 19:00
定休日
毎週水曜日・冬期休業・12/28から1/4まで
  • 近隣駐車場あり/キッズスペースあり
お電話 0037-6001-08163 無料
交通
JR中央線「阿佐ヶ谷駅」南口徒歩1分ロータリーに面した駅直結の店舗です。
営業時間
10:00 〜 19:00
定休日
毎週火・水曜日・1月から3月は毎日営業・冬期休業12/28から1/4まで
  • キッズスペースあり
お電話 0037-6001-07674 無料
交通
東横線「都立大学駅」の改札を出て左へ。1Fにラーメン屋さんがあるビルの3Fです。
営業時間
10:00 〜 18:30
定休日
毎週火曜日・水曜日
  • 近隣駐車場あり
お電話 0037-6001-02068 無料
交通
JR山手線『新橋駅』日比谷口より徒歩4分・都営三田線『内幸町駅』A1出口より徒歩1分
営業時間
10:00 〜 19:00
定休日
定休日 土日祝・GW、夏季休暇、年末年始休暇・※土日祝ご来店希望は要相談
お電話 0037-6001-03162 無料

生活情報

目黒区の暮らしデータ

目黒区は、東京23区の南西部にあり、区内は台地の中を二つの川の谷が走り、起伏の多い地形です。1932年に目黒町と碑衾町が合併し誕生した、山の手の緑ある良好な住宅地です。世論調査でも、「住み続けたい」という人が90%を超える、良好な住環境が特徴です。

基本データ

市区役所所在地 目黒区上目黒2-19-15
公式ホームページURL https://www.city.meguro.tokyo.jp/
総人口 288,088人
人口増減率(2015年/2020年) 103.8%
目黒区の生活情報を詳しくみる

地域のおすすめ情報ブログ

一覧を見る

恵比寿駅近隣の駅から探す

目黒区の近隣エリアから探す

FAQ

  • A. AGRATIO TERRACE 恵比寿(アグレシオ テラス 恵比寿)(ADJ4359984_51)の内見は、見学予約でお問い合わせいただくか、直接新宿西口店(0037-6001-05237)までご連絡ください。
  • A. 可能です。AGRATIO TERRACE 恵比寿(アグレシオ テラス 恵比寿)(ADJ4359984_51)周辺の情報は、ピタットハウスの地域情報ブログ「街ピタ」住みたい街の暮らしデータをご活用ください。
  • A. AGRATIO TERRACE 恵比寿(アグレシオ テラス 恵比寿)(ADJ4359984_51)の費用は、こちらよりお問い合わせいただくか、直接新宿西口店(0037-6001-05237)までご連絡ください。
  • A. はい、可能です。賃貸希望物件リクエストをご利用ください。AGRATIO TERRACE 恵比寿(アグレシオ テラス 恵比寿)(ADJ4359984_51)に似た物件も合わせてご紹介させていただきます。