
お気軽にお問い合わせください!
物件情報・周辺環境・契約手続きについてなどお気軽にお問い合わせください。
設備・条件
|
|
---|---|
|
|
|
|
|
|
|
|
|
|
|
|
|
|
物件概要
物件種別
部屋種別 | マンション | ||
---|---|---|---|
建物名称 | パークアクシス台東根岸(802) | ||
所在地 | 東京都台東区根岸5丁目 MAP | ||
築年月 | 2009年8月 | 階数 | 14階建ての8階 |
建物構造 | 鉄筋コンクリート造 | 総戸数 | - |
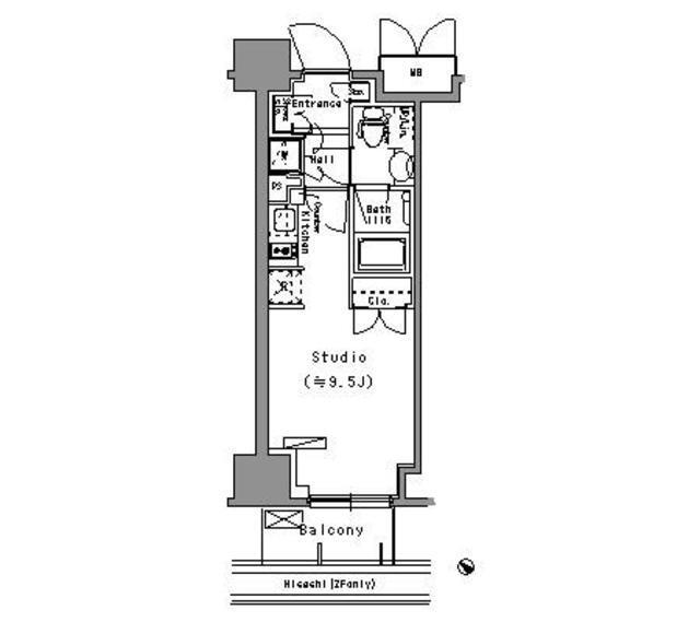
間取り | 1R | 専有面積 | 25.09㎡ |
向き | 南西 | バルコニー面積 | 3.00㎡ |
その他 | 管理形態:巡回管理 |
費用
賃料 |
11.4万円
初期費用の確認をする
|
共益費 | 8,000円 |
---|---|---|---|
礼金 | 11.4万円 | 敷金 | 11.4万円 |
保証金 | - | 償却金 | - |
その他一時金 | 室内清掃費:55000円 / 鍵交換費:16500円 | ||
その他月額費用 | 口座振替事務手数料:110円/月 | ||
住宅保険 | 要加入 | ||
保証会社 | 必須 | ||
保証会社補足 | 初回保証委託料(最低20,000円):月額賃料等の50%、 2年目以降:9,600円/年 | ||
更新料 | 更新後賃料:1ヶ月 | 更新事務手数料 | - |
契約条件
貸家契約区分 | 普通賃貸借 | 契約期間 | 2年 |
---|---|---|---|
入居可能日 |
2025年10月17日予定
空室状況を確認をする
|
引渡時期相談内容 | - |
フリーレント | - | ||
クレジットカード決済 | - |
駐車場
駐車場 |
なし
駐車場について質問する
|
||
---|---|---|---|
駐車場契約形態 | - | ||
駐車場備考 | - | ||
バイク置き場 | - | ||
駐輪場 | - |
備考
その他 | |||
---|---|---|---|
関連リンク | |||
取引態様 | 媒介 | 管理コード | 3664932 |
情報登録(更新)日 | 2025年10月4日 | 次回更新予定日 | 2025年10月15日 |
取扱店舗

ピタットハウスTX浅草店
日本不動産バザール株式会社
- 交通
- つくばエクスプレス浅草駅A2出口を出まして左隣のビルの1階に店舗ございます。
- 営業時間
- 10:00 〜 18:00
- 定休日
- 毎週水曜日・日曜日・夏季休業・8/10~8/17
ピタットハウスでは信頼されるサイトを目指して、物件情報の精度向上に努めています。
掲載物件に誤りがある場合は
こちら からご連絡ください。現状と異なる場合は、現状を優先させていただきます。
取引態様の欄に「媒介」と表示された物件は「仲介物件」です。ご成約の際には仲介手数料を申し受けます。
その他の取扱店舗
不動産会社毎に募集条件等が異なる場合があります。詳細は各店の物件詳細ページにてご確認ください。- 交通
- JR山手線「新宿」駅徒歩6分都営大江戸線「新宿西口」駅徒歩2分
- 営業時間
- 09:30 〜 18:30
- 定休日
- 毎週水曜日・2月・3月は無休、夏季休暇無し・年末年始
- 交通
- JR中央線「阿佐ヶ谷駅」南口徒歩1分ロータリーに面した駅直結の店舗です。
- 営業時間
- 10:00 〜 19:00
- 定休日
- 毎週火・水曜日・1月から3月は毎日営業・夏季休業8/12から8/20まで
- 交通
- JR山手線・京浜東北線・京成本線・常磐線・日暮里舎人ライナー「日暮里」駅 直結徒歩1分
- 営業時間
- 10:00 〜 18:30
- 定休日
- 毎週:火曜・水曜日
- 交通
- JR総武線 亀戸駅
- 営業時間
- 10:00 〜 18:00
- 定休日
- 毎週水曜日、木曜日・GW休業・夏季休業・年末年始休業・冬季休業:12/28(日)〜1/3(土)
- 交通
- 常磐線・日比谷線・つくばEX「南千住駅」より徒歩3分
- 営業時間
- 10:00 〜 20:00
- 定休日
- 毎週水曜日・※年末年始・GW・夏季に一部休業日有り
- 交通
- JR中央線 『武蔵境駅』 南口より 徒歩30秒 駐車場有
- 営業時間
- 10:00 〜 19:00
- 定休日
- 毎週水曜日・夏季休業・8/12から8/20まで
生活情報
台東区の暮らしデータ
台東区は、東京23区のほぼ中心に位置し、面積10.11km2、西は上野の山、東は隅田川に接した典型的な下町で、面積は23区中で最も小さい区です。東京の北の玄関として交通の要所になっているほか、伝統、歴史、芸術などの豊かな文化資源を有し、四季折々の多彩な行事を通じて多くの来街者があります。
基本データ
市区役所所在地 | 台東区東上野4-5-6 |
---|---|
公式ホームページURL | https://www.city.taito.lg.jp/ |
総人口 | 211,444人 |
人口増減率(2015年/2020年) | 106.8% |
地域のおすすめ情報ブログ
一覧を見る
-
下町の商店街こんにちは!ピタットハウス浅草橋店の井澤です。今回ご紹介させていただくのは、鳥越神社のすぐそばにある「おかず横丁」です!今でも長...続きを読む
-
西口駅前の人気パン屋さんこんにちは!ピタットハウス浅草橋店の井澤です!今回ご紹介させていただくのは、浅草橋西口駅前の「東京メロンパン」さんです!こちらの...続きを読む
-
下町のハンドメイド雑貨屋さんこんにちは!ピタットハウス浅草橋店の井澤です。今回ご紹介させていただくのは、浅草駅から徒歩2分の「ArtsquareAsakus...続きを読む
-
蔵前の人気ケーキ屋さんこんにちは!ピタットハウス浅草橋店の井澤です。今回ご紹介させていただくのは、蔵前駅から徒歩3分の「patisserieFOBS(...続きを読む
入谷駅近隣の駅から探す
台東区の近隣エリアから探す
FAQ
-
A. パークアクシス台東根岸(AFC3664932_81)の内見は、見学予約でお問い合わせいただくか、直接TX浅草店(0037-6001-04127)までご連絡ください。
-
A. 可能です。パークアクシス台東根岸(AFC3664932_81)周辺の情報は、ピタットハウスの地域情報ブログ「街ピタ」や住みたい街の暮らしデータをご活用ください。
-
A. パークアクシス台東根岸(AFC3664932_81)の費用は、こちらよりお問い合わせいただくか、直接TX浅草店(0037-6001-04127)までご連絡ください。
-
A. はい、可能です。賃貸希望物件リクエストをご利用ください。パークアクシス台東根岸(AFC3664932_81)に似た物件も合わせてご紹介させていただきます。