当物件はオンラインまたはお近くの店舗でご相談お申込を承ります
室内見学承ります・お客様のご都合に合わせてオンラインまたはお近くの店舗でご提案可・初期費用分割払い可・クレジットカード利用可・引越業者割引・初期費用のお見積や入居日のご相談もお気軽にお問合せください

お気軽にお問い合わせください!
物件情報・周辺環境・契約手続きについてなどお気軽にお問い合わせください。
設備・条件
|
|
---|---|
|
|
|
|
|
|
|
|
|
|
|
|
|
|
物件概要
物件種別
部屋種別 | マンション | ||
---|---|---|---|
建物名称 | 文京区関口マンション | ||
所在地 | 東京都文京区関口1丁目 MAP | ||
築年月 | 2002年5月 | 階数 | 13階建ての8階 |
建物構造 | 鉄骨鉄筋コンクリート造 | 総戸数 | 83戸 |
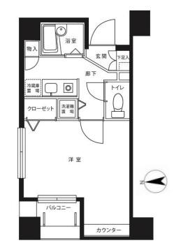
間取り | 1K(洋6.8帖) | 専有面積 | 21.72㎡ |
向き | 南西 | バルコニー面積 | - |
その他 | - |
費用
賃料 |
8.7万円
初期費用の確認をする
|
共益費 | 8,000円 |
---|---|---|---|
礼金 | 1ヶ月 | 敷金 | ペット積み増し(2ヶ月) |
保証金 | - | 償却金 | - |
その他一時金 | 鍵交換代(税込):27500円 / 室内清掃費用(税込):63800円 / 消毒代(初回のみ):26400円 | ||
その他月額費用 | 木下の賃貸友の会費(月額):1980円/月 | ||
住宅保険 | 要加入 | ||
保証会社 | 必須 | ||
保証会社補足 | 月額総賃料80%〜 | ||
更新料 | 更新後賃料:1.3ヶ月 | 更新事務手数料 | - |
契約条件
貸家契約区分 | 普通賃貸借 | 契約期間 | 2年 |
---|---|---|---|
入居可能日 |
2025年12月1日予定
空室状況を確認をする
|
引渡時期相談内容 | - |
フリーレント | - | ||
クレジットカード決済 | - |
駐車場
駐車場 |
なし
駐車場について質問する
|
||
---|---|---|---|
駐車場契約形態 | - | ||
駐車場備考 | - | ||
バイク置き場 | - | ||
駐輪場 | - |
備考
その他 | 当物件は「住まいのリライフ」で取り扱っております。リライフは首都圏25店舗のネットワークで豊富な物件情報をお客様へご提供します。当物件に類似した未公開物件なども合わせてご提案可能です。お気軽にお問合せください。違約金有:12カ月未満:賃料1ヶ月分 | ||
---|---|---|---|
関連リンク | |||
取引態様 | 媒介 | 管理コード | 4651784 |
情報登録(更新)日 | 2025年10月3日 | 次回更新予定日 | 2025年10月10日 |
周辺環境
-
まいばすけっと 江戸川橋地蔵通り店:193m
-
まいばすけっと 山吹町店:380m
-
セブンイレブン江戸川橋店:84m
-
ローソン江戸川橋駅前店:90m
-
ぱぱす薬局 江戸川橋店:137m
-
ポニークリーニング 地蔵通り店:162m
-
みずほ銀行江戸川橋支店:112m
-
江戸川公園:507m
- コンビニ
-
セブンイレブン江戸川橋店84m
- 買物
-
まいばすけっと 江戸川橋地蔵通り193m
- ドラッグストア
-
ぱぱす薬局 江戸川橋店137m
- ホームセンター
-
しまむら茗荷谷駅前店1244m
- 病院
-
JCHO東京新宿メディカルセンタ1528m
- 公園
-
江戸川公園507m
- 銀行
-
みずほ銀行江戸川橋支店112m
取扱店舗

ピタットハウス四谷店
株式会社リライフ
- 交通
- 四ツ谷駅 徒歩3分JR中央総武線・東京メトロ丸ノ内線・東京メトロ南北線四谷三丁目駅 徒歩9分東京メトロ丸ノ内線
- 営業時間
- 10:00 〜 18:30
- 定休日
- 毎週水曜日
ピタットハウスでは信頼されるサイトを目指して、物件情報の精度向上に努めています。
掲載物件に誤りがある場合は
こちら からご連絡ください。現状と異なる場合は、現状を優先させていただきます。
取引態様の欄に「媒介」と表示された物件は「仲介物件」です。ご成約の際には仲介手数料を申し受けます。
生活情報
文京区の暮らしデータ
文京区は、東京23区の中心部に位置し、由緒ある寺社、歴史を語る建造物等が数多く残るほか、江戸の大名屋敷庭園の面影を残す庭園もあります。また、明治時代には東京大学をはじめ多くの学校がつくられ、さらに、森鴎外、夏目漱石、樋口一葉、石川啄木など多くの文人ゆかりの地であり、緑豊かな文化の薫り高いまちとして発展してきました。
基本データ
市区役所所在地 | 文京区春日1-16-21 |
---|---|
公式ホームページURL | https://www.city.bunkyo.lg.jp/ |
総人口 | 240,069人 |
人口増減率(2015年/2020年) | 109.3% |
地域のおすすめ情報ブログ
一覧を見る
-
ロケ地巡り3こんにちは♪ピタットハウス御茶ノ水店です!今回はロケ地巡り第3弾!2011年に放送されたドラマ「JIN−仁−」のロケ地です。ちょ...続きを読む
-
一足早く紅葉の名所へこんにちは!ピタットハウス御茶ノ水店です。今回は紅葉の時期におすすめのスポット!小石川後楽園をご紹介いたします!ここは、後楽園駅...続きを読む
-
すずめの戸締り 聖地巡礼♪③皆さんこんにちは♪ピタットハウス御茶ノ水店です!本日は「スズメの戸締り」聖地巡礼第3弾をお届けします♪御茶ノ水付近に映画の舞台と...続きを読む
-
日本学校教育発祥の地 湯島聖堂皆さんこんにちは♪ピタットハウス御茶ノ水店です!本日は、「湯島聖堂」をご紹介いたします♪こちらは、御茶ノ水駅より徒歩2分の場所に...続きを読む
江戸川橋駅近隣の駅から探す
文京区の近隣エリアから探す
FAQ
-
A. 文京区関口マンション(AJN4651784_6)の内見は、見学予約でお問い合わせいただくか、直接四谷店(0037-6001-06556)までご連絡ください。
-
A. 可能です。文京区関口マンション(AJN4651784_6)周辺の情報は、ピタットハウスの地域情報ブログ「街ピタ」や住みたい街の暮らしデータをご活用ください。
-
A. 文京区関口マンション(AJN4651784_6)の費用は、こちらよりお問い合わせいただくか、直接四谷店(0037-6001-06556)までご連絡ください。
-
A. はい、可能です。賃貸希望物件リクエストをご利用ください。文京区関口マンション(AJN4651784_6)に似た物件も合わせてご紹介させていただきます。