当物件はオンラインまたはお近くの店舗でご相談お申込を承ります
室内見学承ります・お客様のご都合に合わせてオンラインまたはお近くの店舗でご提案可・初期費用分割払い可・クレジットカード利用可・引越業者割引・初期費用のお見積や入居日のご相談もお気軽にお問合せください

お気軽にお問い合わせください!
物件情報・周辺環境・契約手続きについてなどお気軽にお問い合わせください。
設備・条件
|
|
---|---|
|
|
|
|
|
|
|
|
|
|
|
|
|
|
物件概要
物件種別
部屋種別 | マンション | ||
---|---|---|---|
建物名称 | 中央区佃マンション | ||
所在地 | 東京都中央区佃3丁目 MAP | ||
築年月 | 2019年10月 | 階数 | 10階建ての10階 |
建物構造 | 鉄筋コンクリート造 | 総戸数 | 112戸 |
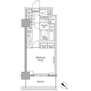
間取り | 1R(洋8.8帖) | 専有面積 | 25.66㎡ |
向き | 北東 | バルコニー面積 | - |
その他 | 管理形態:日勤管理 |
費用
賃料 |
13.8万円
初期費用の確認をする
|
共益費 | 10,000円 |
---|---|---|---|
礼金 | 1ヶ月 | 敷金 | 1ヶ月 + ペット積み増し(1ヶ月) |
保証金 | - | 償却金 | - |
その他一時金 | 鍵交換代(税込):33000円 / M-REALプレミアムクラブ2年(初回のみ):19800円 | ||
その他月額費用 | - | ||
住宅保険 | 要加入(2年32000円) | ||
保証会社 | 必須 | ||
保証会社補足 | 賃料等の50%〜 | ||
更新料 | 更新後賃料:1ヶ月 | 更新事務手数料 | - |
契約条件
貸家契約区分 | 普通賃貸借 | 契約期間 | 2年 |
---|---|---|---|
入居可能日 |
2025年11月1日予定
空室状況を確認をする
|
引渡時期相談内容 | - |
フリーレント | - | ||
クレジットカード決済 | - |
駐車場
駐車場 |
なし
駐車場について質問する
|
||
---|---|---|---|
駐車場契約形態 | - | ||
駐車場備考 | 空き状況要確認 | ||
バイク置き場 | - | ||
駐輪場 | - |
備考
その他 | 当物件は「住まいのリライフ」で取り扱っております。リライフは首都圏25店舗のネットワークで豊富な物件情報をお客様へご提供します。当物件に類似した未公開物件なども合わせてご提案可能です。お気軽にお問合せください。M-REALプレミアム会費2年:1.98万円 | ||
---|---|---|---|
関連リンク | |||
取引態様 | 媒介 | 管理コード | 4663405 |
情報登録(更新)日 | 2025年10月8日 | 次回更新予定日 | 2025年10月15日 |
周辺環境
-
ローソン月島駅前店:97m
-
セブンイレブン月島駅前店:254m
-
どらっぐぱぱす月島店:180m
-
ポニークリーニング月島駅前店:78m
-
中央佃郵便局:86m
- コンビニ
-
ローソン月島駅前店97m
- 買物
-
文化堂 月島店262m
- ドラッグストア
-
どらっぐぱぱす月島店180m
- 病院
-
月島総合ファミリークリニック496m
- 役所
-
中央区役所月島特別出張所536m
- 郵便局
-
中央佃郵便局86m
- 公園
-
江東区立中の島公園672m
取扱店舗

ピタットハウス四谷店
株式会社リライフ
- 交通
- 四ツ谷駅 徒歩3分JR中央総武線・東京メトロ丸ノ内線・東京メトロ南北線四谷三丁目駅 徒歩9分東京メトロ丸ノ内線
- 営業時間
- 10:00 〜 18:30
- 定休日
- 毎週水曜日
ピタットハウスでは信頼されるサイトを目指して、物件情報の精度向上に努めています。
掲載物件に誤りがある場合は
こちら からご連絡ください。現状と異なる場合は、現状を優先させていただきます。
取引態様の欄に「媒介」と表示された物件は「仲介物件」です。ご成約の際には仲介手数料を申し受けます。
生活情報
中央区の暮らしデータ
中央区は、江戸以来、400年以上にわたって日本の文化・商業・情報の中心として発展してきた由緒あるまちです。1947年に日本橋区と京橋区が統合され、現在の中央区が誕生しました。面積はわずか約10km2ですが、美しい水辺の景観や全国的に有名な「銀座」「日本橋」「築地」「月島」など魅力的なスポットを擁する、「遊」「職」「住」の三拍子そろった活気と魅力にあふれる都心のまちです。
基本データ
市区役所所在地 | 中央区築地1-1-1 |
---|---|
公式ホームページURL | https://www.city.chuo.lg.jp/ |
総人口 | 169,179人 |
人口増減率(2015年/2020年) | 119.8% |
地域のおすすめ情報ブログ
一覧を見る
月島駅近隣の駅から探す
中央区の近隣エリアから探す
FAQ
-
A. 中央区佃マンション(AJN4663405_2)の内見は、見学予約でお問い合わせいただくか、直接四谷店(0037-6001-06556)までご連絡ください。
-
A. 可能です。中央区佃マンション(AJN4663405_2)周辺の情報は、ピタットハウスの地域情報ブログ「街ピタ」や住みたい街の暮らしデータをご活用ください。
-
A. 中央区佃マンション(AJN4663405_2)の費用は、こちらよりお問い合わせいただくか、直接四谷店(0037-6001-06556)までご連絡ください。
-
A. はい、可能です。賃貸希望物件リクエストをご利用ください。中央区佃マンション(AJN4663405_2)に似た物件も合わせてご紹介させていただきます。