当物件はオンラインまたはお近くの店舗でご相談お申込を承ります
室内見学承ります・お客様のご都合に合わせてオンラインまたはお近くの店舗でご提案可・初期費用分割払い可・クレジットカード利用可・引越業者割引・初期費用のお見積や入居日のご相談もお気軽にお問合せください

お気軽にお問い合わせください!
物件情報・周辺環境・契約手続きについてなどお気軽にお問い合わせください。
設備・条件
|
|
---|---|
|
|
|
|
|
|
|
|
|
|
|
|
|
|
物件概要
物件種別
部屋種別 | マンション | ||
---|---|---|---|
建物名称 | 江東区豊洲マンション | ||
所在地 | 東京都江東区豊洲1丁目 MAP | ||
築年月 | 2017年7月 | 階数 | 地下1階・地上8階建ての8階 |
建物構造 | 鉄筋コンクリート造 | 総戸数 | 241戸 |
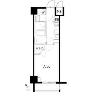
間取り | 1K(洋7.5帖) | 専有面積 | 25.95㎡ |
向き | 南西 | バルコニー面積 | - |
その他 | - |
費用
賃料 |
13.1万円
初期費用の確認をする
|
共益費 | 12,000円 |
---|---|---|---|
礼金 | 1ヶ月 | 敷金 | 1ヶ月 |
保証金 | - | 償却金 | - |
その他一時金 | 鍵交換代(税込):38500円 / プレミアデスク2年(初回のみ):16500円 / 駐輪場ステッカー代(初回のみ):1100円 | ||
その他月額費用 | バイク置場(月額):5500円/月 | ||
住宅保険 | 要加入(2年20000円) | ||
保証会社 | 必須 | ||
保証会社補足 | ※エポス ルームIDからの審査になります。 【ルームID】月額総賃料の70%/月次保証料、月額総賃料の1.5%/1年毎1万円 【オリコフォレントインシュア】→月額総賃料の50%〜 /年間保証料1 | ||
更新料 | 更新後賃料:1.5ヶ月 | 更新事務手数料 | - |
契約条件
貸家契約区分 | 普通賃貸借 | 契約期間 | 2年 |
---|---|---|---|
入居可能日 |
相談
空室状況を確認をする
|
引渡時期相談内容 | - |
フリーレント | - | ||
クレジットカード決済 | - |
駐車場
駐車場 |
有り 月額30,800円
駐車場について質問する
|
||
---|---|---|---|
駐車場契約形態 | - | ||
駐車場備考 | 空き状況要確認30,800円〜38,500円 | ||
バイク置き場 | - | ||
駐輪場 | - |
備考
その他 | 当物件は「住まいのリライフ」で取り扱っております。リライフは首都圏25店舗のネットワークで豊富な物件情報をお客様へご提供します。当物件に類似した未公開物件なども合わせてご提案可能です。お気軽にお問合せください。違約金有:1年未満2カ月プレミアデスク(税込/2年):1.65万円 | ||
---|---|---|---|
関連リンク | |||
取引態様 | 媒介 | 管理コード | 4663637 |
情報登録(更新)日 | 2025年10月23日 | 次回更新予定日 | 2025年10月30日 |
周辺環境
-
成城石井 ららぽーと豊洲店:731m
-
セブンイレブン 豊洲1丁目店:19m
-
セブンイレブン 豊洲3丁目店:203m
-
くすりの福太郎 豊洲1丁目店:137m
-
ポニークリーニング 豊洲3丁目店:427m
-
りそな銀行 豊洲支店:790m
- コンビニ
-
セブンイレブン 豊洲1丁目店19m
- 買物
-
成城石井 ららぽーと豊洲店731m
- ドラッグストア
-
くすりの福太郎 豊洲1丁目店137m
- ホームセンター
-
スーパービバホーム 豊洲店877m
- 病院
-
月島総合ファミリークリニック1000m
- 公園
-
江東区立中の島公園1179m
- 銀行
-
りそな銀行 豊洲支店790m
取扱店舗

ピタットハウス四谷店
株式会社リライフ
- 交通
- 四ツ谷駅 徒歩3分JR中央総武線・東京メトロ丸ノ内線・東京メトロ南北線四谷三丁目駅 徒歩9分東京メトロ丸ノ内線
- 営業時間
- 10:00 〜 18:30
- 定休日
- 毎週水曜日
ピタットハウスでは信頼されるサイトを目指して、物件情報の精度向上に努めています。
掲載物件に誤りがある場合は
こちら からご連絡ください。現状と異なる場合は、現状を優先させていただきます。
取引態様の欄に「媒介」と表示された物件は「仲介物件」です。ご成約の際には仲介手数料を申し受けます。
生活情報
江東区の暮らしデータ
江東区は、1947年に深川・城東の2区が合併し生まれました。現在の江東区は、水辺と緑に恵まれた自然的特性をいかしながら、「みんなでつくる伝統、未来 水彩都市・江東」を目指して、発展しています。中でも、臨海部の発展は著しく、2024年4月には人口54万人を突破しました。また、2021年開催の東京オリンピック・パラリンピック競技大会では、江東区に多くの競技場が配置され、更なる大きな発展の可能性を秘めています。
基本データ
市区役所所在地 | 江東区東陽4-11-28 |
---|---|
公式ホームページURL | https://www.city.koto.lg.jp/ |
総人口 | 524,310人 |
人口増減率(2015年/2020年) | 105.3% |
地域のおすすめ情報ブログ
一覧を見る
-
リフォーム産業フェア&賃貸住宅フェア9月17日・18日の2日間、東京ビッグサイトで開催された「リフォーム産業フェア」&「賃貸住宅フェア2025東京」に参加してきまし...続きを読む
-
ボリューム満点!!本場韓国料理こんにちは!亀戸店新人の木村です!今回ご紹介させていただくところは、JR総武線亀戸駅徒歩4分にあります『韓ビビンバ石焼家』さんで...続きを読む
-
自然がいっぱい!亀戸中央公園こんにちは!亀戸店新人の木村です!今回ご紹介させていただくところは、JR総武線亀戸駅徒歩12分にあります『亀戸中央公園』です!施...続きを読む
-
【深川芭蕉通り】平成20年3月23日に新たに命名された「深川芭蕉通り」は、江東区深川の歴史と文化を感じられる風情ある通りです。俳聖・松尾芭蕉にゆ...続きを読む
豊洲駅近隣の駅から探す
江東区の近隣エリアから探す
FAQ
-
A. 江東区豊洲マンション(AJN4663637_19)の内見は、見学予約でお問い合わせいただくか、直接四谷店(0037-6001-06556)までご連絡ください。
-
A. 可能です。江東区豊洲マンション(AJN4663637_19)周辺の情報は、ピタットハウスの地域情報ブログ「街ピタ」や住みたい街の暮らしデータをご活用ください。
-
A. 江東区豊洲マンション(AJN4663637_19)の費用は、こちらよりお問い合わせいただくか、直接四谷店(0037-6001-06556)までご連絡ください。
-
A. はい、可能です。賃貸希望物件リクエストをご利用ください。江東区豊洲マンション(AJN4663637_19)に似た物件も合わせてご紹介させていただきます。