前へ
次へ
前へ
次へ
マンション

杉並区高井戸東マンション

NEW
17 万円
共益費 -
1ヶ月
1ヶ月
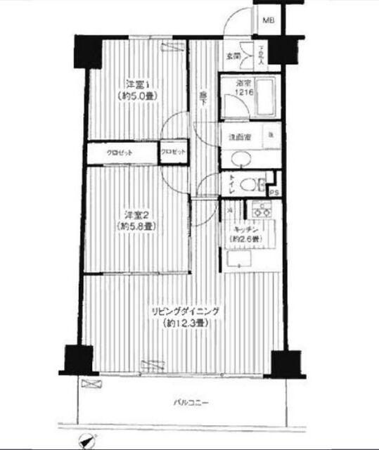
間取り
2LDK
専有面積
55.50㎡
所在階
7階建ての7階
向き
  • アイコン: 住所 東京都杉並区高井戸東3丁目
  • アイコン: 交通 京王井の頭線 「高井戸駅」 徒歩7分 / 京王井の頭線 「富士見ヶ丘駅」 徒歩14分 / 京王井の頭線 「浜田山駅」 徒歩20分
簡単無料
アイコン: お電話 0037-6001-06556
IP電話ご利用のお客様 : 03-4329-1394
ピタットハウス
四谷店
point!
当物件はオンラインまたはお近くの店舗でご相談お申込を承ります
室内見学承ります・お客様のご都合に合わせてオンラインまたはお近くの店舗でご提案可・初期費用分割払い可・クレジットカード利用可・引越業者割引・初期費用のお見積や入居日のご相談もお気軽にお問合せください
お気軽にお問い合わせください!
簡単無料
お気軽にお問い合わせください!
物件情報・周辺環境・契約手続きについてなどお気軽にお問い合わせください。

設備・条件

建物・立地
  • 最上階
  • 角部屋
  • エレベータ
  • 宅配ボックス
  • 敷地内駐車場
  • 都市ガス
  • 敷地内ごみ置き場
  • 公営水道
  • 下水
通信
  • CATV
  • BSアンテナ
  • 光回線
セキュリティ
  • オートロック
  • TVモニター付きインターホン
部屋設備
  • フローリング
  • バルコニー
  • 室内洗濯機置場
  • 下駄箱
  • クローゼット
  • 全居室フローリング
  • 全居室収納
  • 南面バルコニー
  • 陽当り良好
  • 玄関収納
  • 眺望良好
  • クロゼット2ヶ所
  • 高層階
  • 上階無し
  • 2面採光
  • 通風良好
冷暖房
  • エアコン
キッチン
  • システムキッチン
  • ガスコンロ(3口)
  • 独立型キッチン
  • グリル
バス・トイレ
  • バス・トイレ別
  • 追い焚き風呂
  • 独立洗面台
  • 脱衣所
特徴
  • 保証会社利用可
  • 二人入居可
  • 二人入居相談
  • 保証人不要
  • 初期費用カード決済可

物件概要

物件種別

部屋種別 マンション
建物名称 杉並区高井戸東マンション
所在地 東京都杉並区高井戸東3丁目 MAP
築年月 1997年10月 階数 7階建ての7階
建物構造 鉄筋コンクリート造 総戸数 -
間取り 2LDK 専有面積 55.50㎡
向き バルコニー面積 -
その他 -

費用

賃料 17万円 初期費用の確認をする 初期費用の確認をする 共益費 -
礼金 1ヶ月 敷金 1ヶ月
保証金 - 償却金 -
その他一時金 鍵交換代(税込):27500円
その他月額費用 -
住宅保険 要加入
保証会社 必須
保証会社補足 初回:月額総賃料35%〜
更新料 更新後賃料:1ヶ月 更新事務手数料 -

契約条件

貸家契約区分 普通賃貸借 契約期間 2年
入居可能日 相談 空室状況を確認をする 空室状況を確認をする 引渡時期相談内容 -
フリーレント -
クレジットカード決済 -

駐車場

駐車場 有り 月額30,800円 駐車場について質問する 駐車場について質問する
駐車場契約形態 -
駐車場備考 -
バイク置き場 -
駐輪場 -

備考

その他 当物件は「住まいのリライフ」で取り扱っております。リライフは首都圏25店舗のネットワークで豊富な物件情報をお客様へご提供します。当物件に類似した未公開物件なども合わせてご提案可能です。お気軽にお問合せください。
関連リンク
取引態様 媒介 管理コード 4774754
情報登録(更新)日 2026年2月7日 次回更新予定日 2026年2月14日
備考 めやす賃料:

めやす賃料とは賃料、共益費・管理費、敷引金、更新料を含み、賃料等条件の改定がないものと仮定して4年間賃借した場合(定期借家の場合は契約期間)の1ヶ月当たりの金額です。

※敷引金は、敷金の償却、保証金の償却など、預かった金額から必ず引くものをいいます。
※めやす賃料は、消費者に適切な情報を提供するための表示であり事業者に一時金を推奨するものではありません。
※めやす賃料は、実際の総支払額と異なる場合があります。詳しくは不動産会社にご確認ください。  

周辺環境

  • サミットストア 高井戸東店:657m
    サミットストア 高井戸東店:657m
  • セブンイレブン杉並高井戸西店:122m
    セブンイレブン杉並高井戸西店:122m
  • ミニストップ高井戸東3丁目店:194m
    ミニストップ高井戸東3丁目店:194m
  • スギ薬局高井戸店:341m
    スギ薬局高井戸店:341m
  • 白洋舎高井戸店:792m
    白洋舎高井戸店:792m
  • オリンピック高井戸店:415m
    オリンピック高井戸店:415m
  • 杉並高井戸東郵便局:525m
    杉並高井戸東郵便局:525m
  • みずほ銀行高井戸特別出張所:630m
    みずほ銀行高井戸特別出張所:630m
  • 杉並区役所 高井戸区民事務所:586m
    杉並区役所 高井戸区民事務所:586m
  • 高井戸警察署:865m
    高井戸警察署:865m
コンビニ
セブンイレブン杉並高井戸西店
122m
買物
サミットストア 高井戸東店
657m
ドラッグストア
スギ薬局高井戸店
341m
ホームセンター
オリンピック高井戸店
415m
役所
杉並区役所 高井戸区民事務所
586m
郵便局
杉並高井戸東郵便局
525m
交番
高井戸警察署
865m
銀行
みずほ銀行高井戸特別出張所
630m

取扱店舗

ピタットハウス四谷店
ピタットハウス四谷店
株式会社リライフ
交通
四ツ谷駅 徒歩3分JR中央総武線・東京メトロ丸ノ内線・東京メトロ南北線四谷三丁目駅 徒歩9分東京メトロ丸ノ内線
営業時間
10:00 〜 18:30
定休日
毎週水曜日(1月〜3月を除く)
お電話 0037-6001-06556 無料
メール お問い合わせ
  • お問い合わせ区分

  • 内見希望日時

    第一希望

    第二希望

  • お名前

    全角
  • ご希望の連絡方法

    メールアドレス

    電話番号

    半角
    半角
  • その他ご希望等

ピタットハウスの個人情報の取り扱いについて

ピタットハウスでは信頼されるサイトを目指して、物件情報の精度向上に努めています。
掲載物件に誤りがある場合は こちら からご連絡ください。現状と異なる場合は、現状を優先させていただきます。
取引態様の欄に「媒介」と表示された物件は「仲介物件」です。ご成約の際には仲介手数料を申し受けます。

生活情報

杉並区の暮らしデータ

杉並区は、東京23区の最西部に位置し、地名は江戸時代の初めに領地の境である青梅街道に沿って植えられた杉並木が由来となっています。杉並木はなくなりましたが、村名、町名として採用され、1932年の区制施行を経て現在に至っています。関東大震災以降、農村的たたずまいから住宅地へと変貌を遂げ、文化人や学者が多数移住するなど、今日に至るまで良好な住宅都市として発展を続けています。

基本データ

市区役所所在地 杉並区阿佐谷南1-15-1
公式ホームページURL https://www.city.suginami.tokyo.jp/
総人口 591,108人
人口増減率(2015年/2020年) 104.8%
杉並区の生活情報を詳しくみる

地域のおすすめ情報ブログ

一覧を見る

高井戸駅近隣の駅から探す

杉並区の近隣エリアから探す

FAQ

  • A. 杉並区高井戸東マンション(AJN4774754_2)の内見は、見学予約でお問い合わせいただくか、直接四谷店(0037-6001-06556)までご連絡ください。
  • A. 可能です。杉並区高井戸東マンション(AJN4774754_2)周辺の情報は、ピタットハウスの地域情報ブログ「街ピタ」住みたい街の暮らしデータをご活用ください。
  • A. 杉並区高井戸東マンション(AJN4774754_2)の費用は、こちらよりお問い合わせいただくか、直接四谷店(0037-6001-06556)までご連絡ください。
  • A. はい、可能です。賃貸希望物件リクエストをご利用ください。杉並区高井戸東マンション(AJN4774754_2)に似た物件も合わせてご紹介させていただきます。