3沿線利用可の便利な立地!分譲賃貸マンション!防犯カメラ・オートロックで防犯面も安心♪

お気軽にお問い合わせください!
物件情報・周辺環境・契約手続きについてなどお気軽にお問い合わせください。
設備・条件
|
|
---|---|
|
|
|
|
|
|
|
|
|
|
物件概要
物件種別
部屋種別 | マンション | ||
---|---|---|---|
建物名称 | パークハウス練馬春日町(504) | ||
所在地 | 東京都練馬区春日町4丁目 MAP | ||
築年月 | 2009年3月 | 階数 | 9階建ての5階 |
建物構造 | 鉄筋コンクリート造 | 総戸数 | 27戸 |
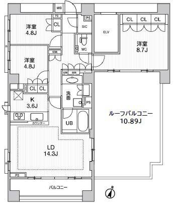
間取り | 1LDK(LDK16.2帖 洋6.5帖) | 専有面積 | 55.55㎡ |
向き | 南東 | バルコニー面積 | - |
その他 | - |
費用
賃料 |
18.8万円
初期費用の確認をする
|
共益費 | 10,000円 |
---|---|---|---|
礼金 | 18.8万円 | 敷金 | 18.8万円 |
保証金 | - | 償却金 | - |
その他一時金 | - | ||
その他月額費用 | - | ||
住宅保険 | 要加入 | ||
保証会社 | 必須 | ||
保証会社補足 | 初回保証料:月額賃料等×40% 年間保証料:月額賃料等150,000円未満10,000円、月額賃料等150,000円以上14,000円 | ||
更新料 | 更新後賃料:1ヶ月 | 更新事務手数料 | - |
契約条件
貸家契約区分 | 普通賃貸借 | 契約期間 | 2年 |
---|---|---|---|
入居可能日 |
相談
空室状況を確認をする
|
引渡時期相談内容 | - |
フリーレント | - | ||
クレジットカード決済 | - |
駐車場
駐車場 |
なし
駐車場について質問する
|
||
---|---|---|---|
駐車場契約形態 | - | ||
駐車場備考 | - | ||
バイク置き場 | - | ||
駐輪場 | - |
備考
その他 | 鍵交換費:22000円 短期(1年未満)解約違約金有 | ||
---|---|---|---|
関連リンク | |||
取引態様 | 媒介 | 管理コード | 4642267 |
情報登録(更新)日 | 2025年10月12日 | 次回更新予定日 | 2025年10月19日 |
周辺環境
-
セブンイレブン 練馬春日町4丁目店:125m
-
サミットストア 練馬春日町店:468m
- コンビニ
-
セブンイレブン 練馬春日町4丁目店125m
- 買物
-
サミットストア 練馬春日町店468m
- ショッピング施設
-
ジェーソン 練馬春日町店292m
- ドラッグストア
-
スギ薬局 在宅調剤センター練馬店121m
取扱店舗

ピタットハウス氷川台店
株式会社正久保不動産
- 交通
- 東京メトロ有楽町線・副都心線「氷川台」駅より徒歩1分。緑の看板が目印です。
- 営業時間
- 10:00 〜 18:00
- 定休日
- 毎週火曜日・水曜日
ピタットハウスでは信頼されるサイトを目指して、物件情報の精度向上に努めています。
掲載物件に誤りがある場合は
こちら からご連絡ください。現状と異なる場合は、現状を優先させていただきます。
取引態様の欄に「媒介」と表示された物件は「仲介物件」です。ご成約の際には仲介手数料を申し受けます。
生活情報
練馬区の暮らしデータ
練馬区は、1947年8月1日に東京都の23番目の特別区として板橋区から分離独立し、農村から都市へと変貌を遂げてきました。みどり豊かな環境と都心に近い利便性が両立する、良好な住宅都市となっています。
基本データ
市区役所所在地 | 練馬区豊玉北6-12-1 |
---|---|
公式ホームページURL | https://www.city.nerima.tokyo.jp/ |
総人口 | 752,608人 |
人口増減率(2015年/2020年) | 104.3% |
地域のおすすめ情報ブログ
一覧を見る
-
商標登録のアジフライこんにちは練馬西口店の佐久間です。今回ご紹介するのは、お昼の時間帯は常に行列?2種類のアジフライの食べ比べができるお店『アジ好き...続きを読む
-
新設で利用のしやすい公園こんにちは練馬西口店の佐久間です。今回ご紹介するのは、新設で多くの設備が充実している公園『練馬総合運動公園いちょうひろば』です。...続きを読む
-
子育て世代にうれしい公園こんにちは練馬西口店の佐久間です。今回ご紹介するのは、子供たちに人気の広場『練馬けやき公園』です。練馬白山神社のすぐ横に広がって...続きを読む
-
歴史ある由緒正しき神社こんにちは練馬西口店の佐久間です。今回ご紹介するのは、樹齢900年を超えるケヤキのご神木が残っている由緒正しき神社である『練馬白...続きを読む
平和台駅近隣の駅から探す
練馬区の近隣エリアから探す
FAQ
-
A. パークハウス練馬春日町(CY4642267_1)の内見は、見学予約でお問い合わせいただくか、直接氷川台店(0037-6001-04986)までご連絡ください。
-
A. 可能です。パークハウス練馬春日町(CY4642267_1)周辺の情報は、ピタットハウスの地域情報ブログ「街ピタ」や住みたい街の暮らしデータをご活用ください。
-
A. パークハウス練馬春日町(CY4642267_1)の費用は、こちらよりお問い合わせいただくか、直接氷川台店(0037-6001-04986)までご連絡ください。
-
A. はい、可能です。賃貸希望物件リクエストをご利用ください。パークハウス練馬春日町(CY4642267_1)に似た物件も合わせてご紹介させていただきます。