前へ
次へ
前へ
次へ
マンション
即入居可

川崎市高津区瀬田マンション

NEW
12.4 万円
共益費 10,000
-
-
間取り
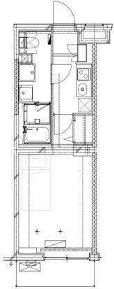
1K
専有面積
25.35㎡
所在階
5階建ての5階
向き
-
  • アイコン: 住所 神奈川県川崎市高津区瀬田11-27
  • アイコン: 交通 東急田園都市線 「二子新地駅」 徒歩5分 / 東急田園都市線 「高津駅」 徒歩11分 / 東急田園都市線 「二子玉川駅」 徒歩13分
簡単無料
アイコン: お電話 0037-6001-09920
IP電話ご利用のお客様 : 044-820-0081
ピタットハウス
高津店
point!
☆新築マンション☆ペット飼育可能!(大型犬・猫・多頭飼い可)
契約金カード決済可能!ご内見可能です!お気軽にお問い合わせください!留守がちな方にオススメな宅配ボックス付き!二子新地駅まで徒歩5分!
お気軽にお問い合わせください!
簡単無料
お気軽にお問い合わせください!
物件情報・周辺環境・契約手続きについてなどお気軽にお問い合わせください。

設備・条件

建物・立地
  • エレベータ
  • 宅配ボックス
  • 都市ガス
  • 敷地内ごみ置き場
  • 風除室
通信
  • LAN
  • MMコンセント(マルチメディアコンセント)
セキュリティ
  • オートロック
  • TVモニター付きインターホン
  • ピッキング対策キー
  • 24時間セキュリティー
  • モニタ付オートロック
  • ダブルロックドア
  • 防犯カメラ
  • オートロック置き配対応
  • 24時間受付管理
  • セキュリティ会社
部屋設備
  • フローリング
  • バルコニー
  • 室内洗濯機置場
  • クローゼット
  • 収納スペース
  • 人感センサー付照明
  • 照明器具
  • 全居室フローリング
  • 全居室収納
  • 玄関収納
  • 24時間換気システム
冷暖房
  • エアコン
  • 全居室エアコン
キッチン
  • システムキッチン
  • ガスコンロ(2口)
バス・トイレ
  • バス・トイレ別
  • 浴室乾燥機
  • 独立洗面台
  • 温水洗浄便座
  • シャワー
  • 洗面化粧台
  • 洗面所
  • トイレ
  • 脱衣所
  • 洗面所にドア
特徴
  • 新築
  • ペット相談可
  • ルームシェア可
  • 二人入居可
  • 高齢者相談
  • 即入居可
  • 二人入居相談
  • 敷金不要
  • 礼金不要
  • 敷金・礼金不要
  • 子供可
  • 保証人不要

物件概要

物件種別

部屋種別 マンション
建物名称 川崎市高津区瀬田マンション
所在地 神奈川県川崎市高津区瀬田11-27 MAP
築年月 2025年11月 階数 5階建ての5階
建物構造 鉄筋コンクリート造 総戸数 108戸
間取り 1K(洋8帖) 専有面積 25.35㎡
向き - バルコニー面積 -
その他 -

費用

賃料 12.4万円 初期費用の確認をする 初期費用の確認をする 共益費 10,000円
礼金 - 敷金 ペット積み増し(12.4万円)
保証金 - 償却金 -
その他一時金 契約事務手数料:11000円 / 消臭抗菌サービス:11000円 / 外国籍サポートプラン:10800円 / 室内清掃費用:38500円
その他月額費用 -
住宅保険 要加入
保証会社 必須
保証会社補足 加入要 ルームバンクインシュア 一番手「RBI」初回保証料:40%(ペット飼育時60%)  外国籍:100%+外国籍サポート年間10,800円  (※審査により変更有・要確認)   外国籍家賃:クレカ
更新料 更新後賃料:1ヶ月 更新事務手数料 -

契約条件

貸家契約区分 普通賃貸借 契約期間 2年
入居可能日 即可 空室状況を確認をする 空室状況を確認をする 引渡時期相談内容 -
フリーレント -
クレジットカード決済 -

駐車場

駐車場 なし 駐車場について質問する 駐車場について質問する
駐車場契約形態 -
駐車場備考 -
バイク置き場 -
駐輪場 -

備考

その他 ルームクリーニング費用:38500円。1年未満解約時短期違約金有
関連リンク
取引態様 媒介 管理コード 4725103
情報登録(更新)日 2026年2月8日 次回更新予定日 2026年2月15日
備考 めやす賃料:

めやす賃料とは賃料、共益費・管理費、敷引金、更新料を含み、賃料等条件の改定がないものと仮定して4年間賃借した場合(定期借家の場合は契約期間)の1ヶ月当たりの金額です。

※敷引金は、敷金の償却、保証金の償却など、預かった金額から必ず引くものをいいます。
※めやす賃料は、消費者に適切な情報を提供するための表示であり事業者に一時金を推奨するものではありません。
※めやす賃料は、実際の総支払額と異なる場合があります。詳しくは不動産会社にご確認ください。  

川崎市高津区瀬田マンション の他の空室物件

1
建物の空室物件一覧 次へ

周辺環境

  • 川崎市立東高津小学校:861m
    川崎市立東高津小学校:861m
  • 川崎市立高津中学校:1764m
    川崎市立高津中学校:1764m
  • 諏訪幼稚園:654m
    諏訪幼稚園:654m
  • 川崎市立高津高校:2070m
    川崎市立高津高校:2070m
  • 世田谷区役所二子玉川出張所:1281m
    世田谷区役所二子玉川出張所:1281m
  • 川崎諏訪郵便局:286m
    川崎諏訪郵便局:286m
  • 川崎市立高津図書館:1211m
    川崎市立高津図書館:1211m
  • 高津警察署:1218m
    高津警察署:1218m
  • 世田谷区立二子玉川公園:1626m
    世田谷区立二子玉川公園:1626m
  • 帝京大学医学部附属溝口病院:1245m
    帝京大学医学部附属溝口病院:1245m
  • 三井住友信託銀行二子玉川支店:1029m
    三井住友信託銀行二子玉川支店:1029m
  • まいばすけっと川崎二子新地店:351m
    まいばすけっと川崎二子新地店:351m
  • セブンイレブン川崎諏訪店:332m
    セブンイレブン川崎諏訪店:332m
  • 玉川タカシマヤ:1131m
    玉川タカシマヤ:1131m
  • ウエルシア二子新地店:355m
    ウエルシア二子新地店:355m
  • エディオン二子玉川蔦屋家電:1247m
    エディオン二子玉川蔦屋家電:1247m
  • 私立多摩美術大学上野毛キャンパス:2169m
    私立多摩美術大学上野毛キャンパス:2169m
コンビニ
セブンイレブン川崎諏訪店
332m
買物
まいばすけっと川崎二子新地店
351m
ショッピング施設
玉川タカシマヤ
1131m
ドラッグストア
ウエルシア二子新地店
355m
ホームセンター
エディオン二子玉川蔦屋家電
1247m
病院
帝京大学医学部附属溝口病院
1245m
役所
世田谷区役所二子玉川出張所
1281m
郵便局
川崎諏訪郵便局
286m
図書館
川崎市立高津図書館
1211m
交番
高津警察署
1218m
公園
世田谷区立二子玉川公園
1626m
銀行
三井住友信託銀行二子玉川支店
1029m
幼稚園
諏訪幼稚園
654m
小学校
川崎市立東高津小学校
861m
中学校
川崎市立高津中学校
1764m
高校
川崎市立高津高校
2070m

取扱店舗

ピタットハウス高津店
ピタットハウス高津店
株式会社エイチ・アイ・トラスト
交通
東急田園都市線 高津駅 徒歩1分
営業時間
10:00 〜 19:00
定休日
毎週水曜日 
お電話 0037-6001-09920 無料
メール お問い合わせ
  • お問い合わせ区分

  • 内見希望日時

    第一希望

    第二希望

  • お名前

    全角
  • ご希望の連絡方法

    メールアドレス

    電話番号

    半角
    半角
  • その他ご希望等

ピタットハウスの個人情報の取り扱いについて

ピタットハウスでは信頼されるサイトを目指して、物件情報の精度向上に努めています。
掲載物件に誤りがある場合は こちら からご連絡ください。現状と異なる場合は、現状を優先させていただきます。
取引態様の欄に「媒介」と表示された物件は「仲介物件」です。ご成約の際には仲介手数料を申し受けます。

生活情報

川崎市の暮らしデータ

川崎市は、自然豊かな多摩川に面し、市内を縦断するJR南武線に加え5つの私鉄が横断する利便性の高い人口増加が続くまちです。首都圏有数の広さを誇る生田緑地には「藤子・F・不二雄ミュージアム」、川崎駅前には世界有数の音響を誇る「ミューザ川崎シンフォニーホール」、さらに市内に2つの音楽大学や日本初の映画の専科大学が立地するとともに、スポーツではJリーグ川崎フロンターレ等の数多くのトップチームが活躍しています。

基本データ

市区役所所在地 川崎市川崎区宮本町1
公式ホームページURL https://www.city.kawasaki.jp/
総人口 1,538,262人
人口増減率(2015年/2020年) 104.3%
川崎市の生活情報を詳しくみる

地域のおすすめ情報ブログ

一覧を見る

二子新地駅近隣の駅から探す

川崎市高津区の近隣エリアから探す

FAQ

  • A. 川崎市高津区瀬田マンション(DC4725103_10)の内見は、見学予約でお問い合わせいただくか、直接高津店(0037-6001-09920)までご連絡ください。
  • A. 可能です。川崎市高津区瀬田マンション(DC4725103_10)周辺の情報は、ピタットハウスの地域情報ブログ「街ピタ」住みたい街の暮らしデータをご活用ください。
  • A. 川崎市高津区瀬田マンション(DC4725103_10)の費用は、こちらよりお問い合わせいただくか、直接高津店(0037-6001-09920)までご連絡ください。
  • A. はい、可能です。賃貸希望物件リクエストをご利用ください。川崎市高津区瀬田マンション(DC4725103_10)に似た物件も合わせてご紹介させていただきます。