前へ
次へ
前へ
次へ
マンション

エムレジデンス渋谷神泉(0308)

NEW
19.4 万円
共益費 15,000
19.4万円
19.4万円
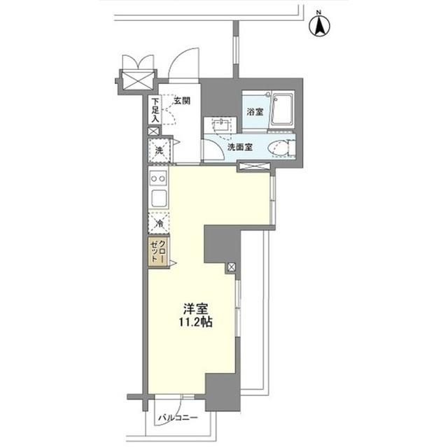
間取り
1LDK
専有面積
35.07㎡
所在階
17階建ての3階
向き
  • アイコン: 住所 東京都目黒区青葉台4丁目
  • アイコン: 交通 京王井の頭線 「神泉駅」 徒歩8分 / 東京メトロ銀座線 「渋谷駅」 徒歩12分
簡単無料
アイコン: お電話 0037-6001-08163
IP電話ご利用のお客様 : 0422-39-3966
ピタットハウス
武蔵境店
point!
■ネット無料※つなぐネットに限る
お気軽にお問い合わせください!
簡単無料
お気軽にお問い合わせください!
物件情報・周辺環境・契約手続きについてなどお気軽にお問い合わせください。

設備・条件

建物・立地
  • エレベータ
  • 宅配ボックス
  • 駐輪場
  • 常時ゴミ出し可能
  • バイク置場
通信
  • インターネット無料
  • CATV
セキュリティ
  • オートロック
  • 防犯カメラ
特徴
  • ペット相談可

物件概要

物件種別

部屋種別 マンション
建物名称 エムレジデンス渋谷神泉(0308)
所在地 東京都目黒区青葉台4丁目
築年月 2016年1月 階数 17階建ての3階
建物構造 鉄筋コンクリート造 総戸数 98戸
間取り 1LDK(LDK10.1帖 洋4.2帖) 専有面積 35.07㎡
向き バルコニー面積 -
その他 -

費用

賃料 19.4万円 初期費用の確認をする 初期費用の確認をする 共益費 15,000円
礼金 19.4万円 敷金 19.4万円
保証金 - 償却金 -
その他一時金 鍵交換代:33000円 / 清掃費:44000円
その他月額費用 -
住宅保険 要加入(2年16550円)
保証会社 必須
保証会社補足 エポスカード(RP) 保証料:賃料等の50%(最低2万)、月額保証料:賃料等の1%(更新料無)
更新料 更新後賃料:1ヶ月 更新事務手数料 -

契約条件

貸家契約区分 普通賃貸借 契約期間 2年
入居可能日 2026年1月31日予定 空室状況を確認をする 空室状況を確認をする 引渡時期相談内容 -
フリーレント -
クレジットカード決済 -

駐車場

駐車場 なし 駐車場について質問する 駐車場について質問する
駐車場契約形態 -
駐車場備考 -
バイク置き場 -
駐輪場 -

備考

その他 ■保証会社利用必須※法人相談・敷金1ヶ月積増■ペット飼育相談(小型犬1匹 or 猫1匹)※敷金1ヵ月積増し■現在入居中のためエアコン台数不明、退去時エアコン清掃費1台あたり最大27,500 円を申し受けます
関連リンク
取引態様 媒介 管理コード 4508066
情報登録(更新)日 2025年12月8日 次回更新予定日 2025年12月14日
備考 めやす賃料:

めやす賃料とは賃料、共益費・管理費、敷引金、更新料を含み、賃料等条件の改定がないものと仮定して4年間賃借した場合(定期借家の場合は契約期間)の1ヶ月当たりの金額です。

※敷引金は、敷金の償却、保証金の償却など、預かった金額から必ず引くものをいいます。
※めやす賃料は、消費者に適切な情報を提供するための表示であり事業者に一時金を推奨するものではありません。
※めやす賃料は、実際の総支払額と異なる場合があります。詳しくは不動産会社にご確認ください。  

取扱店舗

ピタットハウス武蔵境店
ピタットハウス武蔵境店
株式会社東洋リーベスト
交通
JR中央線 『武蔵境駅』 南口より 徒歩30秒 駐車場有 
営業時間
10:00 〜 19:00
定休日
毎週水曜日・夏季休業・8/12から8/20まで
  • 近隣駐車場あり/キッズスペースあり
お電話 0037-6001-08163 無料
メール お問い合わせ
  • お問い合わせ区分

  • 内見希望日時

    第一希望

    第二希望

  • お名前

    全角
  • ご希望の連絡方法

    メールアドレス

    電話番号

    半角
    半角
  • その他ご希望等

ピタットハウスの個人情報の取り扱いについて

ピタットハウスでは信頼されるサイトを目指して、物件情報の精度向上に努めています。
掲載物件に誤りがある場合は こちら からご連絡ください。現状と異なる場合は、現状を優先させていただきます。
取引態様の欄に「媒介」と表示された物件は「仲介物件」です。ご成約の際には仲介手数料を申し受けます。

その他の取扱店舗

不動産会社毎に募集条件等が異なる場合があります。詳細は各店の物件詳細ページにてご確認ください。
交通
JR山手線「新宿」駅徒歩6分都営大江戸線「新宿西口」駅徒歩2分
営業時間
09:30 〜 18:30
定休日
毎週水曜日・2月・3月は無休、夏季休暇無し・年末年始
お電話 0037-6001-05237 無料
交通
下北沢で創業40年。下北沢駅西口出て左に徒歩10秒。賃貸も売買も、様々な物件を数多く取揃えてお客様のご来店をお待ちしております。
営業時間
10:00 〜 19:00
定休日
毎週水曜日・12月28日〜1月5日まで年末年始休業・GW休暇、夏期休暇、冬期休暇
お電話 0037-6001-07654 無料

生活情報

目黒区の暮らしデータ

目黒区は、東京23区の南西部にあり、区内は台地の中を二つの川の谷が走り、起伏の多い地形です。1932年に目黒町と碑衾町が合併し誕生した、山の手の緑ある良好な住宅地です。世論調査でも、「住み続けたい」という人が90%を超える、良好な住環境が特徴です。

基本データ

市区役所所在地 目黒区上目黒2-19-15
公式ホームページURL https://www.city.meguro.tokyo.jp/
総人口 288,088人
人口増減率(2015年/2020年) 103.8%
目黒区の生活情報を詳しくみる

地域のおすすめ情報ブログ

一覧を見る

神泉駅近隣の駅から探す

目黒区の近隣エリアから探す

FAQ

  • A. エムレジデンス渋谷神泉(GC4508066_65)の内見は、見学予約でお問い合わせいただくか、直接武蔵境店(0037-6001-08163)までご連絡ください。
  • A. 可能です。エムレジデンス渋谷神泉(GC4508066_65)周辺の情報は、ピタットハウスの地域情報ブログ「街ピタ」住みたい街の暮らしデータをご活用ください。
  • A. エムレジデンス渋谷神泉(GC4508066_65)の費用は、こちらよりお問い合わせいただくか、直接武蔵境店(0037-6001-08163)までご連絡ください。
  • A. はい、可能です。賃貸希望物件リクエストをご利用ください。エムレジデンス渋谷神泉(GC4508066_65)に似た物件も合わせてご紹介させていただきます。