前へ
次へ
前へ
次へ
マンション

ルフォンプログレ渋谷ヒルトップ(1702)

38 万円
共益費 30,000
38万円
38万円
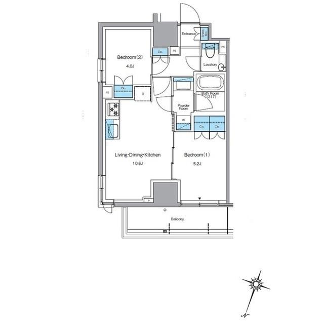
間取り
2LDK
専有面積
52.20㎡
所在階
地下1階・地上18階建ての17階
向き
  • アイコン: 住所 東京都目黒区青葉台4丁目
  • アイコン: 交通 京王井の頭線 「神泉駅」 徒歩8分 / 東京メトロ銀座線 「渋谷駅」 徒歩14分
簡単無料
アイコン: お電話 0037-6001-02068
IP電話ご利用のお客様 : 03-5731-5690
ピタットハウス
都立大学店
point!
◆「渋谷」駅徒歩圏内 賃貸マンション
お気軽にお問い合わせください!
簡単無料
お気軽にお問い合わせください!
物件情報・周辺環境・契約手続きについてなどお気軽にお問い合わせください。

設備・条件

建物・立地
  • エレベータ
  • 宅配ボックス
  • 駐輪場
  • バイク置場
通信
  • インターネット無料
  • CATV
セキュリティ
  • オートロック
  • TVモニター付きインターホン
  • 防犯カメラ
部屋設備
  • 室内洗濯機置場
冷暖房
  • エアコン
キッチン
  • システムキッチン
バス・トイレ
  • バス・トイレ別
  • 追い焚き風呂
  • 独立洗面台
  • 温水洗浄便座
特徴
  • ペット相談可

物件概要

物件種別

部屋種別 マンション
建物名称 ルフォンプログレ渋谷ヒルトップ(1702)
所在地 東京都目黒区青葉台4丁目
築年月 2022年10月 階数 地下1階・地上18階建ての17階
建物構造 鉄筋コンクリート造 総戸数 135戸
間取り 2LDK(LDK11.9帖 洋5.3帖 洋4帖) 専有面積 52.20㎡
向き バルコニー面積 -
その他 -

費用

賃料 38万円 初期費用の確認をする 初期費用の確認をする 共益費 30,000円
礼金 38万円 敷金 38万円
保証金 - 償却金 -
その他一時金 清掃費:55880円 / エアコン清掃費:33000円
その他月額費用 -
住宅保険 要加入(2年16550円)
保証会社 必須
保証会社補足 レジデンシャルパートナーズ 保証料:賃料等の50%(最低2万)、月額保証・事務手数料:賃料等の1%(更新料無)
更新料 更新後賃料:1ヶ月 更新事務手数料 -

契約条件

貸家契約区分 普通賃貸借 契約期間 2年
入居可能日 2026年1月20日予定 空室状況を確認をする 空室状況を確認をする 引渡時期相談内容 -
フリーレント -
クレジットカード決済 -

駐車場

駐車場 なし 駐車場について質問する 駐車場について質問する
駐車場契約形態 -
駐車場備考 -
バイク置き場 -
駐輪場 -

備考

その他 ■指定保証会社利用必須※一部法人契約除く 敷金賃料1ヶ月分積み増し■ペット飼育の場合:敷金賃料2ヶ月分■ペット飼育時使用細則遵守・小型犬又は猫1匹迄■解約時室内及びエアコンクリーニング費用借主負担■楽器演奏不可■付随設備に関する費用・空き状況等は要確認■解約予告2ヶ月前■駐車場利用は14階〜18階の2LDK・3LDKお申込みの方限定となります。
関連リンク
取引態様 媒介 管理コード 4053756
情報登録(更新)日 2025年11月21日 次回更新予定日 2025年11月27日
備考 めやす賃料:

めやす賃料とは賃料、共益費・管理費、敷引金、更新料を含み、賃料等条件の改定がないものと仮定して4年間賃借した場合(定期借家の場合は契約期間)の1ヶ月当たりの金額です。

※敷引金は、敷金の償却、保証金の償却など、預かった金額から必ず引くものをいいます。
※めやす賃料は、消費者に適切な情報を提供するための表示であり事業者に一時金を推奨するものではありません。
※めやす賃料は、実際の総支払額と異なる場合があります。詳しくは不動産会社にご確認ください。  

取扱店舗

ピタットハウス都立大学店
ピタットハウス都立大学店
カーサ・プラスワン株式会社
交通
東横線「都立大学駅」の改札を出て左へ。1Fにラーメン屋さんがあるビルの3Fです。
営業時間
10:00 〜 18:30
定休日
毎週火曜日・水曜日
  • 近隣駐車場あり
お電話 0037-6001-02068 無料
メール お問い合わせ
  • お問い合わせ区分

  • 内見希望日時

    第一希望

    第二希望

  • お名前

    全角
  • ご希望の連絡方法

    メールアドレス

    電話番号

    半角
    半角
  • その他ご希望等

ピタットハウスの個人情報の取り扱いについて

ピタットハウスでは信頼されるサイトを目指して、物件情報の精度向上に努めています。
掲載物件に誤りがある場合は こちら からご連絡ください。現状と異なる場合は、現状を優先させていただきます。
取引態様の欄に「媒介」と表示された物件は「仲介物件」です。ご成約の際には仲介手数料を申し受けます。

その他の取扱店舗

不動産会社毎に募集条件等が異なる場合があります。詳細は各店の物件詳細ページにてご確認ください。
交通
JR山手線「新宿」駅徒歩6分都営大江戸線「新宿西口」駅徒歩2分
営業時間
09:30 〜 18:30
定休日
毎週水曜日・2月・3月は無休、夏季休暇無し・年末年始
お電話 0037-6001-05237 無料
交通
東京メトロ日比谷線「恵比寿」駅 徒歩7分、東京メトロ日比谷線「広尾」駅 徒歩10分
営業時間
10:00 〜 18:00
定休日
毎週水曜日
お電話 0037-6001-00382 無料
交通
JR中央線「阿佐ヶ谷駅」南口徒歩1分ロータリーに面した駅直結の店舗です。
営業時間
10:00 〜 19:00
定休日
毎週火・水曜日・1月から3月は毎日営業・夏季休業8/12から8/20まで
  • キッズスペースあり
お電話 0037-6001-07674 無料
交通
JR中央線 『武蔵境駅』 南口より 徒歩30秒 駐車場有 
営業時間
10:00 〜 19:00
定休日
毎週水曜日・夏季休業・8/12から8/20まで
  • 近隣駐車場あり/キッズスペースあり
お電話 0037-6001-08163 無料
交通
潮見駅西口から徒歩2分の立地にございます。
営業時間
10:00 〜 19:00
定休日
毎週水曜日・年末年始・GW・夏季休業日
  • 駐車場あり/近隣駐車場あり
お電話 0037-6001-06934 無料

生活情報

目黒区の暮らしデータ

目黒区は、東京23区の南西部にあり、区内は台地の中を二つの川の谷が走り、起伏の多い地形です。1932年に目黒町と碑衾町が合併し誕生した、山の手の緑ある良好な住宅地です。世論調査でも、「住み続けたい」という人が90%を超える、良好な住環境が特徴です。

基本データ

市区役所所在地 目黒区上目黒2-19-15
公式ホームページURL https://www.city.meguro.tokyo.jp/
総人口 288,088人
人口増減率(2015年/2020年) 103.8%
目黒区の生活情報を詳しくみる

地域のおすすめ情報ブログ

一覧を見る

神泉駅近隣の駅から探す

目黒区の近隣エリアから探す

FAQ

  • A. ルフォンプログレ渋谷ヒルトップ(HM4053756_840)の内見は、見学予約でお問い合わせいただくか、直接都立大学店(0037-6001-02068)までご連絡ください。
  • A. 可能です。ルフォンプログレ渋谷ヒルトップ(HM4053756_840)周辺の情報は、ピタットハウスの地域情報ブログ「街ピタ」住みたい街の暮らしデータをご活用ください。
  • A. ルフォンプログレ渋谷ヒルトップ(HM4053756_840)の費用は、こちらよりお問い合わせいただくか、直接都立大学店(0037-6001-02068)までご連絡ください。
  • A. はい、可能です。賃貸希望物件リクエストをご利用ください。ルフォンプログレ渋谷ヒルトップ(HM4053756_840)に似た物件も合わせてご紹介させていただきます。