前へ
次へ
前へ
次へ
マンション

ミライズ横濱SOUTHレジデンス

NEW
11.85 万円
共益費 10,000
-
11.85万円
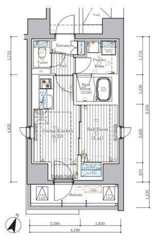
間取り
1DK
専有面積
26.85㎡
所在階
11階建ての11階
向き
-
  • アイコン: 住所 神奈川県横浜市西区戸部本町
  • アイコン: 交通 京急本線 「戸部駅」 徒歩1分 / 相鉄本線 「平沼橋駅」 徒歩9分 / 横浜市ブルーライン 「高島町駅」 徒歩7分
簡単無料
アイコン: お電話 0037-6001-09445
IP電話ご利用のお客様 : 045-264-3311
ピタットハウス
センター南店
point!
戸部駅徒歩1分の1DKおすすめ新築貸マンションです!
2026年01月築!26.85㎡の便利な京急本線沿線!
お気軽にお問い合わせください!
簡単無料
お気軽にお問い合わせください!
物件情報・周辺環境・契約手続きについてなどお気軽にお問い合わせください。

設備・条件

建物・立地
  • 最上階
  • エレベータ
  • 宅配ボックス
  • 都市ガス
通信
  • インターネット無料
セキュリティ
  • オートロック
  • TVモニター付きインターホン
  • モニタ付オートロック
  • 防犯カメラ
部屋設備
  • バルコニー
  • 室内洗濯機置場
  • 下駄箱
  • クローゼット
  • 収納スペース
  • 眺望良好
冷暖房
  • エアコン
キッチン
  • システムキッチン
  • ガスコンロ(2口)
バス・トイレ
  • バス・トイレ別
  • 浴室乾燥機
  • 温水洗浄便座
  • トイレ
  • 洗面台
特徴
  • 新築
  • オンライン内見可
  • IT重説対応物件
  • 二人入居可
  • 保証金不要
  • 保証人不要
  • 初期費用カード決済可

物件概要

物件種別

部屋種別 マンション
建物名称 ミライズ横濱SOUTHレジデンス
所在地 神奈川県横浜市西区戸部本町 MAP
築年月 2026年1月 階数 11階建ての11階
建物構造 鉄筋コンクリート造 総戸数 43戸
間取り 1DK 専有面積 26.85㎡
向き - バルコニー面積 -
その他 -

費用

賃料 11.85万円 初期費用の確認をする 初期費用の確認をする 共益費 10,000円
礼金 11.85万円 敷金 -
保証金 - 償却金 -
その他一時金 退去時ハウスクリーニング:63800円
その他月額費用 24時間駆け付けサポート:1100円/月
住宅保険 要加入(2年20000円)
保証会社 必須
保証会社補足 加入要 初回契約時:50%、更新時:12,000円、エルズサポート・いえらぶパートナーズ利用可
更新料 更新後賃料:1ヶ月 更新事務手数料 -

契約条件

貸家契約区分 普通賃貸借 契約期間 2年
入居可能日 2026年2月27日予定 空室状況を確認をする 空室状況を確認をする 引渡時期相談内容 -
フリーレント -
クレジットカード決済 初期費用クレジット決済可

駐車場

駐車場 なし 駐車場について質問する 駐車場について質問する
駐車場契約形態 -
駐車場備考 -
バイク置き場 なし
駐輪場 なし

備考

その他 宅配BOX完備で不在がちな方にも、荷物を受取れる便利設備! オートロック設備完備で安心生活をしっかりサポート! システムキッチンなど収納等の室内設備充実! 当店なら各カード会社で初期費用クレジット決済可能!
関連リンク
取引態様 媒介 管理コード 4770912
情報登録(更新)日 2026年2月1日 次回更新予定日 2026年2月8日
備考 めやす賃料:

めやす賃料とは賃料、共益費・管理費、敷引金、更新料を含み、賃料等条件の改定がないものと仮定して4年間賃借した場合(定期借家の場合は契約期間)の1ヶ月当たりの金額です。

※敷引金は、敷金の償却、保証金の償却など、預かった金額から必ず引くものをいいます。
※めやす賃料は、消費者に適切な情報を提供するための表示であり事業者に一時金を推奨するものではありません。
※めやす賃料は、実際の総支払額と異なる場合があります。詳しくは不動産会社にご確認ください。  

ミライズ横濱SOUTHレジデンス の他の空室物件

1
建物の空室物件一覧 次へ

周辺環境

  • 横浜市立平沼小学校:444m
    横浜市立平沼小学校:444m
  • 横浜市立西中学校:770m
    横浜市立西中学校:770m
  • にじいろ保育園平沼:406m
    にじいろ保育園平沼:406m
  • 横浜市西区役所:630m
    横浜市西区役所:630m
  • 横浜戸部本町郵便局:275m
    横浜戸部本町郵便局:275m
  • 戸部公園:617m
    戸部公園:617m
  • 横浜ビブレ:1292m
    横浜ビブレ:1292m
ショッピング施設
横浜ビブレ
1292m
役所
横浜市西区役所
630m
郵便局
横浜戸部本町郵便局
275m
公園
戸部公園
617m
幼稚園
にじいろ保育園平沼
406m
小学校
横浜市立平沼小学校
444m
中学校
横浜市立西中学校
770m

取扱店舗

ピタットハウスセンター南店
ピタットハウスセンター南店
株式会社関東住宅流通
交通
センター南駅 出口1から徒歩約3分センター北駅 出口1から徒歩約16分都筑ふれあいの丘駅 出口1から徒歩約17分
営業時間
09:30 〜 18:30
定休日
毎週火曜日・水曜日・冬季休暇(12/27~1/4)
お電話 0037-6001-09445 無料
メール お問い合わせ
  • お問い合わせ区分

  • 内見希望日時

    第一希望

    第二希望

  • お名前

    全角
  • ご希望の連絡方法

    メールアドレス

    電話番号

    半角
    半角
  • その他ご希望等

ピタットハウスの個人情報の取り扱いについて

ピタットハウスでは信頼されるサイトを目指して、物件情報の精度向上に努めています。
掲載物件に誤りがある場合は こちら からご連絡ください。現状と異なる場合は、現状を優先させていただきます。
取引態様の欄に「媒介」と表示された物件は「仲介物件」です。ご成約の際には仲介手数料を申し受けます。

その他の取扱店舗

不動産会社毎に募集条件等が異なる場合があります。詳細は各店の物件詳細ページにてご確認ください。
交通
JR京浜東北根岸線 桜木町駅 徒歩2分みなとみらい線 みなとみらい駅 徒歩14分みなとみらい線 馬車道駅 徒歩7分
営業時間
09:30 〜 18:30
定休日
毎週水曜日・冬季休暇(12/27~1/4)
お電話 0037-6001-05692 無料

生活情報

横浜市の暮らしデータ

横浜市は、神奈川県の東端に位置し、東は東京湾、北は川崎市、西は町田市・大和市・藤沢市、南は鎌倉市・逗子市・横須賀市に接しています。横浜市の中心部から東京都心部までは、約30kmです。国を代表する国際貿易港である横浜港を基盤として、首都圏の中核都市としての役割を担っています。総面積は、約435km2で、これは東京23区の約7割にあたります。

基本データ

市区役所所在地 横浜市中区本町6-50-10
公式ホームページURL https://www.city.yokohama.lg.jp/
総人口 3,777,491人
人口増減率(2015年/2020年) 101.4%
横浜市の生活情報を詳しくみる

地域のおすすめ情報ブログ

一覧を見る

戸部駅近隣の駅から探す

横浜市西区の近隣エリアから探す

FAQ

  • A. ミライズ横濱SOUTHレジデンス(JQ4770912_2)の内見は、見学予約でお問い合わせいただくか、直接センター南店(0037-6001-09445)までご連絡ください。
  • A. 可能です。ミライズ横濱SOUTHレジデンス(JQ4770912_2)周辺の情報は、ピタットハウスの地域情報ブログ「街ピタ」住みたい街の暮らしデータをご活用ください。
  • A. ミライズ横濱SOUTHレジデンス(JQ4770912_2)の費用は、こちらよりお問い合わせいただくか、直接センター南店(0037-6001-09445)までご連絡ください。
  • A. はい、可能です。賃貸希望物件リクエストをご利用ください。ミライズ横濱SOUTHレジデンス(JQ4770912_2)に似た物件も合わせてご紹介させていただきます。