前へ
次へ
前へ
次へ
マンション

パークアクシス市川(204)

11.7 万円
共益費 10,000
11.7万円
-
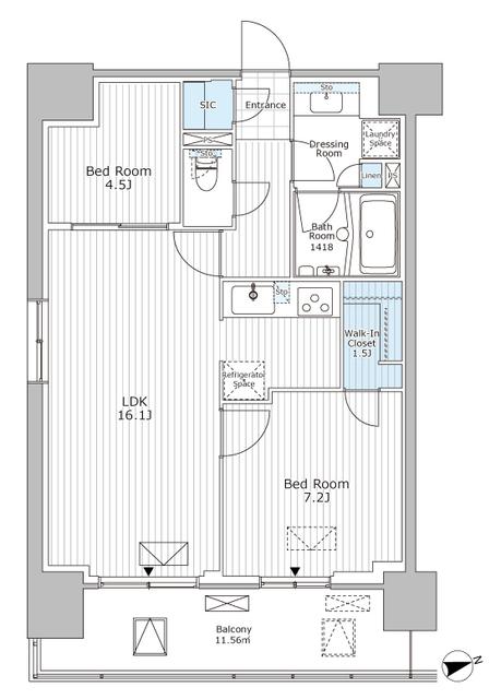
間取り
1DK
専有面積
30.40㎡
所在階
13階建ての2階
向き
  • アイコン: 住所 千葉県市川市市川1丁目
  • アイコン: 交通 JR総武本線 「市川駅」 徒歩5分 / 京成本線 「市川真間駅」 徒歩4分
簡単無料
アイコン: お電話 0037-6001-04954
IP電話ご利用のお客様 : 047-320-9300
ピタットハウス
市川南口店
point!
ペット飼育可!2024年築のハイグレードな築浅大型マンション
総武線快速が停まる「市川」駅徒歩5分! 貴重なペット飼育相談可☆(小型犬もしくは猫1匹・敷金1ヶ月分追加) 室内設備の他、サウンドルームや個室ワークブースなど共用部施設も充実!(一部有料)
お気軽にお問い合わせください!
簡単無料
お気軽にお問い合わせください!
物件情報・周辺環境・契約手続きについてなどお気軽にお問い合わせください。

設備・条件

建物・立地
  • エレベータ
  • 宅配ボックス
通信
  • BSアンテナ
セキュリティ
  • オートロック
部屋設備
  • フローリング
  • バルコニー
  • 室内洗濯機置場
冷暖房
  • エアコン
キッチン
  • システムキッチン
  • グリル
バス・トイレ
  • バス・トイレ別
  • 浴室乾燥機
  • 独立洗面台
特徴
  • ペット相談可
  • 事務所利用不可

物件概要

物件種別

部屋種別 マンション
建物名称 パークアクシス市川(204)
所在地 千葉県市川市市川1丁目 MAP
築年月 2024年7月 階数 13階建ての2階
建物構造 鉄筋コンクリート造 総戸数 -
間取り 1DK 専有面積 30.40㎡
向き バルコニー面積 4.00㎡
その他 管理形態:巡回管理 

費用

賃料 11.7万円 初期費用の確認をする 初期費用の確認をする 共益費 10,000円
礼金 - 敷金 11.7万円
保証金 - 償却金 -
その他一時金 室内清掃費:59400円 / 鍵交換費:33000円
その他月額費用 口座振替事務手数料:220円/月
住宅保険 要加入
保証会社 必須
保証会社補足 初回保証委託料(最低20,000円):月額賃料等の50%、 2年目以降:9,600円/年
更新料 - 更新事務手数料 -

契約条件

貸家契約区分 定期賃貸借 契約期間 2年
入居可能日 2026年4月29日予定 空室状況を確認をする 空室状況を確認をする 引渡時期相談内容 -
フリーレント -
クレジットカード決済 -

駐車場

駐車場 なし 駐車場について質問する 駐車場について質問する
駐車場契約形態 -
駐車場備考 -
バイク置き場 -
駐輪場 -

備考

その他 【めやす賃料】123542円/駐輪場1台込(移動追加不可)保証会社利用必須/ペット相談可(敷金1か月追加)/電気一括受電他社不可
関連リンク ピタットハウス市川南口店HPはこちら
取引態様 媒介 管理コード 4380481
情報登録(更新)日 2026年4月16日 次回更新予定日 2026年4月23日
備考 めやす賃料:

めやす賃料とは賃料、共益費・管理費、敷引金、更新料を含み、賃料等条件の改定がないものと仮定して4年間賃借した場合(定期借家の場合は契約期間)の1ヶ月当たりの金額です。

※敷引金は、敷金の償却、保証金の償却など、預かった金額から必ず引くものをいいます。
※めやす賃料は、消費者に適切な情報を提供するための表示であり事業者に一時金を推奨するものではありません。
※めやす賃料は、実際の総支払額と異なる場合があります。詳しくは不動産会社にご確認ください。  

スタッフコメント

スタッフコメント
  • 市川駅は総武線快速停車駅なので都心へのアクセスも良好!周辺にはスーパーや飲食店などの商業施設、病院や銀行なども揃っており、大変便利な生活環境です♪

周辺環境

  • ダイエー市川店:155m
    ダイエー市川店:155m
  • セブン-イレブン 市川真間銀座通り店:57m
    セブン-イレブン 市川真間銀座通り店:57m
コンビニ
セブン-イレブン 市川真間銀座通り店
57m
買物
ダイエー市川店
155m

取扱店舗

ピタットハウス市川南口店
ピタットハウス市川南口店
ハウジングジャパン株式会社
交通
JR総武線『市川駅』南口から徒歩1分! お車のお客様、市川駅付近からお電話下さい。道と目印をご案内致します。
営業時間
09:30 〜 19:30
定休日
毎週水曜日・冬季休業・12/29〜1/5
お電話 0037-6001-04954 無料
メール お問い合わせ
  • お問い合わせ区分

  • 内見希望日時

    第一希望

    第二希望

  • お名前

    全角
  • ご希望の連絡方法

    メールアドレス

    電話番号

    半角
    半角
  • その他ご希望等

ピタットハウスの個人情報の取り扱いについて

ピタットハウスでは信頼されるサイトを目指して、物件情報の精度向上に努めています。
掲載物件に誤りがある場合は こちら からご連絡ください。現状と異なる場合は、現状を優先させていただきます。
取引態様の欄に「媒介」と表示された物件は「仲介物件」です。ご成約の際には仲介手数料を申し受けます。

その他の取扱店舗

不動産会社毎に募集条件等が異なる場合があります。詳細は各店の物件詳細ページにてご確認ください。
交通
東京メトロ東西線 木場駅 4A出口 徒歩1分
営業時間
10:00 〜 17:00
定休日
毎週土日・祝祭日
  • 近隣駐車場あり
お電話 0037-6001-05750 無料
交通
総武線本八幡駅南口から徒歩2分(南口商店街沿いの1階です)
営業時間
10:00 〜 18:00
定休日
毎週水曜日・木曜日・GW休業・年末年始休業・GW休業:5/3(日)〜5/7(木)
お電話 0037-6001-08988 無料

生活情報

市川市の暮らしデータ

市川市は、千葉県の北西部、江戸川を隔てて東京都と相対し、都心から20km圏内に位置しています。北部は梨栽培などの農業が盛んで緑も多く、また学園も多い文教・住宅都市です。南部は、東京湾に臨み京葉工業地帯の一翼を担うとともに、新しい住宅都市が形成されています。

基本データ

市区役所所在地 市川市南八幡1-1-1
公式ホームページURL https://www.city.ichikawa.lg.jp/
総人口 496,676人
人口増減率(2015年/2020年) 103.1%
市川市の生活情報を詳しくみる

地域のおすすめ情報ブログ

一覧を見る

市川駅近隣の駅から探す

市川市の近隣エリアから探す

FAQ

  • A. パークアクシス市川(SV4380481_267)の内見は、見学予約でお問い合わせいただくか、直接市川南口店(0037-6001-04954)までご連絡ください。
  • A. 可能です。パークアクシス市川(SV4380481_267)周辺の情報は、ピタットハウスの地域情報ブログ「街ピタ」住みたい街の暮らしデータをご活用ください。
  • A. パークアクシス市川(SV4380481_267)の費用は、こちらよりお問い合わせいただくか、直接市川南口店(0037-6001-04954)までご連絡ください。
  • A. はい、可能です。賃貸希望物件リクエストをご利用ください。パークアクシス市川(SV4380481_267)に似た物件も合わせてご紹介させていただきます。