前へ
次へ
前へ
次へ
マンション

Opus residence Meguro Senzoku(206)

28.5 万円
共益費 15,000
28.5万円
-
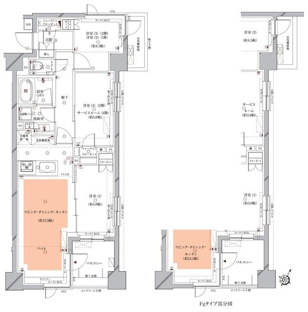
間取り
2SLDK
専有面積
57.03㎡
所在階
7階建ての2階
向き
南東
  • アイコン: 住所 東京都大田区北千束2丁目
  • アイコン: 交通 東急目黒線 「洗足駅」 徒歩5分 / 東急大井町線 「北千束駅」 徒歩5分 / 東急目黒線 「大岡山駅」 徒歩12分
簡単無料
アイコン: お電話 0037-6001-06881
IP電話ご利用のお客様 : 03-3381-7770
ピタットハウス
中野南口店
お気軽にお問い合わせください!
簡単無料
お気軽にお問い合わせください!
物件情報・周辺環境・契約手続きについてなどお気軽にお問い合わせください。

設備・条件

建物・立地
  • エレベータ
  • 宅配ボックス
  • 敷地内ごみ置き場
  • 常時ゴミ出し可能
  • バイク置場
通信
  • インターネット対応
  • CATV
  • BSアンテナ
  • CSアンテナ
セキュリティ
  • オートロック
  • モニタ付オートロック
部屋設備
  • フローリング
  • バルコニー
  • 室内洗濯機置場
  • ウォークインクローゼット
冷暖房
  • エアコン
  • 床暖房
キッチン
  • システムキッチン
  • 食器乾燥機
  • 食器洗浄乾燥機
  • グリル
バス・トイレ
  • バス・トイレ別
  • 浴室乾燥機
  • 追い焚き風呂
  • 独立洗面台
特徴
  • ペット相談可
  • 事務所利用不可

物件概要

物件種別

部屋種別 マンション
建物名称 Opus residence Meguro Senzoku(206)
所在地 東京都大田区北千束2丁目 MAP
築年月 2020年2月 階数 7階建ての2階
建物構造 鉄筋コンクリート造 総戸数 -
間取り 2SLDK 専有面積 57.03㎡
向き 南東 バルコニー面積 5.00㎡
その他 管理形態:巡回管理 

費用

賃料 28.5万円 初期費用の確認をする 初期費用の確認をする 共益費 15,000円
礼金 - 敷金 28.5万円
保証金 - 償却金 -
その他一時金 室内清掃費:87826円 / 鍵交換費:44000円
その他月額費用 -
住宅保険 要加入
保証会社 必須
保証会社補足 初回保証委託料(最低15,000円):月額賃料等の50%、 2年目以降:10,000円/年
更新料 - 更新事務手数料 -

契約条件

貸家契約区分 定期賃貸借 契約期間 2年
入居可能日 2026年5月13日予定 空室状況を確認をする 空室状況を確認をする 引渡時期相談内容 -
フリーレント -
クレジットカード決済 -

駐車場

駐車場 なし 駐車場について質問する 駐車場について質問する
駐車場契約形態 -
駐車場備考 -
バイク置き場 -
駐輪場 -

備考

その他
関連リンク
取引態様 媒介 管理コード 3662846
情報登録(更新)日 2026年4月14日 次回更新予定日 2026年4月25日
備考 めやす賃料:

めやす賃料とは賃料、共益費・管理費、敷引金、更新料を含み、賃料等条件の改定がないものと仮定して4年間賃借した場合(定期借家の場合は契約期間)の1ヶ月当たりの金額です。

※敷引金は、敷金の償却、保証金の償却など、預かった金額から必ず引くものをいいます。
※めやす賃料は、消費者に適切な情報を提供するための表示であり事業者に一時金を推奨するものではありません。
※めやす賃料は、実際の総支払額と異なる場合があります。詳しくは不動産会社にご確認ください。  

Opus residence Meguro Senzoku の他の空室物件

1
建物の空室物件一覧 次へ

取扱店舗

ピタットハウス中野南口店
ピタットハウス中野南口店
株式会社松崎ハウジング
交通
JR中央線・東京メトロ東西線中野駅南口より徒歩1分
営業時間
10:00 〜 18:00
定休日
毎週水曜日・GW休業:5/2〜5/6
お電話 0037-6001-06881 無料
メール お問い合わせ
  • お問い合わせ区分

  • 内見希望日時

    第一希望

    第二希望

  • お名前

    全角
  • ご希望の連絡方法

    メールアドレス

    電話番号

    半角
    半角
  • その他ご希望等

ピタットハウスの個人情報の取り扱いについて

ピタットハウスでは信頼されるサイトを目指して、物件情報の精度向上に努めています。
掲載物件に誤りがある場合は こちら からご連絡ください。現状と異なる場合は、現状を優先させていただきます。
取引態様の欄に「媒介」と表示された物件は「仲介物件」です。ご成約の際には仲介手数料を申し受けます。

生活情報

大田区の暮らしデータ

大田区は、1947年3月15日に当時の大森区と蒲田区が合併して誕生しました。東京都の東南部に位置し、海と川に臨み、昔から人が住みやすく、交通の要路として栄えてきました。江戸期は農漁村で、海岸の大森・糀谷・羽田地区では1963年頃まで海苔の養殖が盛んに行われました。大正期以降、中小工場が進出し、低地部は住宅や工場が密集する商業・工業地域を形成し、京浜工業地帯の一部となっています。また、台地部は、田園調布、雪谷、久が原など比較的緑の多い住宅地です。臨海部は埋め立て地で、羽田空港をはじめトラックターミナルや市場など物流施設のほか、工場団地、野鳥公園など都市機能施設が整備されています。

基本データ

市区役所所在地 大田区蒲田5-13-14
公式ホームページURL https://www.city.ota.tokyo.jp/
総人口 748,081人
人口増減率(2015年/2020年) 104.3%
大田区の生活情報を詳しくみる

地域のおすすめ情報ブログ

一覧を見る