前へ
次へ
前へ
次へ
マンション
即入居可

エクレール貝塚(505)

NEW
8 万円
共益費 6,000
-
8万円
間取り
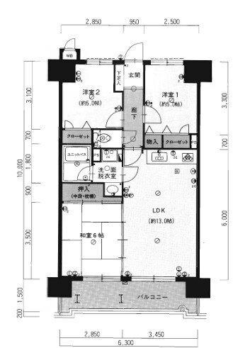
3LDK
専有面積
63.40㎡
所在階
11階建ての5階
向き
-
  • アイコン: 住所 福岡県福岡市東区箱崎ふ頭3丁目
  • アイコン: 交通 西鉄貝塚線 「貝塚駅」 徒歩12分 / 福岡市箱崎線 「貝塚駅」 徒歩12分 / 西鉄貝塚線 「名島駅」 徒歩16分
簡単無料
アイコン: お電話 0037-6001-06150
IP電話ご利用のお客様 : 092-409-1982
ピタットハウス
吉塚店
point!
都市ガス オートロック 室内洗濯機置場 CATV対応
初期費用クレジットカード支払い可(分割可能)現地案内ご希望されるお客様はお気軽にお問い合わせ下さい♪ テレビ電話などを使って物件の内覧・契約まで可能です! WEB内覧後、現地でのご案内可能です☆彡
お気軽にお問い合わせください!
簡単無料
お気軽にお問い合わせください!
物件情報・周辺環境・契約手続きについてなどお気軽にお問い合わせください。

設備・条件

建物・立地
  • 分譲マンションタイプ
  • エレベータ
  • 駐輪場
  • 駅まで平坦
  • 平坦地
  • 閑静な住宅街
  • 都市ガス
  • 敷地内ごみ置き場
通信
  • インターネット対応
  • CATV
  • 光回線
  • 高速ネット対応
  • ネット専用回線
  • LAN
  • ISDN対応
セキュリティ
  • オートロック
  • TVモニター付きインターホン
  • モニタ付オートロック
部屋設備
  • フローリング
  • 室内洗濯機置場
  • 下駄箱
  • クローゼット
  • 収納スペース
  • 陽当り良好
  • 眺望良好
  • 通風良好
冷暖房
  • エアコン
キッチン
  • システムキッチン
バス・トイレ
  • バス・トイレ別
  • 独立洗面台
  • シャワー
  • 洗面化粧台
  • 洗面所
  • トイレ
  • 洗面台
  • 脱衣所
特徴
  • オンライン内見可
  • オンライン相談可
  • IT重説対応物件
  • 敷金不要
  • 初期費用カード決済可

物件概要

物件種別

部屋種別 マンション
建物名称 エクレール貝塚(505)
所在地 福岡県福岡市東区箱崎ふ頭3丁目 MAP
築年月 1995年3月 階数 11階建ての5階
建物構造 鉄筋コンクリート造 総戸数 -
間取り 3LDK 専有面積 63.40㎡
向き - バルコニー面積 -
その他 -

費用

賃料 8万円 初期費用の確認をする 初期費用の確認をする 共益費 6,000円
礼金 8万円 敷金 -
保証金 - 償却金 -
その他一時金 -
その他月額費用 サポート:1100円/月
住宅保険 -
保証会社 必須
保証会社補足 必須
更新料 - 更新事務手数料 -

契約条件

貸家契約区分 普通賃貸借 契約期間 2年
入居可能日 即可 空室状況を確認をする 空室状況を確認をする 引渡時期相談内容 -
フリーレント -
クレジットカード決済 初期費用クレジット決済可

駐車場

駐車場 なし 駐車場について質問する 駐車場について質問する
駐車場契約形態 -
駐車場備考 -
バイク置き場 なし
駐輪場 有り(無料)

備考

その他 福岡市内とその近郊の賃貸マンション・アパート・戸建・ペット可・保証人不要の物件を取引させて頂いております♪ ☆博多駅・空港までの送迎可♪ ☆現地での待合せ♪☆初期費用カード決済、分割可♪☆売買や管理のご相談も経験豊富なスタッフが一生懸命お手伝いいたします!お気軽にお問合せ下さい!
関連リンク
取引態様 媒介 管理コード 4717124
情報登録(更新)日 2025年11月22日 次回更新予定日 2025年11月29日
備考 めやす賃料:

めやす賃料とは賃料、共益費・管理費、敷引金、更新料を含み、賃料等条件の改定がないものと仮定して4年間賃借した場合(定期借家の場合は契約期間)の1ヶ月当たりの金額です。

※敷引金は、敷金の償却、保証金の償却など、預かった金額から必ず引くものをいいます。
※めやす賃料は、消費者に適切な情報を提供するための表示であり事業者に一時金を推奨するものではありません。
※めやす賃料は、実際の総支払額と異なる場合があります。詳しくは不動産会社にご確認ください。  

周辺環境

  • 福岡市東区役所:2595m
    福岡市東区役所:2595m
  • マルキョウ千早店:1666m
    マルキョウ千早店:1666m
  • セブンイレブン福岡箱崎7丁目店:466m
    セブンイレブン福岡箱崎7丁目店:466m
  • 博多阪急:6377m
    博多阪急:6377m
  • ドラッグイレブン千早店:1468m
    ドラッグイレブン千早店:1468m
  • まいどおおきに食堂福岡貝塚食堂:521m
    まいどおおきに食堂福岡貝塚食堂:521m
  • ゲオ福岡吉塚駅前店:4270m
    ゲオ福岡吉塚駅前店:4270m
  • 楽市街道箱崎店:1776m
    楽市街道箱崎店:1776m
コンビニ
セブンイレブン福岡箱崎7丁目店
466m
買物
マルキョウ千早店
1666m
ショッピング施設
博多阪急
6377m
ドラッグストア
ドラッグイレブン千早店
1468m
ホームセンター
ホームセンターグッデイ東福岡店
1944m
病院
医療法人貝塚病院
574m
役所
福岡市東区役所
2595m
郵便局
福岡箱崎ふ頭郵便局
648m
図書館
福岡市東図書館
2551m
交番
東警察署
1112m
公園
箱崎ふ頭2号緑地
375m
銀行
JA福岡市東部松崎支店
2322m
幼稚園
はこざき保育園
861m
小学校
福岡市立東箱崎小学校
1402m
中学校
福岡市立箱崎中学校
987m
高校
私立博多高校
3143m

取扱店舗

ピタットハウス吉塚店
ピタットハウス吉塚店
株式会社ワイズパートナー
交通
「馬出九大病院前」徒歩2分・「吉塚」駅徒歩9分
営業時間
09:00 〜 18:00
定休日
毎週水曜日
お電話 0037-6001-06150 無料
メール お問い合わせ
  • お問い合わせ区分

  • 内見希望日時

    第一希望

    第二希望

  • お名前

    全角
  • ご希望の連絡方法

    メールアドレス

    電話番号

    半角
    半角
  • その他ご希望等

ピタットハウスの個人情報の取り扱いについて

ピタットハウスでは信頼されるサイトを目指して、物件情報の精度向上に努めています。
掲載物件に誤りがある場合は こちら からご連絡ください。現状と異なる場合は、現状を優先させていただきます。
取引態様の欄に「媒介」と表示された物件は「仲介物件」です。ご成約の際には仲介手数料を申し受けます。

生活情報

福岡市の暮らしデータ

福岡市は、北は玄界灘に臨み、海の中道と糸島半島で仕切られた博多湾を擁し、南は脊振山地、東は三郡山地に囲まれた福岡平野に位置しています。大都市の魅力と美しい自然とを併せ持ち、長い歴史の中で培われた伝統・文化に恵まれた、独自の個性と魅力を有します。わが国の主要都市(大阪、東京、札幌)までの距離と、東アジアの主要都市(釜山、ソウル、上海、北京、台北など)までの距離とがほぼ同じ範囲にあるため、国際線の定期航空路線も多く、アジア諸国との交流には最適の位置といえます。

基本データ

市区役所所在地 福岡市中央区天神1-8-1
公式ホームページURL https://www.city.fukuoka.lg.jp/
総人口 1,612,392人
人口増減率(2015年/2020年) 104.8%
福岡市の生活情報を詳しくみる

地域のおすすめ情報ブログ

一覧を見る