勝どき駅徒歩2分の地上58階建てマンションです
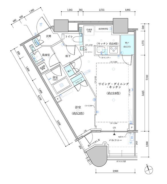
パークタワー勝どき サウス棟は2023年築のきれいなマンションです! 1LDK(43.95㎡)ゆとりのある単身者様向けの間取りです。

お気軽にお問い合わせください!
物件情報・周辺環境・契約手続きについてなどお気軽にお問い合わせください。
設備・条件
|
|
---|---|
|
|
|
|
|
|
|
|
|
|
|
|
物件概要
物件種別
部屋種別 | マンション | ||
---|---|---|---|
建物名称 | パークタワー勝どき サウス棟(1723) | ||
所在地 | 東京都中央区勝どき4丁目 MAP | ||
築年月 | 2023年8月 | 階数 | 58階建ての17階 |
建物構造 | 鉄筋コンクリート造 | 総戸数 | - |
間取り | 1LDK | 専有面積 | 43.95㎡ |
向き | 北東 | バルコニー面積 | - |
その他 | 管理形態:常務管理 |
費用
賃料 |
30.5万円
初期費用の確認をする
|
共益費 | - |
---|---|---|---|
礼金 | 61万円 | 敷金 | 30.5万円 |
保証金 | - | 償却金 | - |
その他一時金 | 室内清掃費:82186円 / 鍵交換費:33000円 | ||
その他月額費用 | 口座振替事務手数料:110円/月 | ||
住宅保険 | 要加入 | ||
保証会社 | 必須 | ||
保証会社補足 | 初回保証委託料(最低20,000円):月額賃料等の50%、 2年目以降:9,600円/年 | ||
更新料 | - | 更新事務手数料 | - |
契約条件
貸家契約区分 | 定期賃貸借 | 契約期間 | 2年 |
---|---|---|---|
入居可能日 |
2025年12月20日予定
空室状況を確認をする
|
引渡時期相談内容 | - |
フリーレント | - | ||
クレジットカード決済 | - |
駐車場
駐車場 |
なし
駐車場について質問する
|
||
---|---|---|---|
駐車場契約形態 | - | ||
駐車場備考 | - | ||
バイク置き場 | - | ||
駐輪場 | - |
備考
その他 | |||
---|---|---|---|
関連リンク |
中央区の賃貸情報一覧 タワーマンションの賃貸物件一覧はこちら フィットネスジム付きマンションの物件一覧はこちら 先行申込についてはこちらをご覧ください |
||
取引態様 | 媒介 | 管理コード | 4362646 |
情報登録(更新)日 | 2025年10月10日 | 次回更新予定日 | 2025年10月17日 |
スタッフコメント

- パークタワー勝どき サウス棟のことならピタットハウス新宿西口店までお問合せください。都心部の物件はどのエリアでも取り扱い可能です。ご内覧は物件現地でお待ち合わせもOK。ほかの物件もご検討いただく場合はまとめてご案内も可能です。ご希望の条件を教えていただければ、市場に出ている情報を事前にメールでご紹介いたします。本物件の空き予定の(退去前で内見できない)お部屋については、「先行申込」が可能です。先行申込は1部屋のみ受付いたします。※「先行申込」は内見後に契約をするかしないかを判断する形態の申込のことをいいます。ご希望の際は「その他ご希望」欄に先行申込希望とご入力ください。詳細は関連リンクをご覧ください
周辺環境
- コンビニ
-
ローソン勝どき四丁目店113m
- 買物
-
ライフ勝どきミッド店267m
- ショッピング施設
-
銀座コア2127m
- ドラッグストア
-
どらっぐぱぱす勝どきビュータワー368m
- ホームセンター
-
ニトリデコホーム晴海トリトンスク866m
- 病院
-
医療法人社団クリタ会聖カタリナ病898m
- 役所
-
中央区晴海特別出張所1013m
- 郵便局
-
中央勝どき三郵便局400m
- 図書館
-
中央区立晴海図書館1011m
- 交番
-
月島警察署905m
- 公園
-
中央区立月島第二児童公園388m
- 銀行
-
三菱UFJ銀行月島支店403m
- 幼稚園
-
アスク勝どき保育園39m
- 小学校
-
中央区立月島第二小学校500m
- 中学校
-
中央区立晴海西中学校1122m
- 高校
-
東京都立晴海総合高校1228m
取扱店舗

ピタットハウス新宿西口店
株式会社エスケイ・コミュニティー
- 交通
- JR山手線「新宿」駅徒歩6分都営大江戸線「新宿西口」駅徒歩2分
- 営業時間
- 09:30 〜 18:30
- 定休日
- 毎週水曜日・2月・3月は無休、夏季休暇無し・年末年始
ピタットハウスでは信頼されるサイトを目指して、物件情報の精度向上に努めています。
掲載物件に誤りがある場合は
こちら からご連絡ください。現状と異なる場合は、現状を優先させていただきます。
取引態様の欄に「媒介」と表示された物件は「仲介物件」です。ご成約の際には仲介手数料を申し受けます。
その他の取扱店舗
不動産会社毎に募集条件等が異なる場合があります。詳細は各店の物件詳細ページにてご確認ください。- 交通
- JR総武線 亀戸駅
- 営業時間
- 10:00 〜 18:00
- 定休日
- 毎週水曜日、木曜日・GW休業・夏季休業・年末年始休業・冬季休業:12/28(日)〜1/3(土)
生活情報
中央区の暮らしデータ
中央区は、江戸以来、400年以上にわたって日本の文化・商業・情報の中心として発展してきた由緒あるまちです。1947年に日本橋区と京橋区が統合され、現在の中央区が誕生しました。面積はわずか約10km2ですが、美しい水辺の景観や全国的に有名な「銀座」「日本橋」「築地」「月島」など魅力的なスポットを擁する、「遊」「職」「住」の三拍子そろった活気と魅力にあふれる都心のまちです。
基本データ
市区役所所在地 | 中央区築地1-1-1 |
---|---|
公式ホームページURL | https://www.city.chuo.lg.jp/ |
総人口 | 169,179人 |
人口増減率(2015年/2020年) | 119.8% |
地域のおすすめ情報ブログ
一覧を見る
勝どき駅近隣の駅から探す
中央区の近隣エリアから探す
FAQ
-
A. パークタワー勝どき サウス棟(ADJ4362646_567)の内見は、見学予約でお問い合わせいただくか、直接新宿西口店(0037-6001-05237)までご連絡ください。
-
A. 可能です。パークタワー勝どき サウス棟(ADJ4362646_567)周辺の情報は、ピタットハウスの地域情報ブログ「街ピタ」や住みたい街の暮らしデータをご活用ください。
-
A. パークタワー勝どき サウス棟(ADJ4362646_567)の費用は、こちらよりお問い合わせいただくか、直接新宿西口店(0037-6001-05237)までご連絡ください。
-
A. はい、可能です。賃貸希望物件リクエストをご利用ください。パークタワー勝どき サウス棟(ADJ4362646_567)に似た物件も合わせてご紹介させていただきます。