
お気軽にお問い合わせください!
物件情報・周辺環境・契約手続きについてなどお気軽にお問い合わせください。
設備・条件
|
|
---|---|
|
|
|
|
|
|
|
|
|
|
|
|
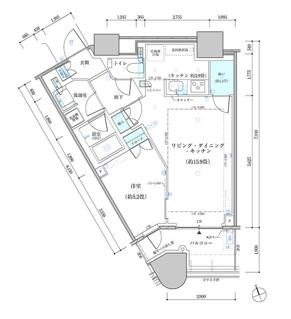
物件概要
物件種別
部屋種別 | マンション | ||
---|---|---|---|
建物名称 | パークタワー勝どき サウス棟(1723) | ||
所在地 | 東京都中央区勝どき4丁目 MAP | ||
築年月 | 2023年8月 | 階数 | 58階建ての17階 |
建物構造 | 鉄筋コンクリート造 | 総戸数 | - |
間取り | 1LDK | 専有面積 | 43.95㎡ |
向き | 北東 | バルコニー面積 | - |
その他 | 管理形態:常務管理 |
費用
賃料 |
30.5万円
初期費用の確認をする
|
共益費 | - |
---|---|---|---|
礼金 | 61万円 | 敷金 | 30.5万円 |
保証金 | - | 償却金 | - |
その他一時金 | 室内清掃費:82186円 / 鍵交換費:33000円 | ||
その他月額費用 | 口座振替事務手数料:110円/月 | ||
住宅保険 | 要加入 | ||
保証会社 | 必須 | ||
保証会社補足 | 初回保証委託料(最低20,000円):月額賃料等の50%、 2年目以降:9,600円/年 | ||
更新料 | - | 更新事務手数料 | - |
契約条件
貸家契約区分 | 定期賃貸借 | 契約期間 | 2年 |
---|---|---|---|
入居可能日 |
2025年12月20日予定
空室状況を確認をする
|
引渡時期相談内容 | - |
フリーレント | - | ||
クレジットカード決済 | - |
駐車場
駐車場 |
なし
駐車場について質問する
|
||
---|---|---|---|
駐車場契約形態 | - | ||
駐車場備考 | - | ||
バイク置き場 | - | ||
駐輪場 | - |
備考
その他 | |||
---|---|---|---|
関連リンク | |||
取引態様 | 媒介 | 管理コード | 4362646 |
情報登録(更新)日 | 2025年10月10日 | 次回更新予定日 | 2025年10月17日 |
取扱店舗

ピタットハウス亀戸店
スターツピタットハウス株式会社
- 交通
- JR総武線 亀戸駅
- 営業時間
- 10:00 〜 18:00
- 定休日
- 毎週水曜日、木曜日・GW休業・夏季休業・年末年始休業・冬季休業:12/28(日)〜1/3(土)
ピタットハウスでは信頼されるサイトを目指して、物件情報の精度向上に努めています。
掲載物件に誤りがある場合は
こちら からご連絡ください。現状と異なる場合は、現状を優先させていただきます。
取引態様の欄に「媒介」と表示された物件は「仲介物件」です。ご成約の際には仲介手数料を申し受けます。
その他の取扱店舗
不動産会社毎に募集条件等が異なる場合があります。詳細は各店の物件詳細ページにてご確認ください。- 交通
- JR山手線「新宿」駅徒歩6分都営大江戸線「新宿西口」駅徒歩2分
- 営業時間
- 09:30 〜 18:30
- 定休日
- 毎週水曜日・2月・3月は無休、夏季休暇無し・年末年始
生活情報
中央区の暮らしデータ
中央区は、江戸以来、400年以上にわたって日本の文化・商業・情報の中心として発展してきた由緒あるまちです。1947年に日本橋区と京橋区が統合され、現在の中央区が誕生しました。面積はわずか約10km2ですが、美しい水辺の景観や全国的に有名な「銀座」「日本橋」「築地」「月島」など魅力的なスポットを擁する、「遊」「職」「住」の三拍子そろった活気と魅力にあふれる都心のまちです。
基本データ
市区役所所在地 | 中央区築地1-1-1 |
---|---|
公式ホームページURL | https://www.city.chuo.lg.jp/ |
総人口 | 169,179人 |
人口増減率(2015年/2020年) | 119.8% |
地域のおすすめ情報ブログ
一覧を見る
勝どき駅近隣の駅から探す
中央区の近隣エリアから探す
FAQ
-
A. パークタワー勝どき サウス棟(ST4362646_574)の内見は、見学予約でお問い合わせいただくか、直接亀戸店(0037-6001-02650)までご連絡ください。
-
A. 可能です。パークタワー勝どき サウス棟(ST4362646_574)周辺の情報は、ピタットハウスの地域情報ブログ「街ピタ」や住みたい街の暮らしデータをご活用ください。
-
A. パークタワー勝どき サウス棟(ST4362646_574)の費用は、こちらよりお問い合わせいただくか、直接亀戸店(0037-6001-02650)までご連絡ください。
-
A. はい、可能です。賃貸希望物件リクエストをご利用ください。パークタワー勝どき サウス棟(ST4362646_574)に似た物件も合わせてご紹介させていただきます。