戸越駅徒歩10分の地上4階建てマンションです
					
					
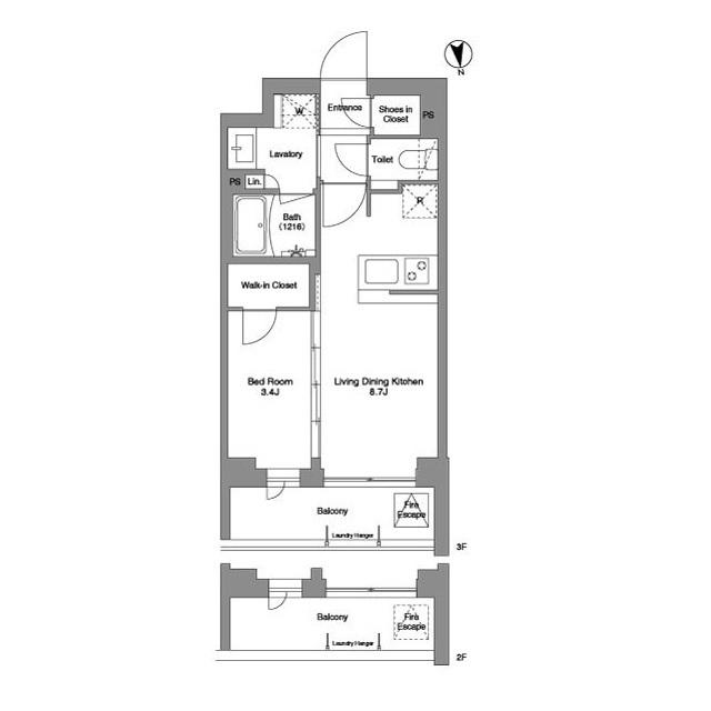
						コンフォリア戸越公園は2025年築のきれいなマンションです! 1LDK(40.15㎡)ゆとりのある単身者様向けの間取りです。
					
				
			お気軽にお問い合わせください!
						物件情報・周辺環境・契約手続きについてなどお気軽にお問い合わせください。
					設備・条件
| 
							 				 | 
							 			
							 				
  | 
							 		
|---|---|
| 
										 | 
									
										
  | 
								
| 
										 | 
									
										
  | 
								
| 
										 | 
									
										
  | 
								
| 
										 | 
									
										
  | 
								
| 
										 | 
									
										
  | 
								
| 
										 | 
									
										
  | 
								
物件概要
物件種別
| 部屋種別 | マンション | ||
|---|---|---|---|
| 建物名称 | コンフォリア戸越公園(109) | ||
| 所在地 | 東京都品川区豊町1丁目 | ||
| 築年月 | 2025年7月 | 階数 | 地下1階・地上4階建ての1階 | 
| 建物構造 | 鉄筋コンクリート造 | 総戸数 | 44戸 | 
| 間取り | 1LDK(LDK9.1帖 洋5.5帖) | 専有面積 | 40.15㎡ | 
| 向き | 北 | バルコニー面積 | - | 
| その他 | - | ||
費用
| 賃料 | 
									
										15.3万円
									
									
										初期費用の確認をする
										 | 
								共益費 | 10,000円 | 
|---|---|---|---|
| 礼金 | - | 敷金 | 15.3万円 | 
| 保証金 | - | 償却金 | - | 
| その他一時金 | 清掃費:39600円 / エアコン清掃費:22000円 | ||
| その他月額費用 | - | ||
| 住宅保険 | 要加入(2年16550円) | ||
| 保証会社 | 必須 | ||
| 保証会社補足 | エポスカード(RP) 保証料:賃料等の50%(最低2万)、月額保証料:賃料等の1%(更新料無) | ||
| 更新料 | 更新後賃料:1ヶ月 | 更新事務手数料 | - | 
契約条件
| 貸家契約区分 | 普通賃貸借 | 契約期間 | 2年 | 
|---|---|---|---|
| 入居可能日 | 
									相談
									
										空室状況を確認をする
										 | 
								
									引渡時期相談内容 | - | 
| フリーレント | あり 1ヶ月 ※賃料のみ | ||
| クレジットカード決済 | - | ||
駐車場
| 駐車場 | 
										なし
										駐車場について質問する
											 | 
								||
|---|---|---|---|
| 駐車場契約形態 | - | ||
| 駐車場備考 | - | ||
| バイク置き場 | - | ||
| 駐輪場 | - | ||
備考
| その他 | ■礼金0ヶ月※1年以内解約時賃料1か月分違約金有■ペット相談可能(敷金1ヶ月積増※小型犬1匹又は猫1匹迄)■指定保証会社利用必須※一部法人契約除く・敷金1ヶ月積増)■退居時エアコン清掃費・室内清掃費がかります■留学生本人契約可能(GTN利用必須))■禁止事項(楽器演奏・SOHO利用)■フリーレント1ヶ月※賃料のみ※2年未満解約時賃料1ヶ月分違約金有 | ||
|---|---|---|---|
| 関連リンク | 
									
										
											
												品川区の賃貸情報一覧 新築マンション・建築予定の賃貸物件一覧はこちら フィットネスジム付きマンションの物件一覧はこちら 先行申込についてはこちらをご覧ください  | 
							||
| 取引態様 | 媒介 | 管理コード | 4676033 | 
| 情報登録(更新)日 | 2025年11月4日 | 次回更新予定日 | 2025年11月10日 | 
スタッフコメント
					- コンフォリア戸越公園のことならピタットハウス新宿西口店までお問合せください。都心部の物件はどのエリアでも取り扱い可能です。ご内覧は物件現地でお待ち合わせもOK。ほかの物件もご検討いただく場合はまとめてご案内も可能です。ご希望の条件を教えていただければ、市場に出ている情報を事前にメールでご紹介いたします。本物件の空き予定の(退去前で内見できない)お部屋については、「先行申込」が可能です。先行申込は1部屋のみ受付いたします。※「先行申込」は内見後に契約をするかしないかを判断する形態の申込のことをいいます。ご希望の際は「その他ご希望」欄に先行申込希望とご入力ください。詳細は関連リンクをご覧ください
 
周辺環境
- コンビニ
 - 
				ローソン西品川三ツ木通店211m
 - 買物
 - 
				まいばすけっと戸越4丁目店509m
 - ショッピング施設
 - 
				阪急百貨店大井食品館1639m
 - ドラッグストア
 - 
				サンドラッグ戸越銀座店420m
 - ホームセンター
 - 
				三栄の家具953m
 - 病院
 - 
				一般社団法人巨樹の会五反田リハビ1341m
 - 役所
 - 
				品川区役所864m
 - 郵便局
 - 
				品川戸越郵便局651m
 - 図書館
 - 
				品川区立ゆたか図書館245m
 - 交番
 - 
				大崎警察署1293m
 - 公園
 - 
				文庫の森335m
 - 銀行
 - 
				さわやか信用金庫戸越銀座支店518m
 - 幼稚園
 - 
				ゆたか保育園238m
 - 小学校
 - 
				品川区立戸越小学校487m
 - 中学校
 - 
				品川区立大崎中学校465m
 - 高校
 - 
				私立品川学藝高校497m
 
取扱店舗
				
								ピタットハウス新宿西口店
							
							株式会社エスケイ・コミュニティー
						
					
					- 交通
 - JR山手線「新宿」駅徒歩6分都営大江戸線「新宿西口」駅徒歩2分
 
- 営業時間
 - 09:30 〜 18:30
 - 定休日
 - 毎週水曜日・2月・3月は無休、夏季休暇無し・年末年始
 
                ピタットハウスでは信頼されるサイトを目指して、物件情報の精度向上に努めています。
                掲載物件に誤りがある場合は 
                こちら からご連絡ください。現状と異なる場合は、現状を優先させていただきます。
                取引態様の欄に「媒介」と表示された物件は「仲介物件」です。ご成約の際には仲介手数料を申し受けます。
            
その他の取扱店舗
不動産会社毎に募集条件等が異なる場合があります。詳細は各店の物件詳細ページにてご確認ください。- 交通
 - JR中央線 『武蔵境駅』 南口より 徒歩30秒 駐車場有
 
- 営業時間
 - 10:00 〜 19:00
 - 定休日
 - 毎週水曜日・夏季休業・8/12から8/20まで
 
生活情報
品川区の暮らしデータ
品川区は、東京都の南東部に位置し、東京湾に面する臨海部と山の手に連なる台地から形成され、面積は22.85km2で23区では平均的な広さです。人口は約40万人余りで、1964年をピークに減少していましたが、1998年以降は増加に転じています。
基本データ
| 市区役所所在地 | 品川区広町2-1-36 | 
|---|---|
| 公式ホームページURL | https://www.city.shinagawa.tokyo.jp/ | 
| 総人口 | 422,488人 | 
| 人口増減率(2015年/2020年) | 109.2% | 
								
								
									地域のおすすめ情報ブログ
									
								
							
							
								一覧を見る
							
						- 
										
											
											心あたたまるパン屋さん本日は、東急池上線・荏原中延駅のすぐ目の前にあるパン屋さんをご紹介します。惣菜パンから菓子パンまで、バラエティ豊かにそろった、ど...続きを読む - 
										
											
											日本考古学発祥の地こんにちは!ピタットハウス蒲田店です。今回は、歴史好きの方にもファミリーにもおすすめのスポット「大森貝塚庭園」をご紹介します。大...続きを読む - 
										
											
											坂本龍馬の息吹こんにちは!ピタットハウス蒲田店です。本日は立会川にある坂本龍馬像についてお話します♪薩長同盟や大政奉還の実現に尽力し、幕末の志...続きを読む - 
										
											
											変わらぬ味のおでん屋さんこんにちは、五反田店の武田です。今回紹介するのは、戸越駅から徒歩6分の場所にお店を構える、「後藤かまぼこ店」です。創業は65年!...続きを読む 
戸越駅近隣の駅から探す
品川区の近隣エリアから探す
FAQ
- 
								
								A. コンフォリア戸越公園(ADJ4676033_68)の内見は、見学予約でお問い合わせいただくか、直接新宿西口店(0037-6001-05237)までご連絡ください。
 - 
								
								A. 可能です。コンフォリア戸越公園(ADJ4676033_68)周辺の情報は、ピタットハウスの地域情報ブログ「街ピタ」や住みたい街の暮らしデータをご活用ください。
 - 
								
								A. コンフォリア戸越公園(ADJ4676033_68)の費用は、こちらよりお問い合わせいただくか、直接新宿西口店(0037-6001-05237)までご連絡ください。
 - 
								
								A. はい、可能です。賃貸希望物件リクエストをご利用ください。コンフォリア戸越公園(ADJ4676033_68)に似た物件も合わせてご紹介させていただきます。