当物件はオンラインまたはお近くの店舗でご相談お申込を承ります
室内見学承ります・お客様のご都合に合わせてオンラインまたはお近くの店舗でご提案可・初期費用分割払い可・クレジットカード利用可・引越業者割引・初期費用のお見積や入居日のご相談もお気軽にお問合せください

お気軽にお問い合わせください!
物件情報・周辺環境・契約手続きについてなどお気軽にお問い合わせください。
設備・条件
|
|
---|---|
|
|
|
|
|
|
|
|
|
|
|
|
|
|
物件概要
物件種別
部屋種別 | マンション | ||
---|---|---|---|
建物名称 | 港区赤坂マンション | ||
所在地 | 東京都港区赤坂9丁目 MAP | ||
築年月 | 2017年3月 | 階数 | 地下1階・地上14階建ての4階 |
建物構造 | 鉄筋コンクリート造 | 総戸数 | - |
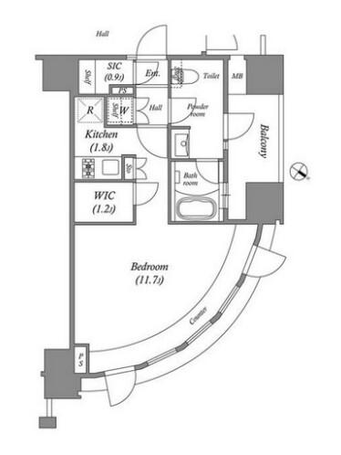
間取り | 1K(洋7.8帖) | 専有面積 | 27.38㎡ |
向き | 南西 | バルコニー面積 | - |
その他 | - |
費用
賃料 |
19.1万円
初期費用の確認をする
|
共益費 | 15,000円 |
---|---|---|---|
礼金 | - | 敷金 | ペット積み増し(1ヶ月) |
保証金 | - | 償却金 | - |
その他一時金 | 室内清掃費用(税込):66000円 | ||
その他月額費用 | - | ||
住宅保険 | 要加入(2年18000円) | ||
保証会社 | 必須 | ||
保証会社補足 | 初回:月額総家賃の40%〜 | ||
更新料 | - | 更新事務手数料 | - |
契約条件
貸家契約区分 | 普通賃貸借 | 契約期間 | 2年 |
---|---|---|---|
入居可能日 |
2025年12月7日予定
空室状況を確認をする
|
引渡時期相談内容 | - |
フリーレント | - | ||
クレジットカード決済 | - |
駐車場
駐車場 |
なし
駐車場について質問する
|
||
---|---|---|---|
駐車場契約形態 | - | ||
駐車場備考 | - | ||
バイク置き場 | - | ||
駐輪場 | - |
備考
その他 | 当物件は「住まいのリライフ」で取り扱っております。リライフは首都圏25店舗のネットワークで豊富な物件情報をお客様へご提供します。当物件に類似した未公開物件なども合わせてご提案可能です。お気軽にお問合せください。 違約金有:1年未満解約時、賃料1ヶ月 | ||
---|---|---|---|
関連リンク | |||
取引態様 | 媒介 | 管理コード | 4665331 |
情報登録(更新)日 | 2025年10月7日 | 次回更新予定日 | 2025年10月14日 |
周辺環境
-
成城石井 赤坂アークヒルズ店:835m
-
マルエツ プチ 赤坂店:849m
-
ナチュラルローソン 赤坂通店:22m
-
ローソン 港赤坂九丁目店:100m
-
スギ薬局赤坂店:326m
-
ポニークリーニング赤坂小前店:50m
-
赤坂七郵便局:218m
- コンビニ
-
ナチュラルローソン 赤坂通店22m
- 買物
-
成城石井 赤坂アークヒルズ店835m
- ショッピング施設
-
東京ミッドタウン445m
- ドラッグストア
-
スギ薬局赤坂店326m
- 病院
-
山王病院610m
- 郵便局
-
赤坂七郵便局218m
- 公園
-
檜町公園239m
取扱店舗

ピタットハウス四谷店
株式会社リライフ
- 交通
- 四ツ谷駅 徒歩3分JR中央総武線・東京メトロ丸ノ内線・東京メトロ南北線四谷三丁目駅 徒歩9分東京メトロ丸ノ内線
- 営業時間
- 10:00 〜 18:30
- 定休日
- 毎週水曜日
ピタットハウスでは信頼されるサイトを目指して、物件情報の精度向上に努めています。
掲載物件に誤りがある場合は
こちら からご連絡ください。現状と異なる場合は、現状を優先させていただきます。
取引態様の欄に「媒介」と表示された物件は「仲介物件」です。ご成約の際には仲介手数料を申し受けます。
生活情報
港区の暮らしデータ
港区は、1947年3月15日に旧芝、麻布、赤坂の3区が統合され誕生しました。東京都のほぼ南東部に位置し、北西一帯の高台地と、南東の東京湾に面した低地および芝浦海浜の埋め立て地からなっています。高台地は秩父山麓に端を発している武蔵野台地の末端で、これらの台地は小さな突起状の丘陵となっているため、東京23区の中で最も起伏に富んだ地形をもっています。
基本データ
市区役所所在地 | 港区芝公園1-5-25 |
---|---|
公式ホームページURL | https://www.city.minato.tokyo.jp/ |
総人口 | 260,486人 |
人口増減率(2015年/2020年) | 107.1% |
地域のおすすめ情報ブログ
一覧を見る
-
遅めのランチにおススメです♪こんにちは!ピタットハウス浜松町店の柿澤です♪先日ランチで行ったお店の紹介です(*^^*)その日は忙しい日でランチに出られたのが...続きを読む
-
newオープンしたとんかつ屋さん☆こんにちは!ピタットハウス浜松町店の柿澤です!本日は浜松町にnewオープンしたとんかつ屋さんのご紹介です!【博多とんかつわか葉浜...続きを読む
-
今日のお昼はラーメ〇でしたこんにちは、ピタットハウス浜松町店の吉富です。バレバレなタイトルですが今日のお昼ご飯はラーメンでした。壱角家さんのラーメンを食べ...続きを読む
-
定食メニューが豊富【居酒屋 一力】どうも、こんにちは。ピタットハウス浜松町店の吉富です。今回は定食メニューの豊富な【居酒屋一力】の紹介です。魚好きの僕が刺身定食の...続きを読む
六本木駅近隣の駅から探す
港区の近隣エリアから探す
FAQ
-
A. 港区赤坂マンション(AJN4665331_5)の内見は、見学予約でお問い合わせいただくか、直接四谷店(0037-6001-06556)までご連絡ください。
-
A. 可能です。港区赤坂マンション(AJN4665331_5)周辺の情報は、ピタットハウスの地域情報ブログ「街ピタ」や住みたい街の暮らしデータをご活用ください。
-
A. 港区赤坂マンション(AJN4665331_5)の費用は、こちらよりお問い合わせいただくか、直接四谷店(0037-6001-06556)までご連絡ください。
-
A. はい、可能です。賃貸希望物件リクエストをご利用ください。港区赤坂マンション(AJN4665331_5)に似た物件も合わせてご紹介させていただきます。