前へ
次へ
前へ
次へ
マンション

セリュークス大森(601)

9.5 万円
共益費 10,000
9.5万円
9.5万円
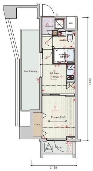
間取り
1K
専有面積
21.97㎡
所在階
7階建ての6階
向き
西
  • アイコン: 住所 東京都品川区南大井5丁目26-15
  • アイコン: 交通 JR京浜東北・根岸線 「大森駅」 徒歩8分 / 京急本線 「大森海岸駅」 徒歩13分 / 京急本線 「立会川駅」 徒歩13分
簡単無料
アイコン: お電話 0037-6001-04826
IP電話ご利用のお客様 : 03-4589-6715
ピタットハウス
東新宿店
point!
☆ペットと暮らせる分譲マンション☆
○内見の際は現地や最寄り駅でのお待ち合わせも可能です〇小型犬又は猫1匹まで飼育可能☆
お気軽にお問い合わせください!
簡単無料
お気軽にお問い合わせください!
物件情報・周辺環境・契約手続きについてなどお気軽にお問い合わせください。

設備・条件

建物・立地
  • 角部屋
  • 分譲マンションタイプ
  • エレベータ
  • 宅配ボックス
  • 都市ガス
  • 敷地内ごみ置き場
通信
  • インターネット対応
  • CATV
  • BS・CS
セキュリティ
  • オートロック
  • TVモニター付きインターホン
  • ピッキング対策キー
部屋設備
  • フローリング
  • ルーフバルコニー
  • バルコニー
  • 室内洗濯機置場
  • 下駄箱
  • クローゼット
  • 2面バルコニー
  • 24時間換気システム
  • 全居室洋室
キッチン
  • システムキッチン
  • ガスコンロ(2口)
バス・トイレ
  • バス・トイレ別
  • 浴室乾燥機
  • 独立洗面台
  • 温水洗浄便座
特徴
  • ペット相談可
  • ルームシェア可
  • 楽器不可
  • 二人入居可
  • 二人入居相談
  • 初期費用カード決済可

物件概要

物件種別

部屋種別 マンション
建物名称 セリュークス大森(601)
所在地 東京都品川区南大井5丁目26-15 MAP
築年月 2024年1月 階数 7階建ての6階
建物構造 鉄筋コンクリート造 総戸数 35戸
間取り 1K(洋7帖) 専有面積 21.97㎡
向き 西 バルコニー面積 2.92㎡
その他 -

費用

賃料 9.5万円 初期費用の確認をする 初期費用の確認をする 共益費 10,000円
礼金 9.5万円 敷金 9.5万円
保証金 - 償却金 9.5万円(解約時)・ペット飼育時:保証金1ヶ月(退去時償却)※敷金ではありません。
その他一時金 鍵交換費用:38500円 / ライフサポート:16500円
その他月額費用 決済サービス料:550円/月
住宅保険 要加入(2年18000円)
保証会社 必須
保証会社補足 初回:賃料等総額の50% 更新料:1万円/年 決済サービス料:550円(税込)/月
更新料 更新後賃料:1ヶ月 更新事務手数料 -

契約条件

貸家契約区分 普通賃貸借 契約期間 2年
入居可能日 2026年3月20日予定 空室状況を確認をする 空室状況を確認をする 引渡時期相談内容 -
フリーレント -
クレジットカード決済 初期費用クレジット決済可

駐車場

駐車場 なし 駐車場について質問する 駐車場について質問する
駐車場契約形態 -
駐車場備考 -
バイク置き場 -
駐輪場 -

備考

その他 ・ペット飼育時:保証金1ヶ月(退去時償却)※敷金ではありません。 ・ペットは小型犬又は猫1匹可 ・契約金全額又は一部クレジットカードがご利用いただけます! ・駐輪場の有無や空き状況は要確認 ・退去時の室内クリーニング費用負担があります ・鍵交換は任意です
関連リンク
取引態様 代理 管理コード 4335989
情報登録(更新)日 2026年1月27日 次回更新予定日 2026年2月4日
備考 めやす賃料:

めやす賃料とは賃料、共益費・管理費、敷引金、更新料を含み、賃料等条件の改定がないものと仮定して4年間賃借した場合(定期借家の場合は契約期間)の1ヶ月当たりの金額です。

※敷引金は、敷金の償却、保証金の償却など、預かった金額から必ず引くものをいいます。
※めやす賃料は、消費者に適切な情報を提供するための表示であり事業者に一時金を推奨するものではありません。
※めやす賃料は、実際の総支払額と異なる場合があります。詳しくは不動産会社にご確認ください。  

周辺環境

  • まいばすけっと南大井6丁目店:266m
    まいばすけっと南大井6丁目店:266m
  • セブンイレブン南大井水神店:142m
    セブンイレブン南大井水神店:142m
コンビニ
セブンイレブン南大井水神店
142m
買物
まいばすけっと南大井6丁目店
266m
ショッピング施設
阪急百貨店大井食品館
1728m
ドラッグストア
ウェルパーク大森貝塚店
397m
病院
いすゞ病院
704m
役所
大田区入新井特別出張所
983m
郵便局
品川水神郵便局
393m
図書館
品川区立南大井図書館
494m
交番
大井警察署
945m
公園
大森貝塚遺跡庭園
403m

取扱店舗

ピタットハウス東新宿店
ピタットハウス東新宿店
株式会社ニッテイライフ
交通
都営新宿線「新宿三丁目」駅E1出口から徒歩3分、大江戸線・副都心線「東新宿」駅イーストサイドスクエアまたはA3出口から徒歩3分
営業時間
09:00 〜 18:00
定休日
水曜日・GW・夏季・年末年始
お電話 0037-6001-04826 無料
メール お問い合わせ
  • お問い合わせ区分

  • 内見希望日時

    第一希望

    第二希望

  • お名前

    全角
  • ご希望の連絡方法

    メールアドレス

    電話番号

    半角
    半角
  • その他ご希望等

ピタットハウスの個人情報の取り扱いについて

ピタットハウスでは信頼されるサイトを目指して、物件情報の精度向上に努めています。
掲載物件に誤りがある場合は こちら からご連絡ください。現状と異なる場合は、現状を優先させていただきます。
取引態様の欄に「媒介」と表示された物件は「仲介物件」です。ご成約の際には仲介手数料を申し受けます。

生活情報

品川区の暮らしデータ

品川区は、東京都の南東部に位置し、東京湾に面する臨海部と山の手に連なる台地から形成され、面積は22.85km2で23区では平均的な広さです。人口は約40万人余りで、1964年をピークに減少していましたが、1998年以降は増加に転じています。

基本データ

市区役所所在地 品川区広町2-1-36
公式ホームページURL https://www.city.shinagawa.tokyo.jp/
総人口 422,488人
人口増減率(2015年/2020年) 109.2%
品川区の生活情報を詳しくみる

地域のおすすめ情報ブログ

一覧を見る

大森駅近隣の駅から探す

品川区の近隣エリアから探す

FAQ

  • A. セリュークス大森(DL4335989_9)の内見は、見学予約でお問い合わせいただくか、直接東新宿店(0037-6001-04826)までご連絡ください。
  • A. 可能です。セリュークス大森(DL4335989_9)周辺の情報は、ピタットハウスの地域情報ブログ「街ピタ」住みたい街の暮らしデータをご活用ください。
  • A. セリュークス大森(DL4335989_9)の費用は、こちらよりお問い合わせいただくか、直接東新宿店(0037-6001-04826)までご連絡ください。
  • A. はい、可能です。賃貸希望物件リクエストをご利用ください。セリュークス大森(DL4335989_9)に似た物件も合わせてご紹介させていただきます。