前へ
次へ
前へ
次へ
賃貸マンション

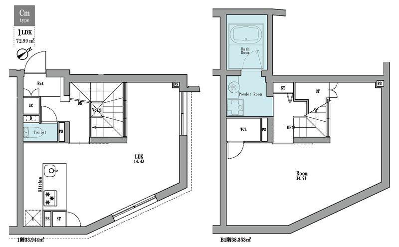
LEGALAND茗荷谷

築年月
2021年12月
構造
-
階数/戸数
地上5階建て / 15戸
管理形態
-
建物設備
-
管理会社
-
施工会社
-
更新日:2025年11月15日

LEGALAND茗荷谷の他の空室物件

1

周辺環境

  • 文京区役所:2120m
    文京区役所:2120m
  • 教育の森公園:434m
    教育の森公園:434m
  • ミニコープ氷川下店:89m
    ミニコープ氷川下店:89m
  • ファミリーマート小石川ゆたて坂店:125m
    ファミリーマート小石川ゆたて坂店:125m
コンビニ
ファミリーマート小石川ゆたて坂店
125m
買物
ミニコープ氷川下店
89m
ショッピング施設
西武池袋本店
3352m
ドラッグストア
スギ薬局茗荷谷店
653m
ホームセンター
Olympic白山店
1555m
病院
東京健生病院
641m
役所
文京区役所
2120m
郵便局
文京大塚三郵便局
325m
図書館
文京区立小石川図書館
613m
交番
大塚警察署
1430m
公園
教育の森公園
434m
銀行
りそな銀行茗荷谷支店
559m
幼稚園
にじのいるか保育園千石
270m
小学校
国立筑波大学附属小学校
638m
中学校
文京区立第十中学校
364m
高校
私立跡見学園高校
922m

LEGALAND茗荷谷の近隣物件

前へ
次へ

生活情報

文京区の暮らしデータ

文京区は、東京23区の中心部に位置し、由緒ある寺社、歴史を語る建造物等が数多く残るほか、江戸の大名屋敷庭園の面影を残す庭園もあります。また、明治時代には東京大学をはじめ多くの学校がつくられ、さらに、森鴎外、夏目漱石、樋口一葉、石川啄木など多くの文人ゆかりの地であり、緑豊かな文化の薫り高いまちとして発展してきました。

基本データ

市区役所所在地 文京区春日1-16-21
公式ホームページURL https://www.city.bunkyo.lg.jp//
総人口 240,069人
人口増減率(2015年/2020年) 109.3%
文京区の生活情報を詳しくみる

地域のおすすめ情報ブログ

一覧を見る

取扱店舗

株式会社New Anchor
交通
池袋駅西口(C6出口)より劇場通り沿いに北へ徒歩6分
営業時間
10:00 〜 18:00
定休日
毎週水曜日・GW・夏季休業・年末年始