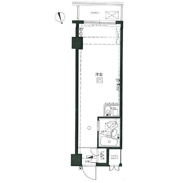
賃貸マンション
パレ・ドール歌舞伎町第2
-
東京都新宿区歌舞伎町2丁目 MAP
-
- 都営新宿線 「新宿三丁目駅」 徒歩5分 / 東京メトロ副都心線 「東新宿駅」 徒歩3分 / 西武新宿線 「西武新宿駅」 徒歩8分
- 築年月
- 1981年11月
- 構造
- 鉄筋コンクリート造
- 階数/戸数
- 地上5階建て / -
- 管理形態
- -
- 建物設備
- 外壁タイル張り/分譲マンションタイプ
- 管理会社
- -
- 施工会社
- -
更新日:2025年12月1日
パレ・ドール歌舞伎町第2の他の空室物件
1
件
お問い合わせお待ちしております!
周辺環境
-
セブンイレブン歌舞伎町2丁目東店:138m -
セブンイレブン歌舞伎町2丁目東店:138m -
- -
新宿明治通郵便局:275m -
東京信用金庫新宿支店:431m -
ダイコクドラッグ新宿5丁目店:311m
- コンビニ
-
セブンイレブン歌舞伎町2丁目東店138m
- 買物
-
マルエツ新宿六丁目店304m
- ショッピング施設
-
新宿マルイメン519m
- ドラッグストア
-
ダイコクドラッグ新宿5丁目店311m
- ホームセンター
-
新宿日曜大工センター842m
- 病院
-
公益財団法人東京都保健医療公社大609m
- 役所
-
新宿区役所476m
- 郵便局
-
新宿明治通郵便局275m
- 図書館
-
新宿区立中央図書館区役所内分室476m
- 交番
-
四谷警察署1271m
- 公園
-
新宿区立富久さくら公園1042m
- 銀行
-
東京信用金庫新宿支店431m
- 幼稚園
-
たいよう保育園249m
- 小学校
-
新宿区立天神小学校530m
- 中学校
-
新宿区立新宿中学校552m
- 高校
-
東京都立新宿高校1008m
パレ・ドール歌舞伎町第2の近隣物件
生活情報
新宿区の暮らしデータ
新宿区は、1947年3月15日に旧四谷・旧牛込・旧淀橋の3区が統合し発足しました。東京23区のほぼ中央に位置し、面積は18.22km2。23区中13番目の広さです。歌舞伎町や西新宿などの繁華街を有する一方、緑豊かな新宿御苑や、情緒ある神楽坂、住宅街の落合など様々な特色を持つ都市です。
基本データ
| 市区役所所在地 | 新宿区歌舞伎町1-4-1 |
|---|---|
| 公式ホームページURL | https://www.city.shinjuku.lg.jp// |
| 総人口 | 349,385人 |
| 人口増減率(2015年/2020年) | 104.7% |
地域のおすすめ情報ブログ
一覧を見る
-
【四谷】地元で愛されるパティスリーこんにちは!ピタットハウス飯田橋店新人の角屋敷です。今回紹介させていただくお店は「MOCHI」さんです!四ツ谷駅から徒歩7分、曙...続きを読む -
【牛込柳町】栄養満点のジュースが飲める!こんにちは!ピタットハウス飯田橋店の角屋敷です!今回は牛込柳町エリアでおすすめのスムージーショップをご紹介します。牛込柳町から徒...続きを読む -
【神楽坂】想いのこもった美味しいコーヒーこんにちは!ピタットハウス飯田橋店新人の角屋敷です。今回紹介させていただくお店は「AKHAAMACOFFEEKAGRAZAKA」...続きを読む -
【神楽坂】店長は猫ちゃん!?こんにちは!ピタットハウス飯田橋店の角屋敷です。今回は、神楽坂にある着物・雑貨店の「ふくねこ堂」さんをご紹介します♪お店の名前に...続きを読む
取扱店舗
株式会社ニッテイライフ
- 交通
- 都営新宿線「新宿三丁目」駅E1出口から徒歩3分、大江戸線・副都心線「東新宿」駅イーストサイドスクエアまたはA3出口から徒歩3分
- 営業時間
- 09:00 〜 18:00
- 定休日
- 水曜日・GW・夏季・年末年始