前へ
次へ
前へ
次へ
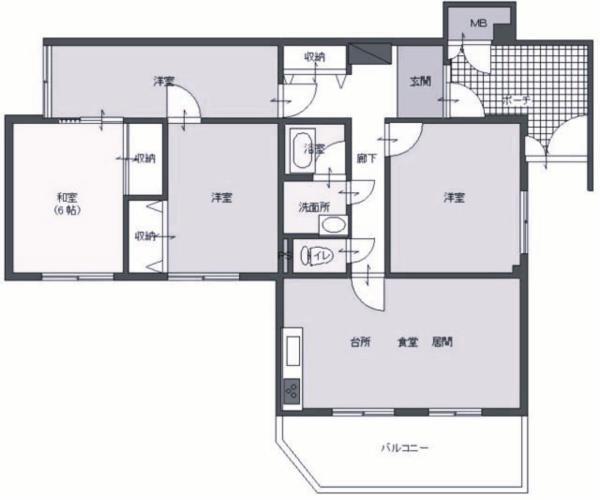
賃貸マンション

イトーピア甲陽園

NEW
  • 兵庫県西宮市上ケ原山田町
    • 阪急電鉄甲陽線 「甲陽園駅」 徒歩17分 / 阪急電鉄甲陽線 「苦楽園口駅」 徒歩25分 / 阪急電鉄今津線 「甲東園駅」 徒歩30分
築年月
1985年9月
構造
鉄筋コンクリート造
階数/戸数
地上14階建て / -
管理形態
-
建物設備
分譲マンションタイプ
管理会社
-
施工会社
-
更新日:2025年11月19日

イトーピア甲陽園の他の空室物件

2

周辺環境

  • セブンイレブン 西宮上ヶ原十番町店:165m
    セブンイレブン 西宮上ヶ原十番町店:165m
  • ローソン 上ヶ原二番町店:1137m
    ローソン 上ヶ原二番町店:1137m
  • 阪急OASIS(オアシス) 甲陽園店:1440m
    阪急OASIS(オアシス) 甲陽園店:1440m
  • スーパー万代 西宮門戸店:2715m
    スーパー万代 西宮門戸店:2715m
  • サンディ 西宮室川店:2530m
    サンディ 西宮室川店:2530m
  • パル・ヤマト西宮店:3056m
    パル・ヤマト西宮店:3056m
コンビニ
セブンイレブン 西宮上ヶ原十番町店
165m
買物
阪急OASIS(オアシス) 甲陽
1440m
ショッピング施設
-
ドラッグストア
-
ホームセンター
-
病院
-
役所
-
郵便局
-
図書館
-
交番
-
公園
-
銀行
-
幼稚園
-
小学校
-
中学校
-
高校
-

生活情報

西宮市の暮らしデータ

西宮市は、1925年の市制施行後、2025年に市制100周年を迎えます。大阪と神戸のほぼ中間に位置する人口約48.5万人の中核市で、山・川・海などの豊かな自然や、多くの文化・教育施設など文教住宅都市としての優れた特性を有しており、若い子育て世代を中心に「住みたいまち」として評価されています。六甲山からの伏流水である「宮水」を使った酒造りや、阪神甲子園球場、えべっさんでにぎわう西宮神社などがあるまちとしても有名です。

基本データ

市区役所所在地 西宮市六湛寺町10-3
公式ホームページURL https://www.nishi.or.jp//
総人口 485,587人
人口増減率(2015年/2020年) 99.5%
西宮市の生活情報を詳しくみる

取扱店舗

株式会社ライブデザイン
交通
全線三宮駅北側 徒歩1分 フラワーロード東沿いです。
営業時間
09:00 〜 19:00
定休日
年末年始