前へ
次へ
前へ
次へ
賃貸マンション

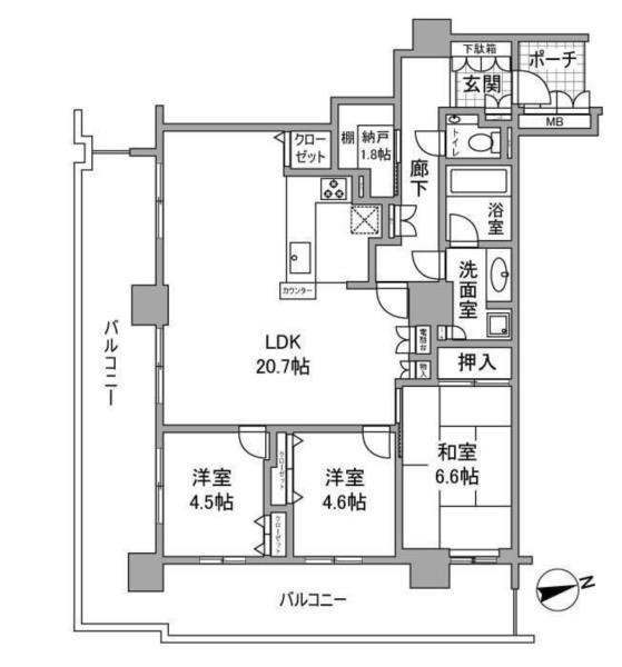
エイヴィスタワー西宮

NEW
  • 兵庫県西宮市田中町 MAP
    • 阪神電鉄本線 「西宮駅」 徒歩1分 / JR東海道本線 「さくら夙川駅」 徒歩13分 / 阪急電鉄神戸線 「夙川駅」 徒歩21分
築年月
2003年10月
構造
鉄筋コンクリート造
階数/戸数
地上28階建て / -
管理形態
-
建物設備
オートロック/宅配BOX/分譲マンションタイプ
管理会社
-
施工会社
-
更新日:2025年11月26日

エイヴィスタワー西宮の他の空室物件

1

周辺環境

  • ダイエー阪神西宮店:38m
    ダイエー阪神西宮店:38m
  • 阪神西宮駅:266m
    阪神西宮駅:266m
  • セブンイレブン 阪神西宮駅南店:115m
    セブンイレブン 阪神西宮駅南店:115m
  • エビスタ西宮:232m
    エビスタ西宮:232m
  • ファミリーマート 西宮戸田町店:208m
    ファミリーマート 西宮戸田町店:208m
  • りそな銀行 西宮支店:276m
    りそな銀行 西宮支店:276m
コンビニ
セブンイレブン 阪神西宮駅南店
115m
買物
ダイエー阪神西宮店
38m
ショッピング施設
エビスタ西宮
232m
ドラッグストア
-
ホームセンター
-
病院
-
役所
-
郵便局
-
図書館
-
交番
-
公園
-
銀行
りそな銀行 西宮支店
276m
幼稚園
-
小学校
-
中学校
-
高校
-

エイヴィスタワー西宮の近隣物件

前へ
次へ

生活情報

西宮市の暮らしデータ

西宮市は、1925年の市制施行後、2025年に市制100周年を迎えます。大阪と神戸のほぼ中間に位置する人口約48.5万人の中核市で、山・川・海などの豊かな自然や、多くの文化・教育施設など文教住宅都市としての優れた特性を有しており、若い子育て世代を中心に「住みたいまち」として評価されています。六甲山からの伏流水である「宮水」を使った酒造りや、阪神甲子園球場、えべっさんでにぎわう西宮神社などがあるまちとしても有名です。

基本データ

市区役所所在地 西宮市六湛寺町10-3
公式ホームページURL https://www.nishi.or.jp//
総人口 485,587人
人口増減率(2015年/2020年) 99.5%
西宮市の生活情報を詳しくみる

取扱店舗

株式会社ライブデザイン
交通
全線三宮駅北側 徒歩1分 フラワーロード東沿いです。
営業時間
09:00 〜 19:00
定休日
年末年始