前へ
次へ
前へ
次へ
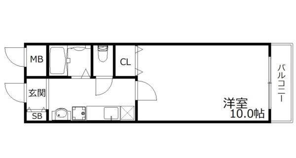
賃貸アパート

サンビレッジ中芦屋

NEW
  • 兵庫県芦屋市茶屋之町 MAP
    • JR東海道本線 「芦屋駅」 徒歩7分 / 阪神電鉄本線 「芦屋駅」 徒歩8分 / 阪急電鉄神戸線 「芦屋川駅」 徒歩14分
築年月
1993年3月
構造
軽量鉄骨造
階数/戸数
地上4階建て / 9戸
管理形態
-
建物設備
宅配BOX
管理会社
-
施工会社
-
更新日:2025年12月16日

サンビレッジ中芦屋の他の空室物件

1

周辺環境

  • 芦屋宮塚郵便局:356m
    芦屋宮塚郵便局:356m
  • ローソンストア100 芦屋大桝町店:342m
    ローソンストア100 芦屋大桝町店:342m
  • いかりスーパー:383m
    いかりスーパー:383m
  • セブンイレブン芦屋公光町店:364m
    セブンイレブン芦屋公光町店:364m
  • ローソン100:334m
    ローソン100:334m
  • 芦屋公光郵便局:334m
    芦屋公光郵便局:334m
コンビニ
ローソンストア100 芦屋大桝町店
342m
買物
いかりスーパー
383m
ショッピング施設
-
ドラッグストア
-
ホームセンター
-
病院
-
役所
-
郵便局
芦屋宮塚郵便局
356m
図書館
-
交番
-
公園
-
銀行
-
幼稚園
-
小学校
-
中学校
-
高校
-

サンビレッジ中芦屋の近隣物件

前へ
次へ

生活情報

芦屋市の暮らしデータ

芦屋市は、大阪と神戸の中間に位置し、六甲山を背景に、瀬戸内海に面した風光明媚な土地柄から、伊勢物語や万葉集などに詠われた古来からの都人あこがれの地です。大正以後、交通網の発達に伴い、大都市近郊住宅地として日本有数の高級住宅街を形成しました。全国でも屈指の「国際文化住宅都市」として発展し、全市域を景観法による芦屋景観地区に指定するなど、緑豊かな美しい芦屋を目指したまちづくりを進めています。

基本データ

市区役所所在地 芦屋市精道町7-6
公式ホームページURL https://www.city.ashiya.lg.jp//
総人口 93,922人
人口増減率(2015年/2020年) 98.5%
芦屋市の生活情報を詳しくみる

取扱店舗

株式会社ライブデザイン
交通
全線三宮駅北側 徒歩1分 フラワーロード東沿いです。
営業時間
09:00 〜 19:00
定休日
年末年始