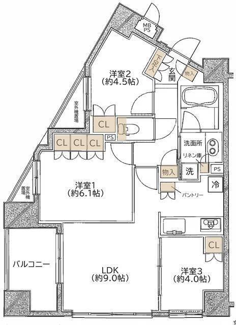
賃貸マンション
ダイナシティ西横浜
NEW-
神奈川県横浜市西区浜松町 MAP
-
- 相鉄本線 「西横浜駅」 徒歩4分 / 京急本線 「戸部駅」 徒歩13分 / JR横須賀線 「保土ケ谷駅」 徒歩15分
- 築年月
- 2006年4月
- 構造
- 鉄筋コンクリート造
- 階数/戸数
- 地上11階建て / -
- 管理形態
- -
- 建物設備
- オートロック/宅配BOX/分譲マンションタイプ
- 管理会社
- -
- 施工会社
- -
更新日:2025年11月18日
ダイナシティ西横浜の他の空室物件
1
件
周辺環境
-
横浜市立西前小学校:548m -
横浜市立西中学校:1070m -
ろぜっと保育園:198m -
横浜市西区役所:775m -
横浜久保町郵便局:394m -
戸部公園:688m -
横浜ビブレ:1985m
- コンビニ
-
-
- 買物
-
-
- ショッピング施設
-
横浜ビブレ1985m
- ドラッグストア
-
-
- ホームセンター
-
-
- 病院
-
-
- 役所
-
横浜市西区役所775m
- 郵便局
-
横浜久保町郵便局394m
- 図書館
-
-
- 交番
-
-
- 公園
-
戸部公園688m
- 銀行
-
-
- 幼稚園
-
ろぜっと保育園198m
- 小学校
-
横浜市立西前小学校548m
- 中学校
-
横浜市立西中学校1070m
- 高校
-
-
ダイナシティ西横浜の近隣物件
生活情報
横浜市の暮らしデータ
横浜市は、神奈川県の東端に位置し、東は東京湾、北は川崎市、西は町田市・大和市・藤沢市、南は鎌倉市・逗子市・横須賀市に接しています。横浜市の中心部から東京都心部までは、約30kmです。国を代表する国際貿易港である横浜港を基盤として、首都圏の中核都市としての役割を担っています。総面積は、約435km2で、これは東京23区の約7割にあたります。
基本データ
| 市区役所所在地 | 横浜市中区本町6-50-10 |
|---|---|
| 公式ホームページURL | https://www.city.yokohama.lg.jp// |
| 総人口 | 3,777,491人 |
| 人口増減率(2015年/2020年) | 101.4% |
地域のおすすめ情報ブログ
一覧を見る
-
元町ハロウィン皆さんこんにちは!ピタットハウス横浜元町店です!本日は10月の元町の恒例イベント「元町ハロウィン」をご紹介いたします!元町ショッ...続きを読む -
美味しくてリーズナブルな焼肉屋さん皆さんこんにちは!ピタットハウス横浜元町店です!本日は、黄金町駅より徒歩3分のところにある「焼肉・友」さんをご紹介いたします!中...続きを読む -
撮る前に食べちゃった行ってきました、丸源ラーメン瀬谷店!看板メニューの「熟成醤油ラーメン肉そば」。……が、あまりにおいしそうで、つい、つい、箸が先に...続きを読む -
味噌ラーメン専門「田所商店 瀬谷店」瀬谷にある味噌ラーメン専門田所商店瀬谷店さんへ。全国各地の味噌を使ったラーメンが楽しめる人気店です。メニューの魅力田所商店といえ...続きを読む
取扱店舗
株式会社関東住宅流通
- 交通
- センター南駅 出口1から徒歩約3分センター北駅 出口1から徒歩約16分都筑ふれあいの丘駅 出口1から徒歩約17分
- 営業時間
- 09:30 〜 18:30
- 定休日
- 毎週火曜日・水曜日・夏季休暇(8/12~8/17)
その他の取扱店舗
-
株式会社関東住宅流通
- 交通
- JR京浜東北根岸線 桜木町駅 徒歩2分みなとみらい線 みなとみらい駅 徒歩14分みなとみらい線 馬車道駅 徒歩7分
- 営業時間
- 09:30 〜 18:30
- 定休日
- 毎週水曜日・夏季休暇(8/13~8/17)