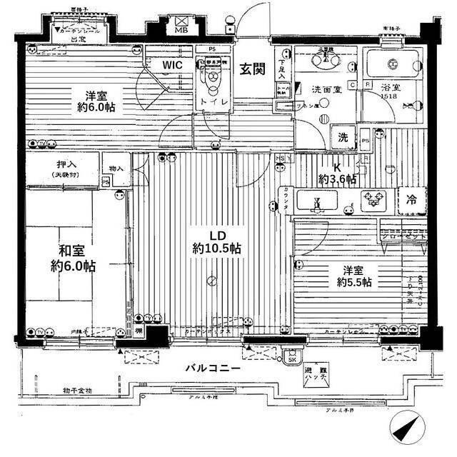
賃貸マンション
シーズガーデン登戸
NEW-
神奈川県川崎市多摩区中野島4丁目 MAP
-
- 小田急小田原線 「登戸駅」 徒歩14分
- 築年月
- 2003年2月
- 構造
- 鉄筋コンクリート造
- 階数/戸数
- 地上4階建て / 26戸
- 管理形態
- -
- 建物設備
- オートロック/宅配BOX/外壁タイル張り/分譲マンションタイプ
- 管理会社
- -
- 施工会社
- -
更新日:2025年12月25日
シーズガーデン登戸の他の空室物件
1
件
周辺環境
-
私立カリタス小学校:653m -
私立カリタス女子中学校:333m -
中野島のはら保育園:71m -
川崎市多摩区役所:1218m -
川崎中野島北郵便局:901m -
西河原公園:1959m -
京王百貨店トリエ京王調布店:5225m
- コンビニ
-
-
- 買物
-
-
- ショッピング施設
-
京王百貨店トリエ京王調布店5225m
- ドラッグストア
-
-
- ホームセンター
-
-
- 病院
-
-
- 役所
-
川崎市多摩区役所1218m
- 郵便局
-
川崎中野島北郵便局901m
- 図書館
-
-
- 交番
-
-
- 公園
-
西河原公園1959m
- 銀行
-
-
- 幼稚園
-
中野島のはら保育園71m
- 小学校
-
私立カリタス小学校653m
- 中学校
-
私立カリタス女子中学校333m
- 高校
-
-
シーズガーデン登戸の近隣物件
生活情報
川崎市の暮らしデータ
川崎市は、自然豊かな多摩川に面し、市内を縦断するJR南武線に加え5つの私鉄が横断する利便性の高い人口増加が続くまちです。首都圏有数の広さを誇る生田緑地には「藤子・F・不二雄ミュージアム」、川崎駅前には世界有数の音響を誇る「ミューザ川崎シンフォニーホール」、さらに市内に2つの音楽大学や日本初の映画の専科大学が立地するとともに、スポーツではJリーグ川崎フロンターレ等の数多くのトップチームが活躍しています。
基本データ
| 市区役所所在地 | 川崎市川崎区宮本町1 |
|---|---|
| 公式ホームページURL | https://www.city.kawasaki.jp// |
| 総人口 | 1,538,262人 |
| 人口増減率(2015年/2020年) | 104.3% |
地域のおすすめ情報ブログ
一覧を見る
-
定額通い放題制セミパーソナルジムこんにちは♪ピタットハウス稲田堤店です♪本日は、JR南武線・稲田堤駅から徒歩1分、京王相模原線・京王稲田堤駅からは徒歩3分の少人...続きを読む -
マキシマム・ザ・ホルモン!!ピタットハウス宮前平店の殿村です。本日はうちのお店から徒歩10秒のところにある焼肉屋さん『鉄の四』さんです。焼肉屋さんですが…僕...続きを読む -
鉄板で焼いた肉のやつ!!ピタットハウス宮前平店の殿村です。肉を食うなら、あなたがウォーキングデッドの被害者でない限り、このお店をお勧めします。覚えておい...続きを読む -
♪極楽♪極楽♪ピタットハウス宮前平店の殿村です。今日は宮前平のランドマーク『宮前平源泉湯けむりの庄』をご紹介。いわゆるスーパー銭湯です。大きな...続きを読む
取扱店舗
株式会社関東住宅流通
- 交通
- センター南駅 出口1から徒歩約3分センター北駅 出口1から徒歩約16分都筑ふれあいの丘駅 出口1から徒歩約17分
- 営業時間
- 09:30 〜 18:30
- 定休日
- 毎週火曜日・水曜日・冬季休暇(12/27~1/4)
その他の取扱店舗
-
株式会社関東住宅流通
- 交通
- JR京浜東北根岸線 桜木町駅 徒歩2分みなとみらい線 みなとみらい駅 徒歩14分みなとみらい線 馬車道駅 徒歩7分
- 営業時間
- 09:30 〜 18:30
- 定休日
- 毎週水曜日・冬季休暇(12/27~1/4)