賃貸マンション
ドレッセタワー新綱島
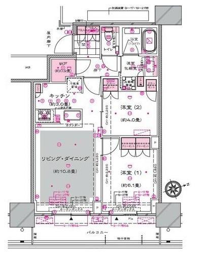
NEW-
神奈川県横浜市港北区綱島東1丁目 MAP
-
- 東急新横浜線 「新綱島駅」 徒歩1分 / 東急東横線 「綱島駅」 徒歩3分
- 築年月
- 2023年10月
- 構造
- 鉄筋コンクリート造
- 階数/戸数
- 地上29階建て / 252戸
- 管理形態
- -
- 建物設備
- オートロック/24時間セキュリティ/宅配BOX/分譲マンションタイプ
- 管理会社
- -
- 施工会社
- -
更新日:2026年4月16日
ドレッセタワー新綱島の他の空室物件
1
件
お問い合わせお待ちしております!
周辺環境
-
横浜市立綱島東小学校:465m -
横浜市立樽町中学校:1813m -
はなまる保育園:254m -
横浜市港北区役所:2203m -
綱島本通郵便局:823m -
鶴見川樽町公園:1338m -
日吉東急avenue:2561m
- コンビニ
-
-
- 買物
-
-
- ショッピング施設
-
日吉東急avenue2561m
- ドラッグストア
-
-
- ホームセンター
-
-
- 病院
-
-
- 役所
-
横浜市港北区役所2203m
- 郵便局
-
綱島本通郵便局823m
- 図書館
-
-
- 交番
-
-
- 公園
-
鶴見川樽町公園1338m
- 銀行
-
-
- 幼稚園
-
はなまる保育園254m
- 小学校
-
横浜市立綱島東小学校465m
- 中学校
-
横浜市立樽町中学校1813m
- 高校
-
-
ドレッセタワー新綱島の近隣物件
生活情報
横浜市の暮らしデータ
横浜市は、神奈川県の東端に位置し、東は東京湾、北は川崎市、西は町田市・大和市・藤沢市、南は鎌倉市・逗子市・横須賀市に接しています。横浜市の中心部から東京都心部までは、約30kmです。国を代表する国際貿易港である横浜港を基盤として、首都圏の中核都市としての役割を担っています。総面積は、約435km2で、これは東京23区の約7割にあたります。
基本データ
| 市区役所所在地 | 横浜市中区本町6-50-10 |
|---|---|
| 公式ホームページURL | https://www.city.yokohama.lg.jp// |
| 総人口 | 3,777,491人 |
| 人口増減率(2015年/2020年) | 101.4% |
地域のおすすめ情報ブログ
一覧を見る
-
中華料理もタイ料理も楽しめるお店こんにちは!ピタットハウス横浜店新人の小林です!今回ご紹介させていただくのは、横浜エリアで人気の中華料理店「中国料理&タイ料理チ...続きを読む -
街の洋食屋さん今回紹介させていただくのは、日吉駅徒歩2分のところにある洋食屋さんです!店内はとても落ち着く雰囲気でご飯もとてもおいしかったです...続きを読む -
日吉の整骨院こんにちは!初めまして!ピタットハウス日吉店の新人の堀内です!今回は、東急東横線「日吉駅」浜銀通り徒歩3分にある整骨院、「浜銀通...続きを読む -
地域によりそった素敵なカフェです!!こんにちは!ピタットハウス日吉店の小林です!今回ご紹介するのは、日吉本町4丁目にあります「日吉カフェ」です!以前から前を通るたび...続きを読む
取扱店舗
株式会社関東住宅流通
- 交通
- JR京浜東北根岸線 桜木町駅 徒歩2分みなとみらい線 みなとみらい駅 徒歩14分みなとみらい線 馬車道駅 徒歩7分
- 営業時間
- 09:30 〜 18:30
- 定休日
- 毎週水曜日・冬季休暇(12/27~1/4)
その他の取扱店舗
-
株式会社関東住宅流通
- 交通
- センター南駅 出口1から徒歩約3分センター北駅 出口1から徒歩約16分都筑ふれあいの丘駅 出口1から徒歩約17分
- 営業時間
- 09:30 〜 18:30
- 定休日
- 毎週火曜日・水曜日・冬季休暇(12/27~1/4)