駐車場
湯梨浜町上浅津205-8
-
鳥取県東伯郡湯梨浜町大字上浅津 MAP
-
- JR山陰本線 「倉吉駅」 徒歩75分
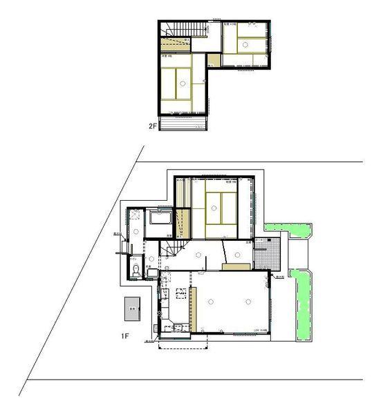
- 築年月
- 1982年8月
- 構造
- 木造
- 階数/戸数
- 地上2階建て / 1戸
- 管理形態
- -
- 建物設備
- -
- 管理会社
- -
- 施工会社
- -
更新日:2025年10月5日
湯梨浜町上浅津205-8の他の空室物件
1
件

お問い合わせお待ちしております!
周辺環境
- コンビニ
-
Yショップ湯梨浜リズム1856m
- 買物
-
まるごう羽合店2397m
- ショッピング施設
-
-
- ドラッグストア
-
ドラッグストアウェルネスハワイ店2466m
- ホームセンター
-
コメリハード&グリーン東郷店3142m
- 病院
-
医療法人専仁会信生病院3537m
- 役所
-
湯梨浜町役場本庁舎2227m
- 郵便局
-
上浅津簡易郵便局578m
- 図書館
-
湯梨浜町立図書館4337m
- 交番
-
倉吉警察署4189m
- 公園
-
めぐみのゆ公園2526m
- 銀行
-
JA鳥取中央羽合支所2188m
- 幼稚園
-
湯梨浜町立はわいこども園1297m
- 小学校
-
湯梨浜町立羽合小学校1825m
- 中学校
-
湯梨浜町立北溟中学校2762m
- 高校
-
私立湯梨浜高校5318m
湯梨浜町上浅津205-8(1)の近隣物件
取扱店舗

株式会社へいわ
- 交通
- JR倉吉駅よりバス5分 倉吉消防署斜め向かい 焼肉幸楽2階
- 営業時間
- 09:00 〜 17:00
- 定休日
- 毎週水曜日