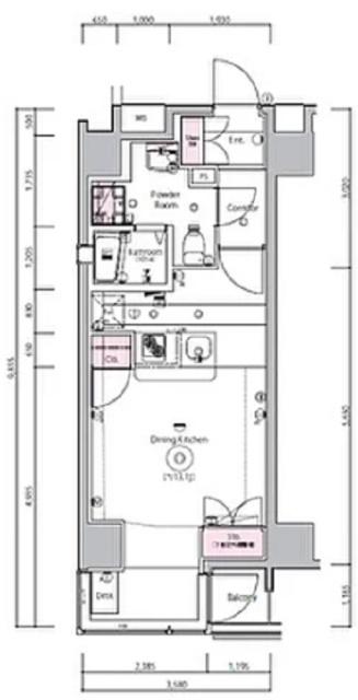
賃貸マンション
NIKKEI MARKS
-
神奈川県横浜市神奈川区東神奈川2丁目 MAP
-
- JR横浜線 「東神奈川駅」 徒歩10分 / JR京浜東北・根岸線 「東神奈川駅」 徒歩10分
- 築年月
- 2013年2月
- 構造
- 鉄筋コンクリート造
- 階数/戸数
- 地上10階建て / -
- 管理形態
- -
- 建物設備
- オートロック/宅配BOX
- 管理会社
- -
- 施工会社
- -
更新日:2026年5月18日
NIKKEI MARKSの他の空室物件
1
件
お問い合わせお待ちしております!
周辺環境
- コンビニ
-
セブンイレブン横浜東神奈川1丁目店596m
- 買物
-
まいばすけっと神奈川新町駅前店423m
- ショッピング施設
-
そごう横浜店2035m
- ドラッグストア
-
クリエイトエス・ディー横浜反町店1503m
- ホームセンター
-
NOCE横浜駅前店1752m
- 病院
-
社会福祉法人恩賜財団済生会神奈川1065m
- 役所
-
横浜市神奈川区役所1180m
- 郵便局
-
神奈川郵便局633m
- 図書館
-
横浜市神奈川図書館1230m
- 交番
-
神奈川警察署839m
- 公園
-
神奈川公園1181m
- 銀行
-
ゆうちょ銀行さいたま支店シァルプ742m
- 幼稚園
-
きゃんばす東神奈川保育園267m
- 小学校
-
横浜市立神奈川小学校478m
- 中学校
-
横浜市立浦島丘中学校1295m
- 高校
-
私立飛鳥未来高校横浜キャンパス1020m
NIKKEI MARKSの近隣物件
生活情報
横浜市の暮らしデータ
横浜市は、神奈川県の東端に位置し、東は東京湾、北は川崎市、西は町田市・大和市・藤沢市、南は鎌倉市・逗子市・横須賀市に接しています。横浜市の中心部から東京都心部までは、約30kmです。国を代表する国際貿易港である横浜港を基盤として、首都圏の中核都市としての役割を担っています。総面積は、約435km2で、これは東京23区の約7割にあたります。
基本データ
| 市区役所所在地 | 横浜市中区本町6-50-10 |
|---|---|
| 公式ホームページURL | https://www.city.yokohama.lg.jp// |
| 総人口 | 3,777,491人 |
| 人口増減率(2015年/2020年) | 101.4% |
地域のおすすめ情報ブログ
一覧を見る
-
たまプラーザにも麻辣湯!今回は、たまプラーザにある「芳香麻辣湯」に行ってきました!先月の4月30日にオープンしたばかりで店内は多くの人で賑わってました?...続きを読む -
地元で人気のパン屋!こんにちは!センター北店新人の栁澤です!今回は、ブーランジェリーメリエスというパン屋さんに行ってきました!店内に入ると、焼きたて...続きを読む -
北山田で見つけた!ワッフル専門店!こんにちは!センター北店新人の栁澤です!今回は、北山田駅にあるカフェ”moani”に行ってきました!落ち着いた雰囲気のおしゃれな...続きを読む -
大人気バンドのMVロケ地!こんにちは!ピタットハウス仲町台店の中谷です。今回は、都築ふれあいの丘駅から徒歩13分の場所にある「川和富士公園」に行ってきまし...続きを読む
取扱店舗
株式会社エム・コーポレーション
- 交通
- JR横浜線・市営地下鉄ブルーライン・東急新横浜線「新横浜」駅8番出口より徒歩6分・アイススケート場の隣です
- 営業時間
- 10:00 〜 18:00
- 定休日
- 毎週火曜日・水曜日・GW休暇:4/28(火)〜5/6(水)