駐車場
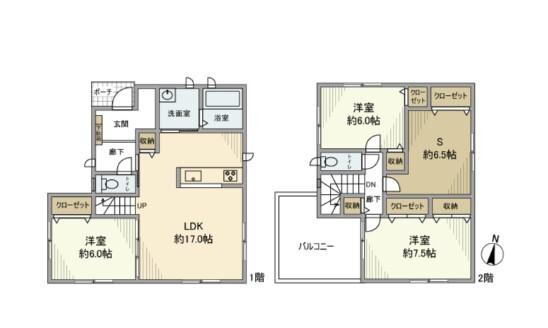
太田窪1丁目戸建
NEW-
埼玉県さいたま市緑区太田窪1丁目 MAP
-
- JR東北本線 「浦和駅」 徒歩18分 / JR湘南新宿ライン宇須 「浦和駅」 徒歩18分 / JR武蔵野線 「南浦和駅」 徒歩32分
- 築年月
- 2023年6月
- 構造
- 木造
- 階数/戸数
- 地上2階建て / -
- 管理形態
- -
- 建物設備
- -
- 管理会社
- -
- 施工会社
- -
更新日:2025年12月4日
太田窪1丁目戸建の他の空室物件
1
件
お問い合わせお待ちしております!
周辺環境
-
南区役所谷田支所:1111m -
浦和パルコ:1492m -
ノジマ浦和パルコ店:1438m -
さいたま市立中央図書館:1442m -
埼玉県警察本部:2188m -
駒場緑地:1120m -
医療法人川久保病院:1143m -
私立埼玉学園大学:5349m
- コンビニ
-
セブンイレブンさいたま原山1丁目店476m
- 買物
-
ベルクス浦和原山店893m
- ショッピング施設
-
浦和パルコ1492m
- ドラッグストア
-
ウエルシアさいたま原山2号店422m
- ホームセンター
-
ノジマ浦和パルコ店1438m
- 病院
-
医療法人川久保病院1143m
- 役所
-
南区役所谷田支所1111m
- 郵便局
-
浦和原山郵便局471m
- 図書館
-
さいたま市立中央図書館1442m
- 交番
-
埼玉県警察本部2188m
- 公園
-
駒場緑地1120m
- 銀行
-
青木信用金庫浦和支店674m
- 幼稚園
-
-
- 小学校
-
-
- 中学校
-
-
- 高校
-
-
太田窪1丁目戸建の近隣物件
生活情報
さいたま市の暮らしデータ
さいたま市は、埼玉県の南東部に位置し、都心から20〜30km圏内にある県庁所在地です。2001年5月1日の浦和・大宮・与野の3市合併により誕生したさいたま市は、2003年4月1日に全国で13番目の政令指定都市へと移行し、2005年4月1日には岩槻市との合併を果たしました。そして、2021年には20周年を迎え、現在、人口134万人を超える都市へと成長し、首都圏でも人気の高い都市に名を連ねています。
基本データ
| 市区役所所在地 | さいたま市浦和区常盤6-4-4 |
|---|---|
| 公式ホームページURL | https://www.city.saitama.lg.jp// |
| 総人口 | 1,324,025人 |
| 人口増減率(2015年/2020年) | 104.8% |
地域のおすすめ情報ブログ
一覧を見る
-
東浦和第七公園今回は「東浦和第七公園」に行ってきました。ブランコや滑り台がある公園です。駅からも近いので小さいお子さんというよりは学生などが多...続きを読む -
南与野店周辺 アイス屋さんこんにちは!ピタットハウス南与野店です。今回ご紹介するのは、駅をでてすぐの高架下、ブルーシールアイスクリームのご紹介です!沖縄を...続きを読む -
南与野駅周辺 カフェこんにちは!ピタットハウス南与野店です。今回ご紹介するのは、南与野駅から徒歩6分くらいのコメダ珈琲店です。コメダ珈琲といえば、や...続きを読む -
南与野駅周辺 ケーキ屋さんこんにちは!ピタットハウス南与野店です。今回ご紹介するのは、おいし〜いケーキ屋さん、パティスリーカシュカシュさんです!駅から徒歩...続きを読む
取扱店舗
株式会社彩企
- 交通
- JR京浜東北、宇都宮、高崎、湘南新宿ライン「浦和」駅 東口徒歩2分
- 営業時間
- 10:00 〜 19:00
- 定休日
- 毎週水曜日