賃貸マンション
オーパスレジデンス銀座イースト
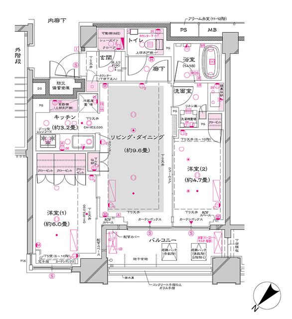
-
東京都中央区築地7丁目 MAP
-
- 東京メトロ有楽町線 「新富町駅」 徒歩7分 / 東京メトロ日比谷線 「築地駅」 徒歩6分 / 都営浅草線 「東銀座駅」 徒歩12分
- 築年月
- 2021年1月
- 構造
- 鉄筋コンクリート造
- 階数/戸数
- 地上12階建て / -
- 管理形態
- -
- 建物設備
- オートロック/宅配BOX
- 管理会社
- -
- 施工会社
- -
更新日:2025年10月16日
オーパスレジデンス銀座イーストの他の空室物件
1
件

お問い合わせお待ちしております!
周辺環境
- コンビニ
-
ローソンストア100築地7丁目店157m
- 買物
-
ニューみ乃り屋209m
- ショッピング施設
-
銀座三越1258m
- ドラッグストア
-
どらっぐぱぱす明石町店494m
- ホームセンター
-
カンディハウス松屋銀座店1273m
- 病院
-
(財)聖路加国際病院426m
- 役所
-
中央区役所846m
- 郵便局
-
聖路加ガーデン内郵便局538m
- 図書館
-
聖路加国際大学学術情報センター図379m
- 交番
-
築地警察署784m
- 公園
-
あかつき公園158m
- 銀行
-
城北信用金庫中央支店584m
- 幼稚園
-
明石町保育園235m
- 小学校
-
中央区立明石小学校504m
- 中学校
-
中央区立佃中学校1594m
- 高校
-
東京都立晴海総合高校1910m
オーパスレジデンス銀座イースト(505)の近隣物件
生活情報
中央区の暮らしデータ
中央区は、江戸以来、400年以上にわたって日本の文化・商業・情報の中心として発展してきた由緒あるまちです。1947年に日本橋区と京橋区が統合され、現在の中央区が誕生しました。面積はわずか約10km2ですが、美しい水辺の景観や全国的に有名な「銀座」「日本橋」「築地」「月島」など魅力的なスポットを擁する、「遊」「職」「住」の三拍子そろった活気と魅力にあふれる都心のまちです。
基本データ
市区役所所在地 | 中央区築地1-1-1 |
---|---|
公式ホームページURL | https://www.city.chuo.lg.jp// |
総人口 | 169,179人 |
人口増減率(2015年/2020年) | 119.8% |
地域のおすすめ情報ブログ
一覧を見る
取扱店舗

株式会社エスケイ・コミュニティー
- 交通
- JR山手線「新宿」駅徒歩6分都営大江戸線「新宿西口」駅徒歩2分
- 営業時間
- 09:30 〜 18:30
- 定休日
- 毎週水曜日・2月・3月は無休、夏季休暇無し・年末年始
その他の取扱店舗
-
株式会社東洋リーベスト
- 交通
- JR中央線 『武蔵境駅』 南口より 徒歩30秒 駐車場有
- 営業時間
- 10:00 〜 19:00
- 定休日
- 毎週水曜日・夏季休業・8/12から8/20まで
-
スターツピタットハウス株式会社
- 交通
- JR総武線 亀戸駅
- 営業時間
- 10:00 〜 18:00
- 定休日
- 毎週水曜日、木曜日・GW休業・夏季休業・年末年始休業・冬季休業:12/28(日)〜1/3(土)