賃貸マンション
MAXIV CROSお花茶屋
-
東京都葛飾区白鳥1丁目 MAP
-
- 京成本線 「お花茶屋駅」 徒歩5分
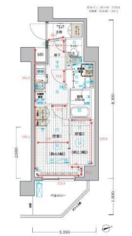
- 築年月
- 2025年6月
- 構造
- 鉄筋コンクリート造
- 階数/戸数
- 地上5階建て / -
- 管理形態
- -
- 建物設備
- オートロック/宅配BOX/分譲マンションタイプ
- 管理会社
- -
- 施工会社
- -
更新日:2025年10月22日
MAXIV CROSお花茶屋の他の空室物件
1
件

お問い合わせお待ちしております!
MAXIV CROSお花茶屋(305)の近隣物件
生活情報
葛飾区の暮らしデータ
葛飾区は、東京の北東部に位置し、荒川、江戸川、中川など河川に囲まれた自然豊かな、下町人情溢れるまちです。映画『男はつらいよ』の舞台となり、都内では初の国の重要文化的景観に選定された柴又や『こちら葛飾区亀有公園前派出所』で有名な亀有、世界的に有名なサッカー漫画『キャプテン翼』ゆかりの地である立石・四つ木、6月に区の花・花菖蒲が咲き誇る堀切菖蒲園や広大な水郷景観のある水元公園などには、多くの観光客の方にお越しいただいています。代表的な区ゆかりの玩具である「リカちゃん」「トミカ」「人生ゲーム」「モンチッチ」などを活用したPRやイベントも好評です。区では現在、子育てや教育、福祉、健康施策、SDGsにも力を入れています。
基本データ
市区役所所在地 | 葛飾区立石5-13-1 |
---|---|
公式ホームページURL | https://www.city.katsushika.lg.jp// |
総人口 | 453,093人 |
人口増減率(2015年/2020年) | 102.3% |
地域のおすすめ情報ブログ
一覧を見る
-
地域に愛されるお豆腐屋さん!こんにちは!ピタットハウス新小岩店の小林です!今回は葛飾区立石にある『黒須豆腐店』さんのご紹介です!こちらのお店は、京成立石駅か...続きを読む
-
ケーキもお食事も楽しめるお店!こんにちは!ピタットハウス新小岩店の小林です!今回は葛飾区立石にあるスイーツ店『MinoRumiマルキ』さんのご紹介です。こちら...続きを読む
-
平和橋のご紹介こんにちは!ピタットハウス新小岩店の小林です!今回は平和橋通りにかかる『平和橋』のご紹介です!平和橋通りは、足立区の日光街道の千...続きを読む
-
夜までやってるアイス屋さん!こんにちは!ピタットハウス新小岩店の小林です!今回は『アイスは別腹』さんのご紹介です!こちらのお店は新小岩駅北口から徒歩2分ほど...続きを読む
取扱店舗

株式会社エスケイ・コミュニティー
- 交通
- JR山手線「新宿」駅徒歩6分都営大江戸線「新宿西口」駅徒歩2分
- 営業時間
- 09:30 〜 18:30
- 定休日
- 毎週水曜日・2月・3月は無休、夏季休暇無し・年末年始