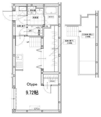
賃貸アパート
FAIR東向島
NEW-
東京都墨田区東向島3丁目 MAP
-
- 東武伊勢崎・大師線 「東向島駅」 徒歩8分 / 京成押上線 「京成曳舟駅」 徒歩14分
- 築年月
- 2025年10月
- 構造
- 木造
- 階数/戸数
- 地上3階建て / 9戸
- 管理形態
- -
- 建物設備
- オートロック/宅配BOX
- 管理会社
- 株式会社日本コミュニティー
- 施工会社
- -
更新日:2025年10月18日
FAIR東向島の他の空室物件
1
件

お問い合わせお待ちしております!
FAIR東向島(203)の近隣物件
生活情報
墨田区の暮らしデータ
墨田区は、東京の母なる川、隅田川に沿って発展してきた、下町情緒が色濃く残る商工業の町です。この町には伝統に培われた確かな技術や物が溢れています。そして、歴史と文化に育まれた様々な行事が四季を通じて行われ、区の内外の皆さんに楽しんでいただいています。
基本データ
市区役所所在地 | 墨田区吾妻橋1-23-20 |
---|---|
公式ホームページURL | https://www.city.sumida.lg.jp// |
総人口 | 272,085人 |
人口増減率(2015年/2020年) | 106.2% |
地域のおすすめ情報ブログ
一覧を見る
-
緑町公園こんにちは!ピタットハウス錦糸町北口店新人の末信です!!両国駅から徒歩約10分、墨田区にある「緑町公園」は、子どもたちに大人気の...続きを読む
-
【本所松坂町公園(吉良邸跡)】こんにちは!ピタットハウス錦糸町北口店新人の末信です!両国駅から歩いて6分ほど、静かな街角に「本所松坂町公園(吉良邸跡)」があり...続きを読む
-
両国橋両国橋は、1659年に創架されたとされる隅田川最古の橋で、当時は封建時代の二つの領土を結ぶ重要な役割を担っていました。その歴史的...続きを読む
-
墨田区立 両国橋児童遊園こんにちは!ピタットハウス錦糸町北口店新人の末信です!!両国駅から徒歩7分、「墨田区立両国児童遊園」は、昭和44年6月30日に開...続きを読む
取扱店舗

株式会社エスケイ・コミュニティー
- 交通
- JR山手線「新宿」駅徒歩6分都営大江戸線「新宿西口」駅徒歩2分
- 営業時間
- 09:30 〜 18:30
- 定休日
- 毎週水曜日・2月・3月は無休、夏季休暇無し・年末年始