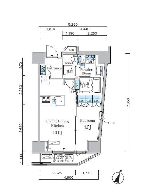
賃貸マンション
アーバンコア原宿
NEW-
東京都渋谷区千駄ヶ谷3丁目 MAP
-
- 東京メトロ副都心線 「北参道駅」 徒歩3分 / JR山手線 「原宿駅」 徒歩9分
- 築年月
- 2022年8月
- 構造
- 鉄筋コンクリート造
- 階数/戸数
- 地上14階建て / 39戸
- 管理形態
- -
- 建物設備
- オートロック/宅配BOX
- 管理会社
- 野村不動産パートナーズ
- 施工会社
- -
更新日:2025年10月20日
アーバンコア原宿の他の空室物件
1
件

お問い合わせお待ちしております!
アーバンコア原宿の近隣物件
生活情報
渋谷区の暮らしデータ
渋谷区は、1932年10月1日に渋谷町・千駄ヶ谷町・代々幡町が合併し、ほかの79町村とともに大東京35区の一環として誕生しました。渋谷や原宿周辺の都市部は、ファッション関係の店舗をはじめ、表参道ヒルズ、渋谷ヒカリエ、渋谷ストリーム、渋谷スクランブルスクエア、WITH HARAJUKU、MIYASHITA PARKなどさまざまな商業ビル・施設があり、区民だけでなく多くの来街者が集まるエリアです。また、都心でありながらも明治神宮や代々木公園など自然豊かな場所にも恵まれている区です。
基本データ
市区役所所在地 | 渋谷区宇田川町1-1 |
---|---|
公式ホームページURL | https://www.city.shibuya.tokyo.jp// |
総人口 | 243,883人 |
人口増減率(2015年/2020年) | 108.6% |
地域のおすすめ情報ブログ
一覧を見る
取扱店舗

株式会社エスケイ・コミュニティー
- 交通
- JR山手線「新宿」駅徒歩6分都営大江戸線「新宿西口」駅徒歩2分
- 営業時間
- 09:30 〜 18:30
- 定休日
- 毎週水曜日・2月・3月は無休、夏季休暇無し・年末年始